Instituto de secundaria Vilartagues, Sant Feliu de Guíxols
RCR Arquitectes- Tipo Educación Colegio e instituto
- Fecha 1995 - 1999
- Ciudad San Feliú de Guíxols (Gerona)
- País España
- Fotografía Eugeni Pons Hisao Suzuki
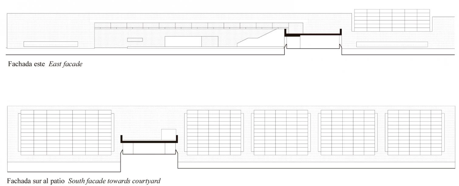
El instituto se ubica en los límites de la localidad costera de Sant Feliu de Guíxols, a unos cien kilómetros al norte de Barcelona. El contexto periférico y en vías de consolidación en el que se inserta sugería una solución introvertida, ensimismada. Dos brazos paralelos, orientados este-oeste y transversales al solar delimitan tres patios: uno delantero, de acceso; uno central, en el corazón del complejo; y uno posterior, orientado a una vía de tráfico rodado, con instalaciones deportivas.
El patio central está atravesado por una pieza de cubierta transitable que conecta los dos brazos. El primero de ellos, situado al sur del emplazamiento, da la bienvenida a estudiantes y profesores ofreciendo un umbral en sombra, en el que destaca el elemento triangular que acoge la conserjería y la delegación de alumnos. Este brazo también alberga la biblioteca y el gimnasio, iluminado por una doble piel de vidrio y chapa perforada. El rectángulo de la parte superior contiene las aulas, conectadas por un largo pasillo y volcadas al patio interior.
La piedra caliza es la protagonista de un edificio que, pese a la imagen hermética de sus fachadas, cuenta con espacios luminosos y diáfanos en el interior. Vidrio —transparente y translúcido—, metal y hormigón completan la paleta de materiales.
















Cliente Client
Generalitat de Catalunya. Departamento de Educación. Dirección General de Arquitectura y Equipamientos Educativos
Arquitectos Architects
RCR: Rafael Aranda, Carme Pigem, Ramón Vilalta
Colaboradores Collaborators
A. Sáez, M. Tàpies
Consultores Consultants
Blázquez-Guanter (estructuras structural engineering); J. Viñas (instalaciones mechanical engineering); P. Rifà (aparejador quantity surveyor), Gerc Inartur (dirección de obra construction site direction)
Contratista Contractor
Copcisa
Fotos Photos
E. Pons, H. Suzuki