Orfanato Noomdo, Koudougou
Diébédo Francis Kéré Kéré Architecture- Tipo Vivienda Residencia
- Material Piedra Ladrillo Cerámico
- Fecha 2013 - 2016
- Ciudad Koudougou
- País Burkina Faso
- Fotografía Iwan Baan
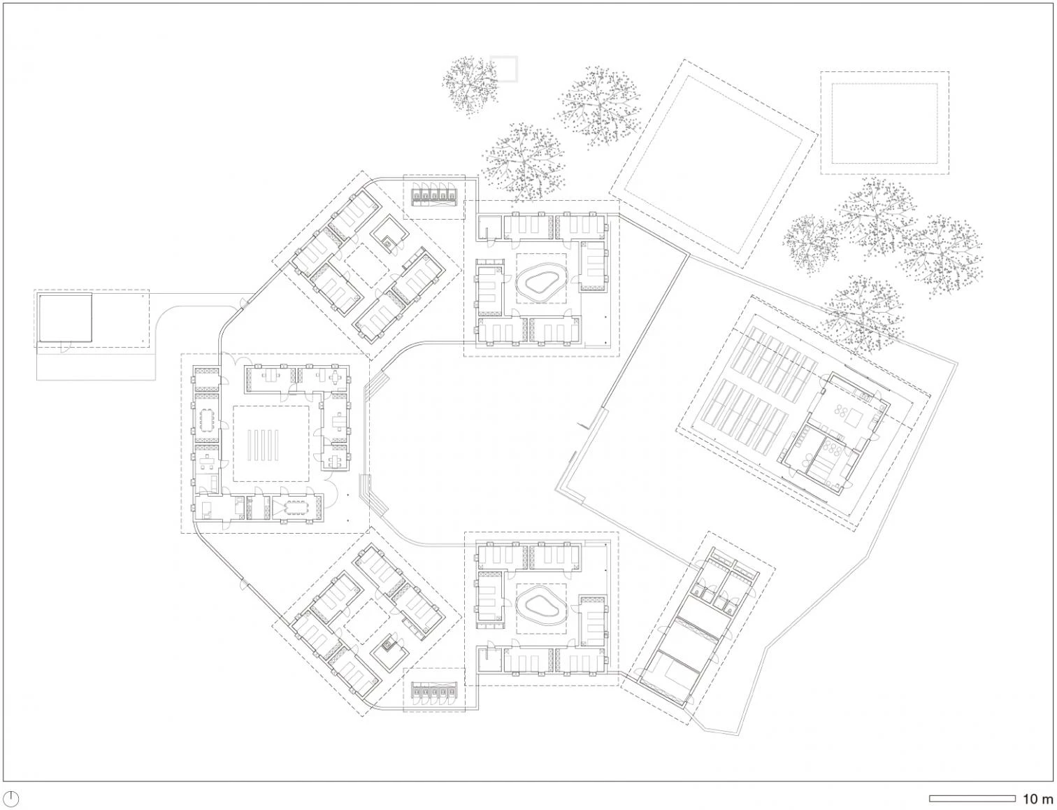
En el entorno rural de la provincia de Boulkiemdé, a unos dos kilómetros de la ciudad de Koudougou, el Orfanato Noomdo acoge a más de cincuenta niños entre seis y diecisiete años. Tomando como referencia los asentamientos cercanos, las diferentes partes del programa se distribuyen en torno a un espacio central, que funciona como zona de juego y reunión. El complejo está formado por cinco módulos de habitaciones, un comedor abierto, un taller, almacenes y vestuarios. Cada módulo cuenta con su propio patio, de manera que se crea un gradiente de privacidad que ayuda a individualizar los diferentes espacios. El edificio es, por tanto, sensible a las necesidades e intimidad de los habitantes y al mismo tiempo facilita la seguridad y el control de los cuidadores.
Procedente de una cantera cercana, la piedra de laterita es el material principal de los muros. Las bóvedas, por su parte, se construyen con ladrillos de arcilla comprimida. Sobre este primer cerramiento, una segunda cubierta de chapa metálica protege los edificios de la lluvia y acelera la ventilación. El aire caliente sale por huecos situados en la parte superior de las habitaciones; mientras que el aire fresco entra por las ventanas a través de una base de hormigón con sección en forma de S.








Cliente Client
O.N.G. le Soleil dans la Main (A.S.D.M.) Luxembourg
Arquitectos Architects
Kéré Architecture
Equipo de diseño Design Team
Dominique Mayer, Raquel Font, Marta Migliorini, Monica Lamela Blazquez, Valentin Bettinger, Diego Sologuren Martin, Jaime Herraiz
Contratista Contractor
Association Dolai, Marta Migliorini, Nataniel Sawadogo, Wéneyida Kéré (dirección de obra y supervisión construction management and supervision), David Demange (dirección de proyecto project management)
Superficie construida Built-up area
4.000 m²
Financiación Funding
M.A.E.E. Luxembourg and O.N.G. le Soleil dans la Main (A.S.D.M.)
Fotos Photos
Iwan Baan, Kéré Architecture