Comunidad residencial Benga Riverside, Tete
Diébédo Francis Kéré Kéré Architecture- Tipo Paisajismo / Urbanismo Colectiva Vivienda Masterplan Cultura / Ocio Educación
- Fecha 2015
- Ciudad Tete
- País Mozambique
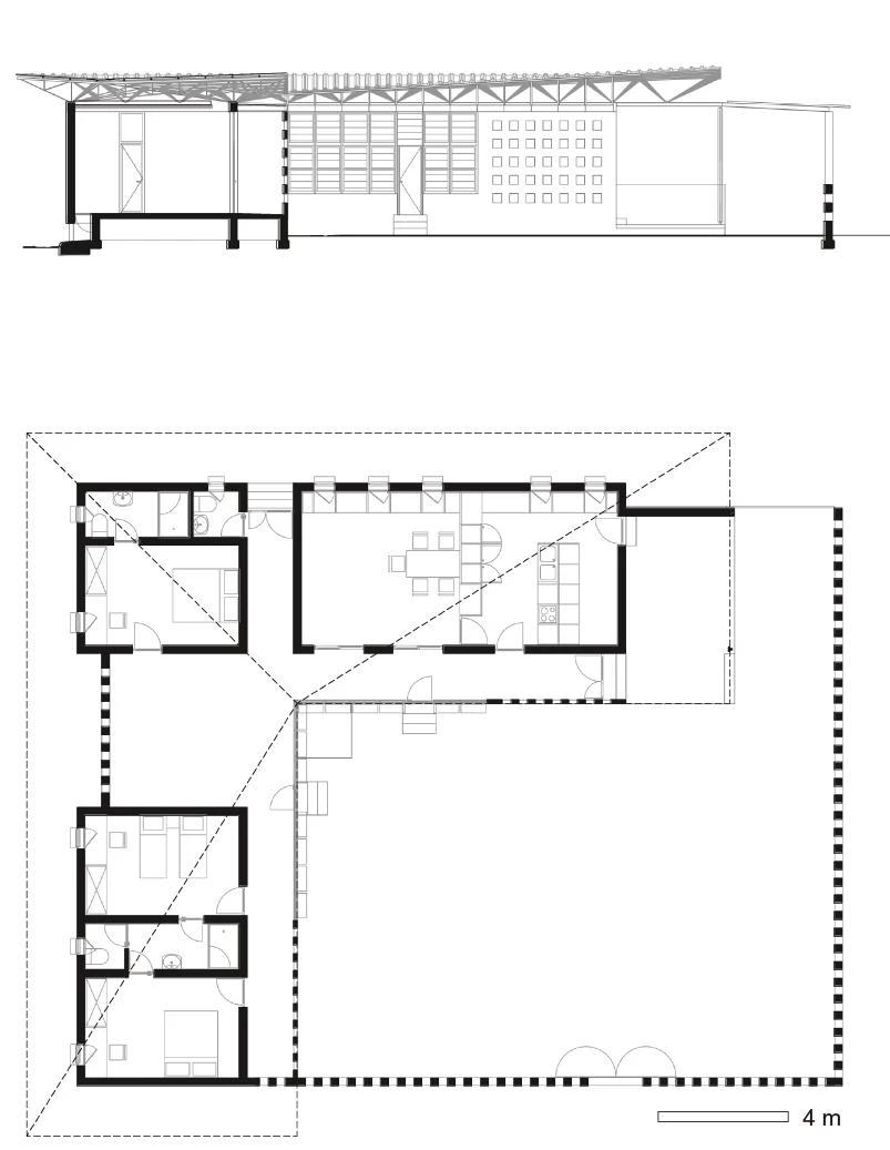
Situado en la confluencia de los ríos Revuboe y Zambezi, el proyecto aspira a crear un nuevo tipo de vecindario que responda a la creciente demanda de viviendas en Tete, Mozambique. La comunidad pondrá en práctica un nuevo método de planificación pionero que fomente la inclusión social entre residentes de diferente procedencia cultural e integre las nuevas construcciones en el entorno natural original, generando relaciones de simbiosis.
Atendiendo de forma conjunta a las necesidades cívicas, educativas y recreativas, el proyecto incluye una variedad de edificios que fusionan las funciones públicas y privadas, como una escuela primaria, un restaurante, un club social, equipamientos deportivos y más de cien unidades residenciales de diferentes tipos. Por su parte, la riqueza ecológica que caracteriza el lugar será preservada y además contribuirá a regular climáticamente el ambiente. Se crea, por tanto, una nueva identidad arquitectónica que pone en valor los materiales tradicionales a través de técnicas contemporáneas. Otras estrategias como los patios privados, las vistas panorámicas, la ventilación pasiva o el tratamiento de aguas grises contribuirán a crear una comunidad residencial sostenible, económica y duradera.




Cliente Client
MATERIA
Arquitectos Architects
Kéré Architecture
Equipo de diseño Design Team
Raquel Font, Dominique Mayer, Diego Sologuren Martin, Jaime Herraiz, Blake Villwock, Andrea Maretto, Monica Lamela Blazquez, Matthew MacKay-Lyons, Fabian Klemp, Laura Bornet, Valeria Molinari
Construcción Construction
Kéré Architecture, MATERIA
Superficie construida Built-up area
10,000 m²