Taller, Gando
Diébédo Francis Kéré Kéré Architecture- Tipo Educación Universidad
- Material Tierra
- Fecha 2013 - 2018
- Ciudad Gando
- País Burkina Faso
- Fotografía Daniel Schwartz
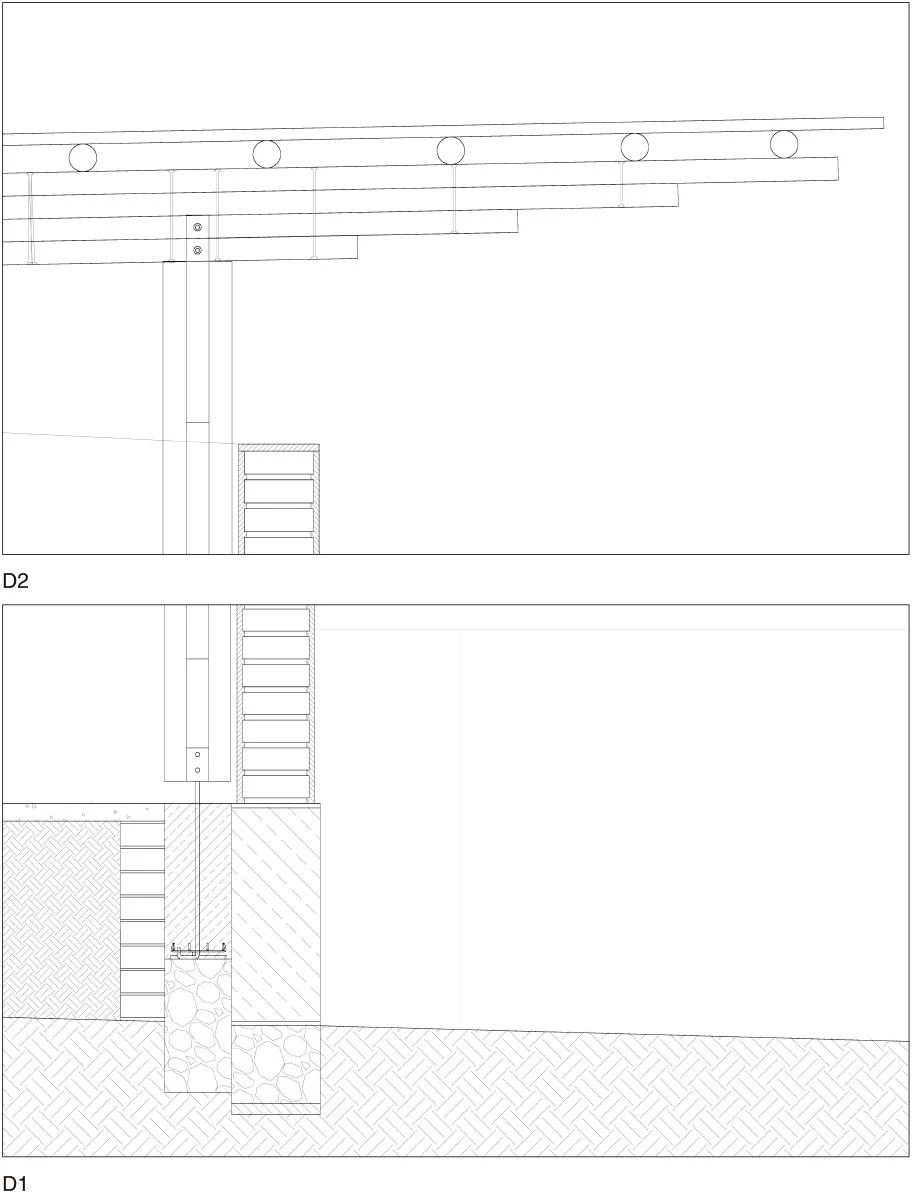
El atelier Gando es una iniciativa conjunta de Francis Kéré y la Academia de Arquitectura de Mendrisio en Suiza que surge con el objetivo de establecer un intercambio entre artesanos locales, constructores, arquitectos, estudiantes y visitantes. El taller funcionará principalmente como centro de construcción sostenible que estudiará cómo las técnicas vernáculas pueden aplicarse en situaciones contemporáneas. Además, el proyecto dará continuidad a los edificios de Gando que se encuentran en proceso de construcción proporcionando espacios de trabajo y almacenaje de herramientas y materiales.
En paralelo a los servicios educativos que el centro ofrece a los burkineses, el Atelier incluye un programa para formar a estudiantes procedentes de instituciones occidentales. Los alumnos se enfrentarán al reto de sacar el máximo partido a los materiales y a los métodos disponibles, trabajando en equipo y afrontando con flexibilidad las dificultades del lugar. El edificio es en sí mismo una lección de arquitectura, que surge del intercambio creativo entre tradición y modernidad. Para atender a la realidad y a las necesidades actuales, los talleres también se centrarán en labores de comunicación y posicionamiento que complementarán al diseño.







Cliente Client
Kéré Foundation
Arquitectos Architects
Kéré Architecture, Diébédo Francis Kéré
Equipo de diseño Design Team
‘Building Reality’ Taller de la Academia de Arquitectura de Mendrisio supervisado por Alberto Pottenghi Workshop of the Accademia di Architettura di Mendrisio supervised by Alberto Pottenghi
Construcción Construction
Francis Kéré, Wéneyida Kéré, Alberto Pottenghi (dirección de obra y supervisión construction management and supervision)
Superficie construida Built-up area
570 m²
Fotos Photos
Kéré Architecture, Daniel Schwartz