Oficina de turismo de Chaponost
Link Architectes Associés- Tipo Sede / oficina
- Fecha 2024
- Ciudad Chaponost
- País Francia
- Fotografía Vladimir de Mollerat du Jeu
Hace casi 2.000 años, la ciudad de Lugdunum —hoy Lyon— se abastecía de agua gracias a una red de acueductos romanos, entre ellos el del Gier, el más largo y técnicamente complejo, con más de 80 kilómetros de recorrido. Un tramo formado por la alineación de 72 arcos se eleva al norte de la localidad francesa de Chaponost, vestigio tangible de la memoria romana. En este entorno cargado de historia, se construye una oficina de turismo, concebida como una intervención arquitectónica sobria y respetuosa, obra del estudio Link Architectes Associés.
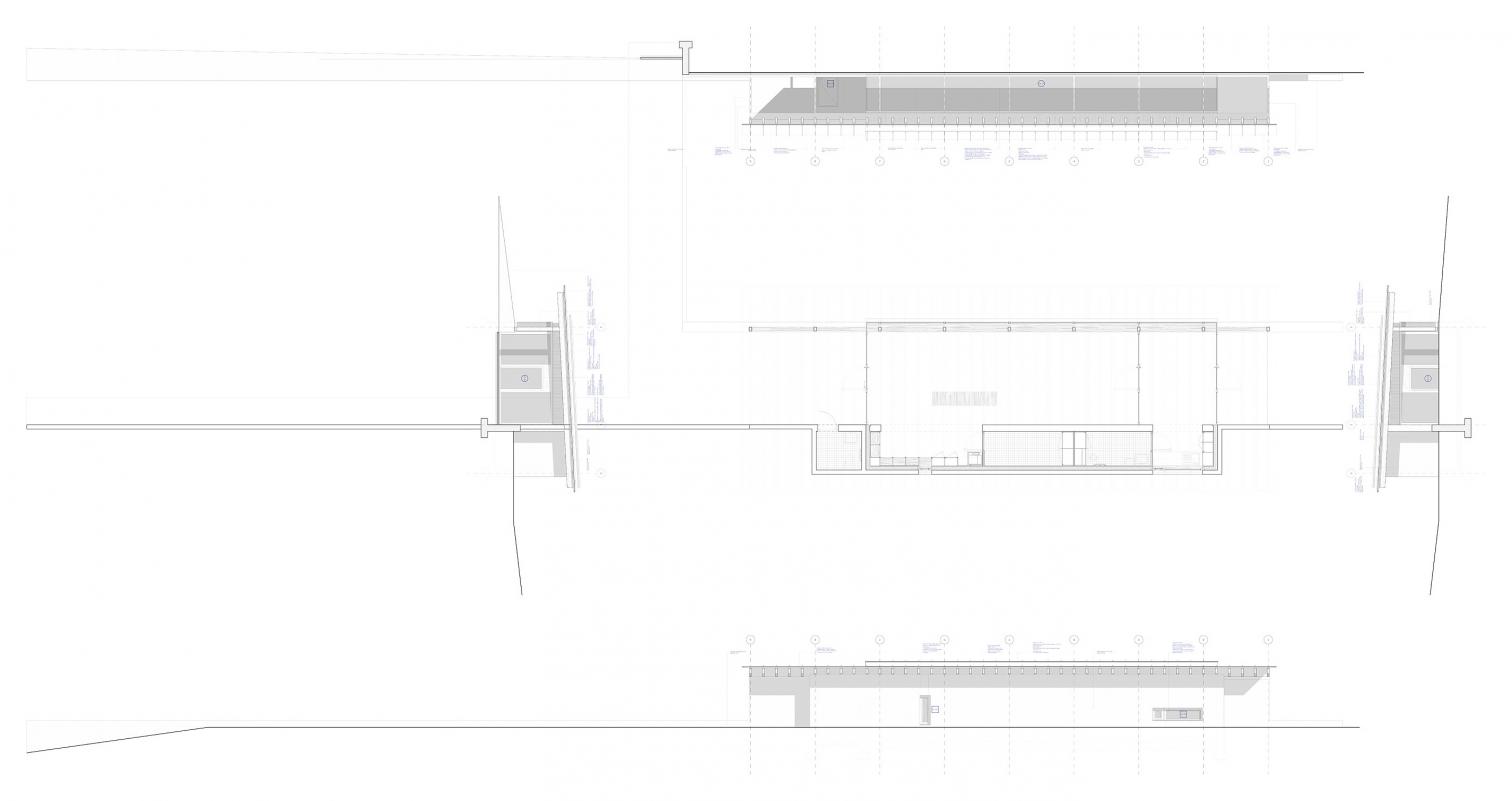
Lejos de competir con la monumentalidad del acueducto, el nuevo edificio busca acompañarlo desde la discreción, integrado en el paisaje. Situado sobre un terreno baldío ligeramente inclinado y clasificado como agrícola, el proyecto fue limitado a una superficie máxima de 100 m². Frente a estas restricciones, los arquitectos optaron por un diseño en capas que articula el acceso, la edificación y la preservación visual del entorno.
La estructura se organiza en tres niveles: una primera capa funcional que distribuye la zona de aparcamiento y conecta con la carretera; una segunda que contiene el edificio mediante un muro de hormigón que gestiona la pendiente; y una tercera abierta, que preserva la visión limpia del entorno sin intervenirlo. El muro de hormigón teñido y pulido con chorro de arena es un elemento central del proyecto. Se alinea con el acueducto y se extiende más allá del edificio, al que atraviesa, albergando servicios públicos y espacios auxiliares.
En su interior, el espacio se reduce a lo esencial: una gran sala diáfana que concentra recepción, área de exposiciones y sala de reuniones. El diseño optimiza cada metro cuadrado, evitando pasillos innecesarios. Sobre esta base, la estructura de madera y la cubierta de zinc protegen el volumen, que evoca el ritmo de los arcos romanos, y refuerza la sensación de acogida.
La oficina de turismo busca ‘desaparecer’ visualmente en el paisaje. No se trata de una reconstrucción histórica, sino de una interpretación contemporánea que establece un diálogo respetuoso y silencioso con el pasado.




















