Mont-Blanc Base Camp, Les Houches
Kengo Kuma- Tipo Comercial / Oficina Sede / oficina
- Material Madera
- Fecha 2012 - 2016
- Ciudad Les Houches
- País Francia
- Fotografía Michel Denancé
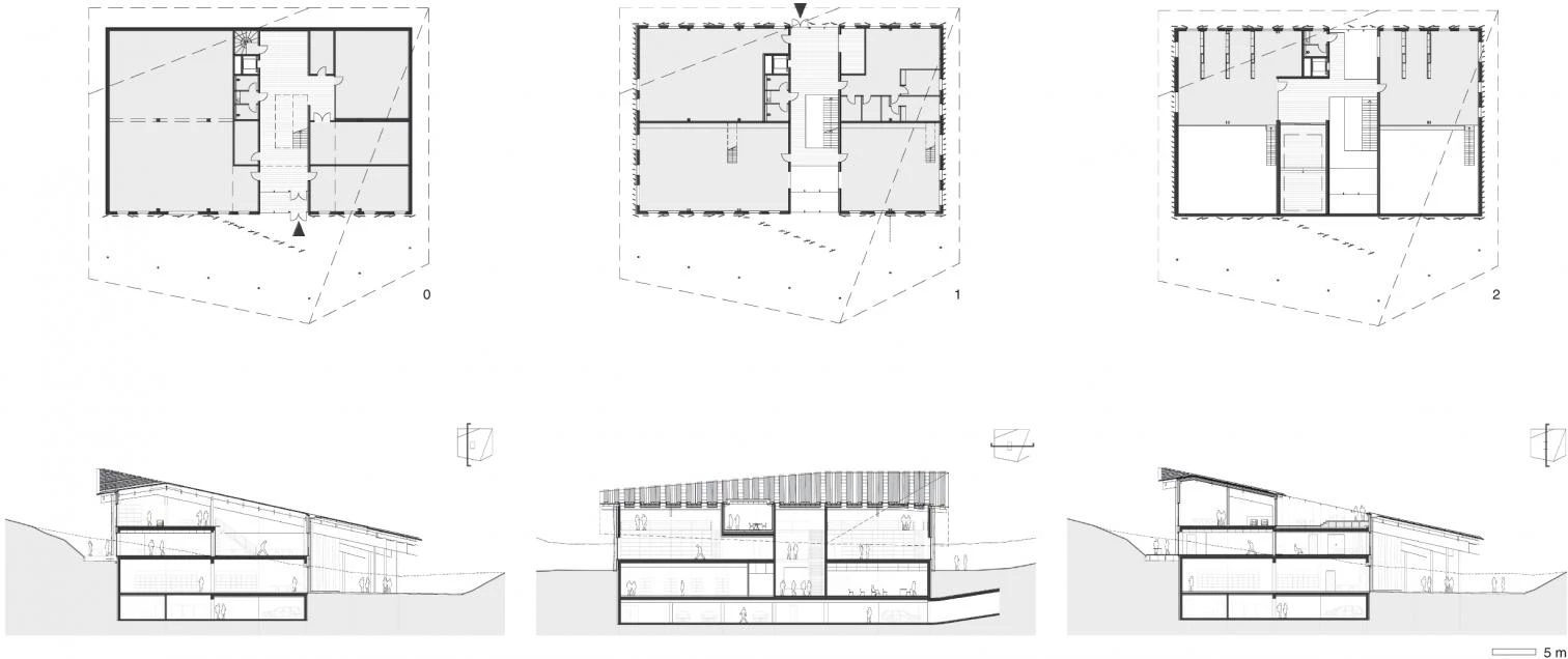
La nueva sede de Blue Ice, fabricante de material de escalada y alpinismo, se encuentra en Les Houches, un pueblo enclavado en los Alpes franceses junto al Mont Blanc. El edificio se organiza a partir de una gran cubierta, inclinada con el terreno, que se integra armoniosamente en el paisaje. Las fachadas se ordenan además con gruesas planchas de roble que remiten a los bosques de la zona. Estos elementos, empleados también en la cubierta en bandas lineales, mantienen la corteza y no tienen ningún tratamiento artificial, por lo que conservan su textura natural. Con el objetivo de reducir los taninos y evitar la aparición de manchas, la madera reposó previamente al aire libre durante tres meses, lavándose con el agua de lluvia. En las caras norte y sur los paneles se colocan en paralelo a la fachada, pero en los lados restantes se disponen en perpendicular para evocar el perfil irregular de una agrupación pintoresca de árboles.
En contraste, los interiores se ejecutan con revestimientos de madera sedosos para reflejar la luz tenue y homogénea que entra por los lucernarios, organizados en líneas continuas en dirección norte-sur. El espacio más singular del proyecto es el atrio de entrada, que permite también subir a la terraza, un lugar de acceso libre para los visitantes desde donde se disfruta de unas vistas magníficas sobre el valle.












Obra Work
Mont-Blanc Base Camp
Cliente Client
Blue Ice
Arquitectos Architects
Kengo Kuma & Associates; Kengo Kuma, Matthieu Wotling (socios encargados partners in charge); Silvia Fernández (project manager), Baptiste Lobjoy, Miguel Reyes (asistentes assistants) —equipo de proyecto project team—
Consultores Consultants
Top Frederic Reinert (supervisión de calendario en obra y coordinación site supervision scheduling and coordination); Egis Grand Est (ingeniería mecánica y estructura de hormigón mechanical and concrete structure engineer); Barthes (estructura de madera wooden structure engineer); Lta (mediciones quantity surveyor); Ar-C (fachada facade engineer); Acoustb (acústica acoustician)
Fotos Photos
Michel Denancé, Kengo Kuma & Associates