Museo Paula Rêgo, Cascais
Eduardo Souto de Moura- Tipo Cultura / Ocio Museo
- Material Hormigón
- Fecha 2005 - 2009
- Ciudad Cascais
- País Portugal
- Fotografía Luis Ferreira Alves Fernando Guerra FG+SG
Paula Rêgo (Lisboa, 1935), pintora, dibujante y grabadora, es una de las figuras más notables del arte contemporáneo portugués; en su obra se percibe la influencia de Lucien Freud, Arshile Gorky o Balthus. Se formó en la Slade School of Fine Art de Londres, ciudad en la que reside desde 1976. La decisión de la artista de donar varias de sus obras al municipio de Cascais, en la costa de Estoril, puso en marcha la creación de un espacio museológico bautizado como Casa das Histórias, en referencia al estilo narrativo de los grandes lienzos de la pintora. La propia Paula Rêgo seleccionó como arquitecto a Eduardo Souto de Moura.
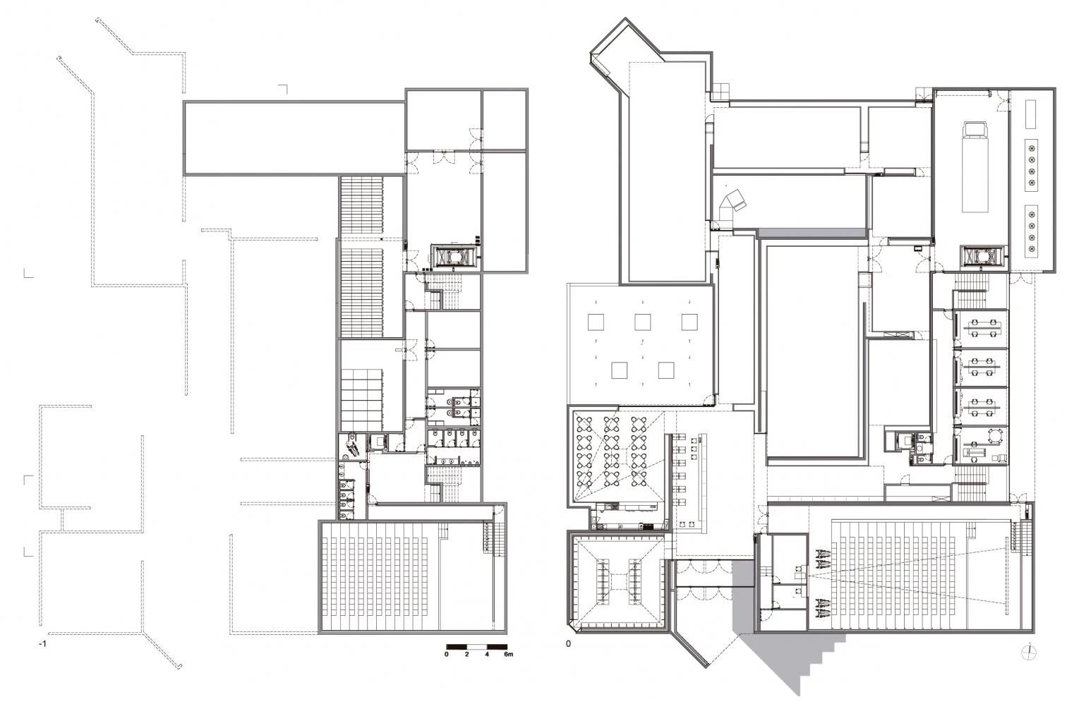
El emplazamiento, elegido a su vez por el arquitecto, era un bosque cercado con un vacío en medio, correspondiente con las antiguas pistas de un club de tenis que había desaparecido con la Revolución de los Claveles. Asumiendo el terreno y los árboles preexistentes —eucaliptos, almendros y pinos, principalmente— como elementos fundamentales del proyecto, los diferentes volúmenes que componen el edificio configuran cuatro alas de diferente longitud, subdivididas en el interior en salas secuenciales dispuestas en torno a un volumen central más elevado donde se sitúa la gran sala de exposiciones temporales. El interior, en tonos neutros y pavimentado con el mármol azulado natural de Cascais, cuenta con 750 metros cuadrados de salas de exposición, una tienda-librería, una cafetería abierta hacia un frondoso jardín y un auditorio con capacidad para 200 personas, además de las salas técnicas y de servicio.
La serie de volúmenes que configura el museo funciona como un positivo mineral del negativo dibujado por las copas de los árboles. Ese juego del yin y el yang entre artefacto y naturaleza contribuyó a decidir el material del exterior: hormigón rojo y texturado como complementario al verde del bosque. Para que el edificio no fuese una suma neutra de cajas se estableció una jerarquía introduciendo dos grandes pirámides truncadas a modo de linternas en el eje de la entrada, que señalan la tienda-librería y la cafetería respectivamente. Estas piezas hacen referencia a obras históricas de la arquitectura portuguesa, como la chimenea del monasterio de Alcobaça o las de las cocinas del Palacio de Sintra, aunque tampoco son ajenas a algunos grabados de Boullée o a las pronunciadas cubiertas de los palacetes del arquitecto lusitano Raul Lino. Todas las salas de la exposición permanente presentan aberturas hacia el exterior, proporcionando vistas al jardín que contrastan con la mirada artificial y abstracta del arte contemporáneo.






















Cliente Client
Câmara Municipal de Cascais
Arquitecto Architect
Eduardo Souto de Moura
Colaboradores Collaborators
Sérgio Koch, Ricardo Prata (coordinación de proyecto project coordination); Bernardo Monteiro, Diogo Guimarães, Junko Imamura, Kirstin Schätzel, Paula Mesquita, Manuel Vasconcelos, Maria Luís Barros, Pedro G. Oliveira, Rita Alves, Sofia Torres Pereira, Susana Monteiro, Paula Mesquita
Consultores Consultants
AFA (estructuras, fontanería y saneamiento structural and hydraulic engineering); Raul Serafim e Associados (electricidad electrical engineering); Paulo Queirós de Faria (instalaciones mechanical engineering)
Contratista Contractor
Casais Empreiteiros
Fotos Photos
Luís Ferreira Alves, Fernando Guerra