Edificio en la Avenida da Boavista, Oporto
Eduardo Souto de Moura- Tipo Comercial / Oficina
- Fecha 2004 - 2007
- Ciudad Oporto
- País Portugal
- Fotografía Luis Ferreira Alves Hisao Suzuki
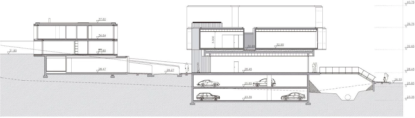
Situado frente al importante eje de la Avenida da Boavista y a escasos metros del conjunto de viviendas adosadas Quinta da Avenida —también realizadas por Souto de Moura—, este edificio comercial y de oficinas se concibe como un gran zócalo sobre el que se disponen libremente una serie de volúmenes independientes. El zócalo, ocupado íntegramente por tiendas, está ligeramente elevado respecto al nivel de la avenida, de modo que un suave talud cubierto por césped hace de transición entre las diferentes cotas. Puesto que en la parte trasera, más elevada, el zócalo se encuentra al mismo nivel que la calle, el talud —en el que se han insertado escaleras de hormigón para facilitar el acceso a los comercios— disminuye progresivamente en los testeros hasta desaparecer.
Las cajas apoyadas sobre el zócalo se agrupan en torno a dos núcleos verticales que, en virtud de sus retranqueos y diferentes alturas, se muestran como unos volúmenes ciegos de carácter escultórico en la parte trasera del edificio. Las cajas, por su parte, son de planta trapezoidal y presentan diferentes superficies y alturas. Su colocación aparentemente azarosa, en ligero voladizo sobre el basamento, contribuye a subrayar su independencia formal, generando en los intersticios patios irregulares y disímiles. Esta independencia entre el zócalo y las cajas supone, técnicamente, la aparición de un escalonamiento en la losa de hormigón que media entre ambos estratos, de forma que las cajas parecen apoyarse sobre el plinto inferior. Con idéntica intención se han pintado ambos elementos de colores ligeramente diferentes, como también lo son sus fachadas de vidrio. Tanto el zócalo como las nueve cajas del nivel superior se abren, sin embargo, en la misma dirección: hacia el Parque da Cidade, al otro lado de la Avenida da Boavista.
Constructivamente, el proyecto se ha llevado a cabo con una estructura portante de hormigón armado. Sobre su cara exterior se ha dispuesto el aislamiento, evitando así la aparición de puentes térmicos. Finalmente, un acabado en pintura blanca o gris remata las partes sólidas del edificio. Las fachadas de vidrio, de generosas dimensiones, se han realizado con esbeltas carpinterías de aluminio y modulación vertical, en el caso de las fachadas de las cajas, y con proporciones más horizontales en el caso del zócalo. La losa de la cubierta invertida también se protege eficazmente gracias a un aislamiento rígido exterior, recubierto por una capa de tierra vegetal que contribuirá a mejorar el rendimiento energético del edificio.















Cliente Client
1946 - Inmobiliaria
Arquitecto Architect
Eduardo Souto de Moura
Colaboradores Collaborators
José Carlos Mariano, Sílvia Alves, Ricardo Tedim, Luís Peixoto
Consultores Consultants
Afassociados
Contratista Contractor
Edifer
Fotos Photos
Luís Ferreira Alves, Hisao Suzuki