Dos casas en Ponte de Lima, Quinta de Anquiao
Eduardo Souto de Moura- Tipo Vivienda Casa
- Fecha 2001 - 2002
- Ciudad Quinta de Anquião
- País Portugal
- Fotografía Luis Ferreira Alves
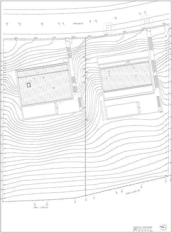
Muy cerca de la frontera con España, el municipio portugués de Ponte de Lima constituye el destino vacacional de numerosas familias que pasan allí fines de semana o temporadas más largas. En las afueras de este enclave turístico, que recibe el nombre de su puente romano de veintisiete arcos y que cuenta con abundantes espacios naturales bien conservados, dos miembros de la misma familia adquirieron sendas parcelas contiguas en un terreno con fuerte pendiente, buenas vistas y orientación este-oeste, con el fin de levantar en ellas sus respectivas residencias de verano.
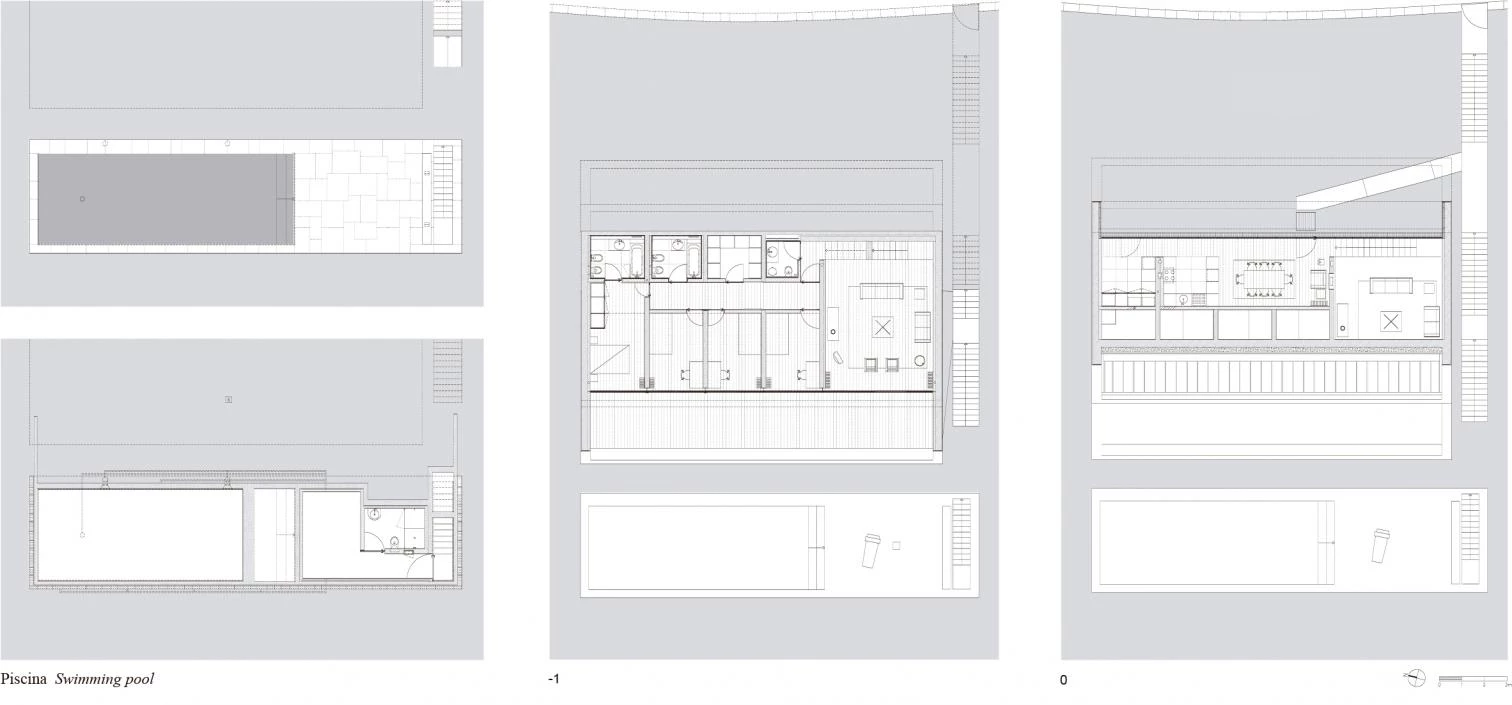
Con un programa similar —vivienda unifamiliar de cuatro habitaciones— las dos casas hunden sus cimientos a media ladera, por lo que son dos estrechos caminos de piedra los que conducen desde la carretera hasta el punto de acceso a cada edificio. La ‘casa horizontal’, como se identifica a la que se encuentra al norte, aloja el conjunto del programa en una planta única que vuela sobre la colina; cocina y servicios se alinean en una banda orientada hacia el terreno, permitiendo así que el salón y las habitaciones se abran al paisaje. El espacio bajo el voladizo, a priori residual, se pone en valor cubriendo su pendiente con una capa de césped —lo que la convierte en una extensa tumbona natural— y situando a continuación la piscina, generando así una estancia semi-exterior a caballo entre naturaleza y arquitectura. La ‘casa inclinada’, en la parcela más meridional, se desarrolla en dos niveles: la planta superior aloja la cocina-comedor y un cuarto para la colada; la planta inferior sitúa contra el muro de contención los servicios y la escalera, con lo que la sala de estar (a doble altura) y los dormitorios, vinculados por una terraza corrida, disfrutan de las mejores vistas. A la piscina, en la parte más baja, se llega desde la escalera lateral. Esta segunda casa, que se desarrolla como un espacio bajo cubierta, se percibe exteriormente —desde donde no se observan terrazas ni ventanas— como una versión de la casa horizontal ‘caída’ sobre la pendiente.
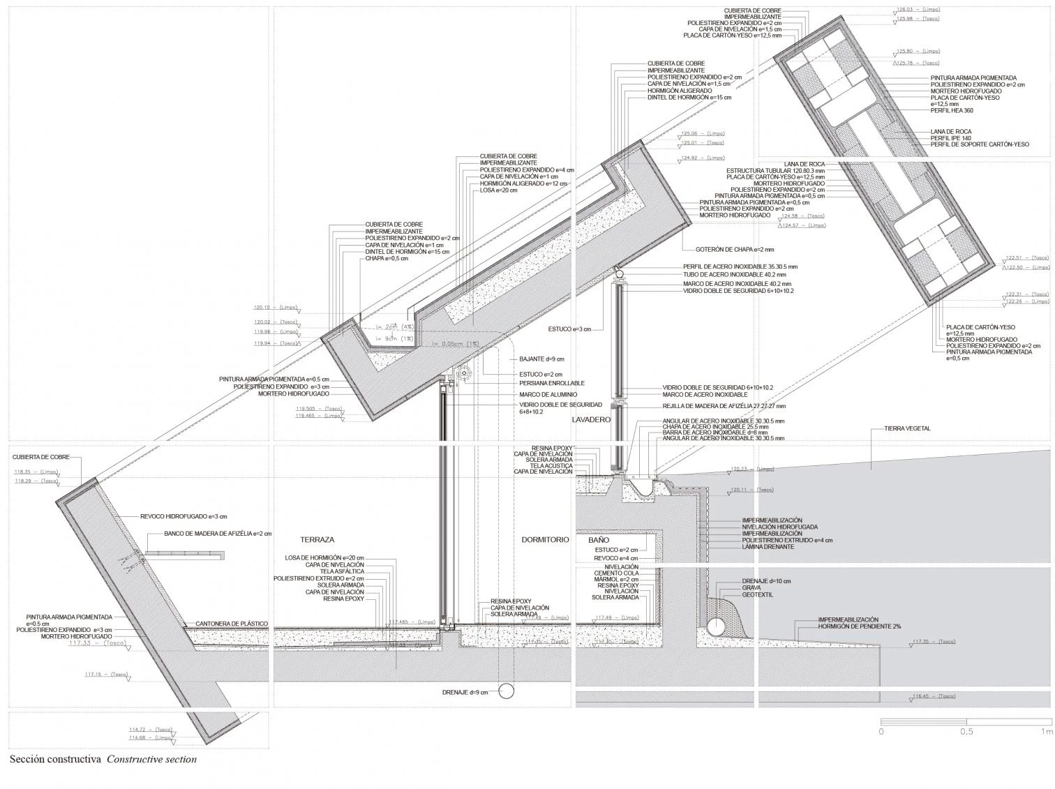
La construcción de ambas viviendas, de dimensiones similares, se ha resuelto empleando materiales idénticos: estructura de hormigón (muros y losas), acabados interiores a base de revoco de estuco en los paños verticales y de imprimación de resina en los suelos, carpinterías de aluminio y cubierta de chapa de cobre. La diferencia final entre las dos casas —si bien una se enfrenta a la pendiente y la otra se adapta a ella— es exteriormente muy pequeña. Pintadas íntegramente de blanco, adquieren la impronta de una composición escultórica al aire libre, una suerte de land art habitable.

















Cliente Client
Miguel Cerquinho, Rui Branco
Arquitecto Architect
Eduardo Souto de Moura
Colaboradores Collaborators
Jorge Domingues, Joana Mira Corrêa, Ana Isabel, Joana Gaspar, Diogo Guimarães, Adriana Miranda, Joaquim Portela
Consultores Consultants
Lello & Associados (estructura structural engineering); Rodrigues Gomes & Associados (electricidad electrical engineering); Ventarco (instalaciones mechanical engineering)
Contratista Contractor
Coelho Construtores (estructuras structural work); Empalme/Sociedade de Construções (acabados finishings)
Fotos Photos
Luís Ferreira Alves