Casa de la Música, Algueña
COR Architecture + Design- Tipo Auditorio Escuela especializada Rehabilitación Cultura / Ocio Educación
- Fecha 2011
- Ciudad Algueña (Alicante) Alicante
- País España
- Fotografía David Frutos Luisa Martí

En Algueña, una pequeña localidad del interior de la provincia de Alicante, con una población de dos mil habitantes y una economía basada en la agricultura y la industria del mármol, se ha levantado un nuevo edificio público que aglutinará todas las actividades vinculadas a la música y la cultura desarrolladas en el pueblo. Las bandas de música tienen gran tradición en la región de Valencia, y se ven impulsadas por agrupaciones musicales, que no son solamente entidades culturales sino también sociales. Su nivel de participación en el pueblo transciende lo musical y afecta a la inserción social, la integración y la educación. En Algueña, concretamente, la banda tiene un gran seguimiento.



Las canteras de mármol dominan el paisaje de Algueña y tienen mucha importancia para su economía. El hermetismo del nuevo edificio le confiere un aspecto de gran bloque marmóreo desgajado de la ladera.






El material porcelánico utilizado es resistente a las heladas. Cada placa es prensada y cocida tres veces: la primera para bizcocharla, la segunda para cocer el esmalte y la última para conseguir el efecto irisado-nacarado.

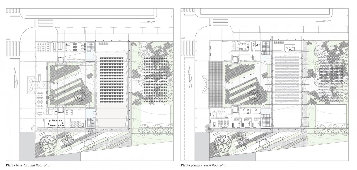
Con un presupuesto ajustado, se decidió rehabilitar el antiguo cuartel en desuso de la Guardia Civil, con una superficie de 670 metros cuadrados, y construir un nuevo auditorio de 350 metros cuadrados y 230 butacas. En un segunda fase se creará un parque con un auditorio al aire libre que funcionará como elemento de conexión entre el pueblo y su futura zona de expansión urbanística. La intervención se encuentra en la entrada oeste del pueblo, en un lugar límite que el planeamiento desarrollará dejando la parcela centrada respecto del crecimiento futuro.

El antiguo cuartel, una construcción de los años 1960 con una estructura de muros de carga en buen estado, tenía una configuración en U con un patio central que permite por sus dimensiones albergar los ensayos de la banda. La restauración del edificio no afecta a su geometría, sino únicamente a su apariencia, pues se han recuperado todos los elementos constructivos, aunque en color blanco y con diferentes grados de brillo, para así generar una tensión entre la memoria y la realidad actual.

Durante un día 60 artistas pintaron cada una de las jambas y dinteles de las ventanas, congregando a más de 500 personas alrededor del cuartel. Ello permitió que los ciudadanos se fueran apropiando del edificio.

Por su parte, la construcción nueva cierra el perímetro separándose de la antigua mediante dos cuerpos de escaleras delimitados por dos urnas de vidrio. En su interior, la sala cuenta con butacas móviles y con instalaciones capaces de ofrecer diferentes tipos de actos, para lo cual es preciso contar con un almacén. Constituida como una caja ciega, a excepción de las dos aberturas que la atraviesan en su eje transversal, se muestra como un elemento extraño en su contexto por su hermetismo y por el protagonismo del material del cerramiento.La utilización de un recubrimiento cerámico con un acabado nacarado crea un volumen vibrante y en constante cambio, ya sea este producido por las variaciones lumínicas o por el movimiento del observador. Este material se creó específicamente para esta obra, utilizando técnicas de cocción, vitrificado y deposición de metales.

La sala podrá dar cabida hasta 230 personas sentadas. Cuando sea necesario, las butacas podrán retirarse y guardarse en un almacén anexo, para de esta manera ofrecer actos con requerimientos distintos.



Para acondicionar acústica y estéticamente el interior de un volumen regular y carente de singularidad espacial se ha optado por usar una sección de piezas escalonadas y por colocar las luminarias ocultas entre las distintas piezas.


Cliente Client
Ayuntamiento de Algueña
Arquitectos Architects
Miguel Rodenas, Jesús Olivares
Colaboradores Collaborators
Oscar Carpio, Angela Montilla, Alberto Valera, Fernando Rey; Jose Verdú (arquitecto técnico quantity surveyor); Nuria Rodenas (dirección financiera finance management)
Consultores Consultants
Luisa Martí (agencia de arte art agency); Valentín Moreno (estructura structure); David Cervera (acústica acoustics); J. Francisco García (instalaciones services); Raul Carrascal (paisajismo landscape)
Contratista Contractor
UTE Inca Marjal
Fotos Photos
David Frutos, Luisa Martí