Museo de la Ciudad de Toyota
Shigeru Ban- Tipo Cultura / Ocio Museo
- Material Madera
- Fecha 2024
- Ciudad Toyota
- País Japón
- Fotografía Hiroyuki Hirai
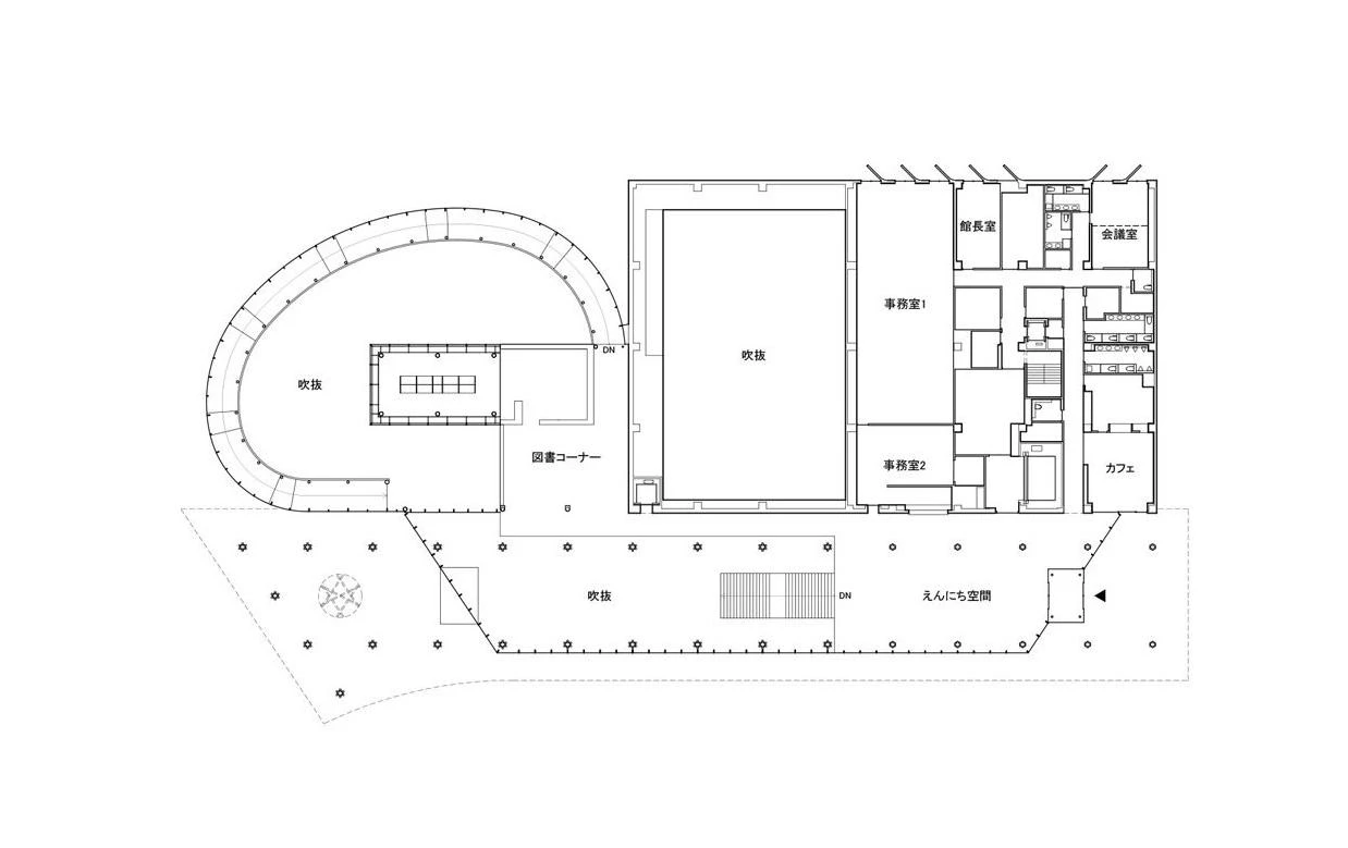
Junto al Museo Municipal de Arte de Toyota, finalizado por Yoshio Taniguchi en 1995, emerge la nueva institución para la ciudad de la prefectura de Aichi, obra del arquitecto japonés Shigeru Ban. El Museo de la Ciudad de Toyota, dispuesto en paralelo al de arte, se hace eco de su fachada y proporciones.
El nuevo edificio está realizado en parte con madera de cedro de origen local. La cara inferior del porche de entrada muestra una estructura entrecruzada, que representa el emblema de la ciudad de Toyota (dos flechas superpuestas en forma de V). Cuando la luz accede por este tragaluz circular al mediodía en el solsticio de verano, las vigas de madera proyectan en el suelo una sombra con la insignia de la ciudad.
La colección permanente del museo, dedicada a la historia de la ciudad de Toyota, está ubicada en una sala circular rodeada por una rampa curva. En el centro de este espacio expositivo se sitúa una amplia estantería que contiene numerosas piezas, la cual funciona también como un núcleo resistente a los terremotos. De esta manera, el museo puede transformarse y funcionar como refugio en situaciones de emergencia.













