Toyota City Museum
Shigeru Ban- Type Culture / Leisure Museum
- Material Wood
- Date 2024
- City Toyota
- Country Japan
- Photograph Hiroyuki Hirai
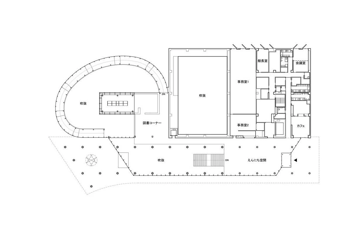
On a site adjacent to the the Toyota Municipal Museum of Art, completed by Yoshio Taniguchi in 1995, stands this new institution for the city in Aichi Prefecture, a work of the Japanese architect Shigeru Ban. The Toyota City Museum, built parallel to the art museum, echoes its facade and proportions.
The new building is partly executed with locally sourced cedar wood. The underside of the entrance porch shows a criss-cross structure representing the emblem of Toyota City (two superposed arrows shaping a V). When light shines through this circular opening at noon during summer solstice, the wooden beams cast a shadow on the floor that forms the city’s symbol.
The museum’s permanent collection, devoted to the history of Toyota City, is shown in a circular hall surrounded by a curving ramp. At the center of this exhibition space is a large shelf structure displaying numerous pieces, which doubles as a core resistant to earthquakes. In this way, the museum is easily transformable into a disaster relief center when necessary.













