Centro Pompidou-Metz, Metz
Shigeru Ban- Tipo Cultura / Ocio Museo
- Fecha 2003 - 2010
- Ciudad Metz
- País Francia
- Fotografía Didier Boy de la Tour
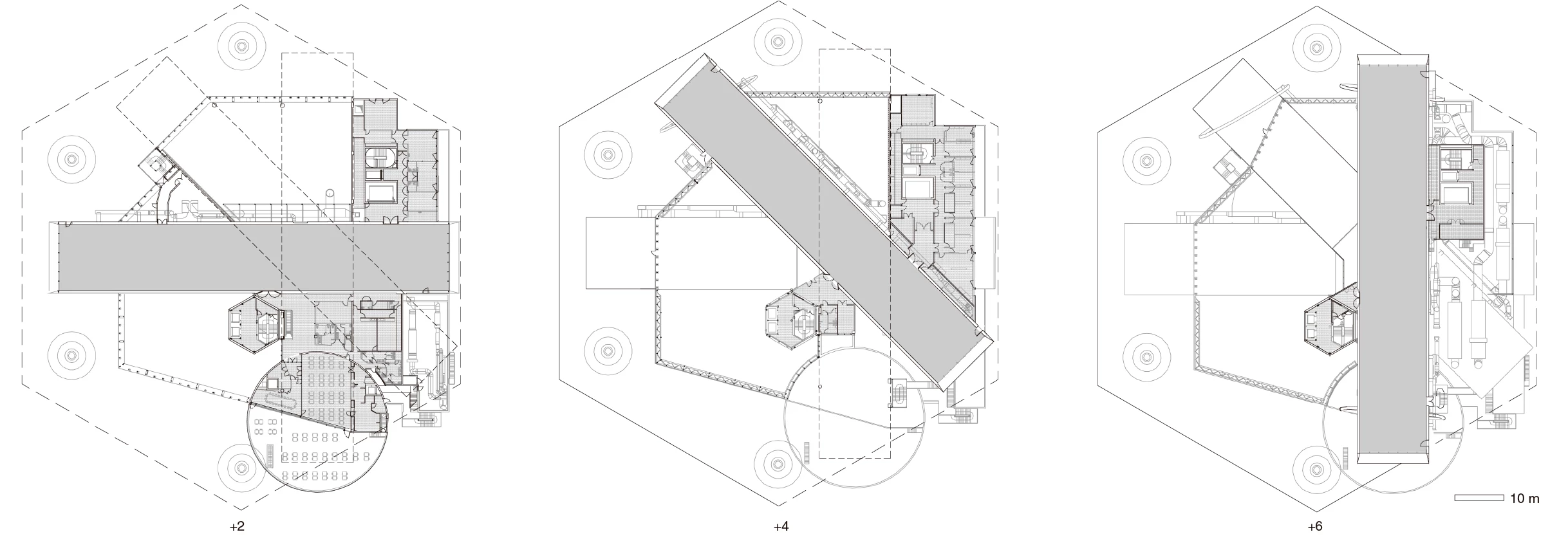
Una gran carpa alabeada da forma a la nueva sede del Centro Pompidou en Metz, a 300 kilómetros de París, en el noreste de Francia. Bajo esta envolvente se apila una serie de volúmenes sencillos en los que se articula el programa. Esta dualidad entre las formas regulares e irregulares permite que el proyecto disfrute de una gran riqueza espacial sin renunciar a la funcionalidad. En torno a una torre de planta hexagonal, que contiene los ascensores, se superponen tres prismas con dimensiones modulares (15 x 90 metros) diseñados para alojar salas de exposición. Cada uno de ellos se dirige hacia un punto determinado del contexto urbano, enmarcando vistas hacia lugares significativos de la ciudad como la catedral o la estación central. Estas tres naves de dimensiones controladas contrastan con la amplitud del vestíbulo que llega hasta los 18 metros de altura.
Inspirado en el tejido tradicional chino, el entramado de madera sobre el que se tensa la cubierta sigue un patrón formado por hexágonos y triángulos, de manera que se reduce el número de nervios en cada encuentro. Además, las cintas de madera se superponen entre sí, por lo que se simplifica la geometría de las juntas. La estructura funciona como una cáscara continua que soporta tanto los esfuerzos a tracción como a compresión.











Client
City of Metz, CA2M
Architects
Shigeru Ban Architects Tokyo: Shigeru Ban, Nobutaka Hiraga; Jean de Gastines Architectes Paris: Jean de Gastines; Gumuchdjian Architects London: Philip Gumuchdjian (competition)
Shigeru Ban Architects Europe Paris: Shigeru Ban, Jonathan Thornhill, Rahim Danto Barry; Jean de Gastines Architectes Paris: Jean de Gastines (design and site administration)
Collaborators
Structure: Ove Arup London (competition; design and site administration, first phase); Terrell Paris (design and site administration, second phase); Hermann Blumer (structure for the timber roof); MEP: Ove Arup London, Gec Ingénierie Paris; Lighting: L’Observatoire 1 Paris; Icon Paris, Akari-Lisa Ishii; Quantity surveyor: J.P Tohier & Associés Paris; Acoustics: Commins Acoustics workshop Paris; Security consultant: Cabinet Casso & Cie, Paris
Contractor
General contractor: Demathieu & Bard Metz; Timber roof: SJB (for structural analysis), Holzbau Amann, Weilheim-Bannholz; Roof membrane: Taiyo Europe, Munich (Germany)
Built-up area
8,118 m²
Budget
51M €
Photos
Didier Boy De La Tour