Museo de Arte Berkeley y filmoteca Pacific, Berkeley
Diller Scofidio + Renfro- Tipo Cultura / Ocio Educación Museo
- Material Metal
- Fecha 2010 - 2016
- Ciudad Berkeley
- País Estados Unidos
- Fotografía Iwan Baan
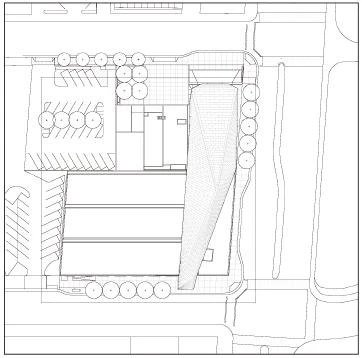
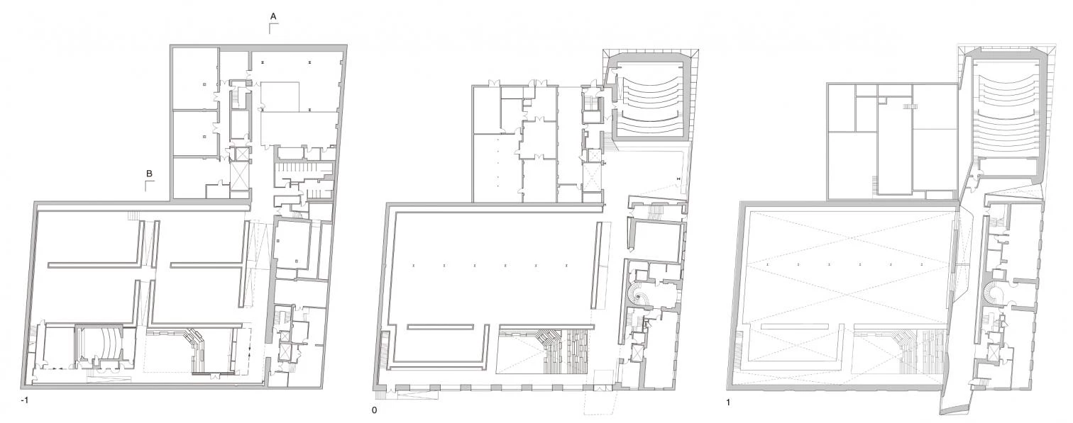
En el límite entre la ciudad de Berkeley y el histórico campus de la Universidad de California, la ampliación del centro de artes visuales BAMPFA —que fusiona el Museo de Arte de la Universidad y la filmoteca Pacific— aúna los intereses cívicos y académicos, ofreciendo una experiencia accesible a toda la comunidad. Una superficie reglada de acero inoxidable se adhiere al antiguo edificio de prensa, construido en 1939, y crea un eje vertebrador que comienza con una cafetería en voladizo sobre la fachada sur y termina con una pantalla multimedia en el extremo norte. En el punto de encuentro entre el nuevo volumen escultórico y el bloque ortogonal existente, la piel metálica se pliega dejando ver el atrio interior a través de una piel acristalada. Asimismo, las ventanas a lo largo de la fachada de Center Street se amplían para que los peatones puedan contemplar desde la calle el ‘Art Wall’, una superficie de 60 x 25 pies donde se exponen murales temporales.
El proyecto se concibe, por tanto, como una interfaz permeable entre la institución y el público. Además de las galerías de arte, que se sitúan en la nave existente con cubierta en diente de sierra, el centro incluye un pequeño auditorio, un laboratorio de creación artística, una biblioteca, un área de estudio y una cafetería. En el interior, los ambientes neutros destinados a las exposiciones se combinan con espacios expresivos forrados de rojo en las zonas comunes. La fachada metálica, cuya geometría se ha diseñado con herramientas paramétricas, se construye con paneles de acero inoxidable unidos entre si mediante el sistema de junta alzada, que aporta al conjunto una imagen rítmica.















Proyecto Project
Berkeley Art Museum and Pacific Film Archive, University of California, Berkeley
Arquitectos Architects
Charles Renfro (socio encargado partner-in-charge); Elizabeth Diller, Ricardo Scofidio, Benjamin Gilmartin (socios partners); Zoë Small, Anthony Saby (dirección de proyecto project lead); Michael Samoc, Haruko Saito (arquitecto de proyecto project architect); Charles Curran, Mark Gettys, William Ngo, Sabri Farouki, J.D. Messick, Jose Vidalon, John Chow, Irina Chernyakova, Stefan Roeschert (equipo de diseño design team)
Colaboradores Collaborators
EHDD Architecture (arquitecto de ejecución executive architect); Forell/Elsesser Engineers (estructura structural engineer); BKF Engineers (ingeniería civil civil engineer); IBE Consulting Engineers (instalaciones MEP engineer); Architect’s Security Group Inc. (seguridad security); Jaffe Holden (acústica acoustics); Tillotson Design Associates (iluminación lighting); Boyce Nemec Designs (teatro y audiovisuales theater and AV); Fisher Dachs Associates (teatro theater); Hargreaves Associates (paisajismo landscape architect); Simpson Gumpertz & Heger (consultor de fachada facade consultant); Degenkolb (ingeniería de apuntalamiento shoring engineer)
Fotos Photos
Iwan Baan