Centro educativo McMurtry, Palo Alto
Diller Scofidio + Renfro- Tipo Educación Universidad
- Fecha 2011 - 2015
- Ciudad Palo Alto (California)
- País Estados Unidos
- Fotografía Iwan Baan
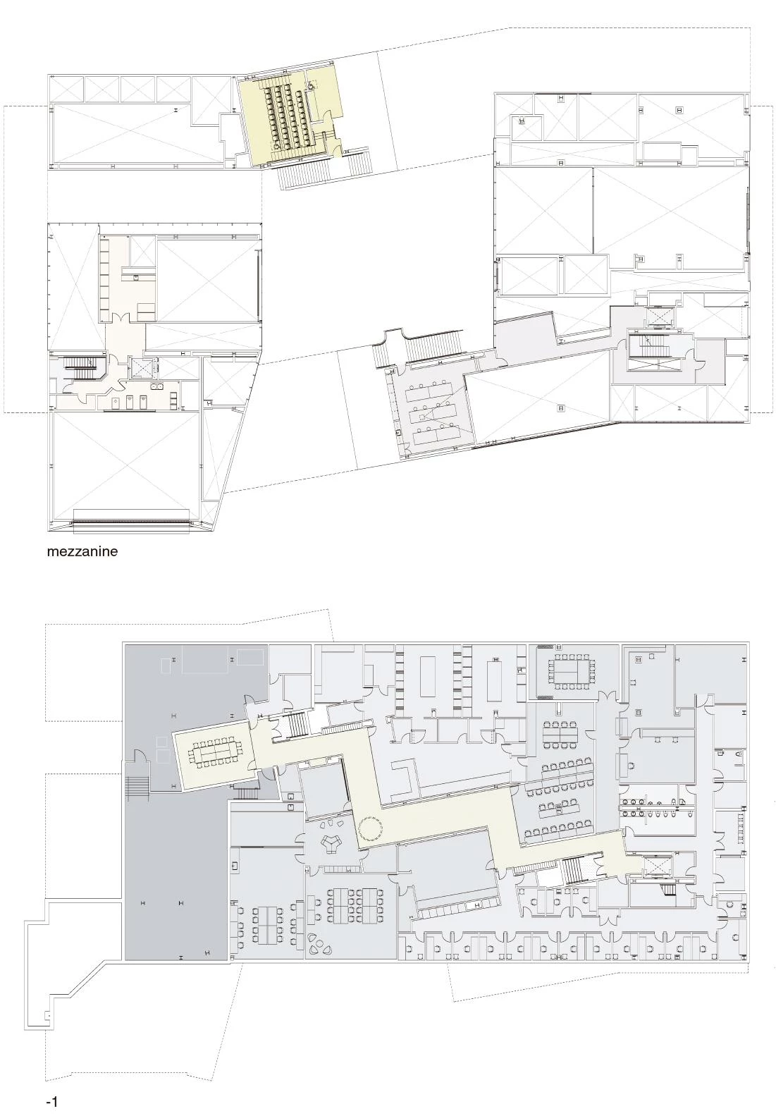
Entrelazados como si fueran las hebras del ADN, los departamentos de Arte e Historia del Arte de la Universidad de Stanford, en California, se relacionan entre sí para crear un entorno de enriquecimiento mutuo, que se complementa con el programa de la biblioteca de Arte y Arquitectura situado entre ellos. Estos tres volúmenes maclados hacen que el centro McMurtry adopte una potente imagen escultórica subrayada por la materialidad de los acabados: mientras que el edificio de Historia del Arte se reviste de estuco, haciéndose eco de la tradición constructiva del campus; la facultad de Arte se cierra mediante planchas de zinc patinado, en consonancia con la imagen industrial de los talleres de producción de obras; y la biblioteca, por su parte, se envuelve con una superficie continua de paneles verticales de vidrio. En el centro del conjunto, rodeado por un sistema de circulación en espiral, se sitúa un patio central que funciona como zona de descanso y vestíbulo abierto. A pesar de la sencillez conceptual del edificio, que se construye como la traslación directa de un diagrama de usos, la compleja geometría de las zonas intersticiales da lugar a una gran riqueza espacial donde se multiplican las relaciones visuales entre los distintos usos tanto interiores como exteriores.



















Proyecto Project
McMurtry Art and Art History Building, Stanford University
Arquitectos Architects
Charles Renfro (socio encargado partner-in-charge), Elizabeth Diller, Ricardo Scofidio, Benjamin Gilmartin (socios partners); David Chacon (dirección de proyecto project lead); Brian Tabolt (diseño de proyecto project designer); Matthew Johnson, Olen Milholland, Aryan Omar, Tyler Polich, Chris Andreacola, Patrick Ngo, Nkiru Mokwe (equipo de diseño design team)
Colaboradores Collaborators
Boora Architects (arquitecto de registro architect of record); Forell / Elsesser Engineers (ingeniería estructural structural engineer); Sprig Electric (ingeniería eléctrica electrical engineer); Therma Corporation (ingeniería mecánica mechanical engineer); KDS Plumbing (ingeniería hidráulica plumbing engineer); Atelier Ten (consultoría de sostenibilidad y diseño de iluminación diurna sustainability consulting and daylighting design); BKF Engineers (ingeniería civil civil engineer); Cornerstone Earth Group (ingeniería de suelos soils engineer); The Office of Cheryl Barton (paisajismo landscape architect); Mayer / Reed (consultoría señalética signage consultant); RGD Acoustics (acústica acoustics); Tillotson Design Associates (diseño de iluminación lighting design)
Contratista Contractor
Whiting-Turner
Fotos Photos
Iwan Baan