Centro cultural The Shed, Nueva York
Diller Scofidio + Renfro- Tipo Centro cultural Cultura / Ocio
- Material Plástico ETFE
- Fecha 2008 - 2019
- Ciudad Nueva York
- País Estados Unidos
- Fotografía Iwan Baan Timothy Schenck Alex Fradkin
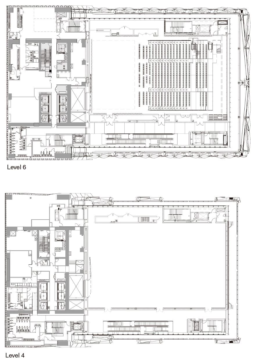
En el extremo occidental de Manhattan, donde el High Line se encuentra con los Hudson Yards, Diller Scofidio + Renfro, en colaboración con Rockwell Group, ha construido The Shed, un colosal centro de creación e investigación artística. Con seis niveles dedicados a la programación cultural y a las artes visuales, y cubierto por una carcasa móvil que puede colonizar la plaza adyacente generando un espacio para intervenciones de gran escala, el complejo se incrusta en la base de una torre residencial anexa y ofrece un amplio abanico de posibilidades de configuración, lo que garantiza su adaptación a las necesidades futuras.
Inspirado en el Fun Palace de Cedric Price, el centro está diseñado para adaptarse a la variación de medios y necesidades de los artistas e incluye, en sus 18.500 metros cuadrados, galerías, un teatro, zona de ensayos, un laboratorio creativo y un espacio para eventos.
La nave cuenta con una gran cubierta telescópica que al desplegarse, deslizándose desde su posición inicial sobre el edificio base a lo largo de unos rieles para colonizar la plaza contigua, duplica la huella del centro, incorporando 1.600 metros cuadrados.
























Proyecto Project
The Shed
Arquitectos Architects
Elizabeth Diller (socia encargada partner-in-charge), Ricardo Scofidio, Charles Renfro, Benjamin Gilmartin (socios partners); Robert Katchur (director de proyecto project director); David Allin, Matthew Ostrow (diseño de proyecto project designer); Charles Berman (arquitecto de proyecto project architect), Michael Samoc, Matthew Johnson, Soerynn Kim, Rosannah Harding, Laura Haak, Anahit Hayrapetyan, Sarosh Anklesaria, Mario Bastianelli, Evan Tribus, Lisette Vargas, Katrina Collins, Lilian Fitch, Michael Hundsnurscher, Jonathan Parker, Michael Robitz, Alex Knezo, Jack Solomon, Andreas Kostopoulos, Kazuhiro Adachi, Alina Agorokhova, Barry Beagen, Ryan Botts, Annie Coombs, Jason Dannenbring, Andrew Domnitz, Seto Hendranata, Robert Loken, Lindsay May, David Maynor, Meaghan Michael McElderry, Bre Rouse, Merica May Jensen, Benjamin Smoot (equipo de diseño design team)
Colaboradores Collaborators
Rockwell Group (arquitectos colaboradores collaborating architects); Levien & Company (representante de la propiedad owner’s representative); Sciame Construction, LLC (dirección de obra construction manager); Thornton Tomasetti (diseño estructural, ingeniería de fachadas e ingeniería cinética structural design, façade engineering and kinetic engineering services)
Consultores Consultants
Jaros, Baum & Bolles (ingeniería mecánica e incendios MEP and fire protection consultant); Hardesty and Hanover (sistemas cinéticos kinetic systems consultant); Vidaris (modelos energéticos energy modeling consultant); Tillotson Design Associates (iluminación lighting consultant); Akustiks (acústica / audio / visual acoustics / audio / aisual consultant); Fisher Dachs (consultoría teatral theater consultant); Cimolai (fabricante de acero estructural structural steel fabricator); Vector Foiltec (fabricante ETFE ETFE fabricator); Code Consultants, Inc (código code consultants); Van Deusen & Associates (transporte vertical vertical transport); Ducibella Venter & Santore (seguridad security); Other Means (diseño gráfico y wayfinding graphic design and wayfinding); Entek Engineering (mantenimiento de fachada façade maintenance); James R. Gainfort AIA Consulting Architects PC (impermeabilización waterproofing); Construction Specifications Inc (especificaciones specifications)
Fotos Photos
Iwan Baan, Alex Fradkin