Centro de arte, Besançon
Kengo Kuma- Tipo Cultura / Ocio Museo
- Material Madera
- Fecha 2007 - 2012
- Ciudad Besançon
- País Francia
- Fotografía Erieta Attali Nicolas Waltefaugle
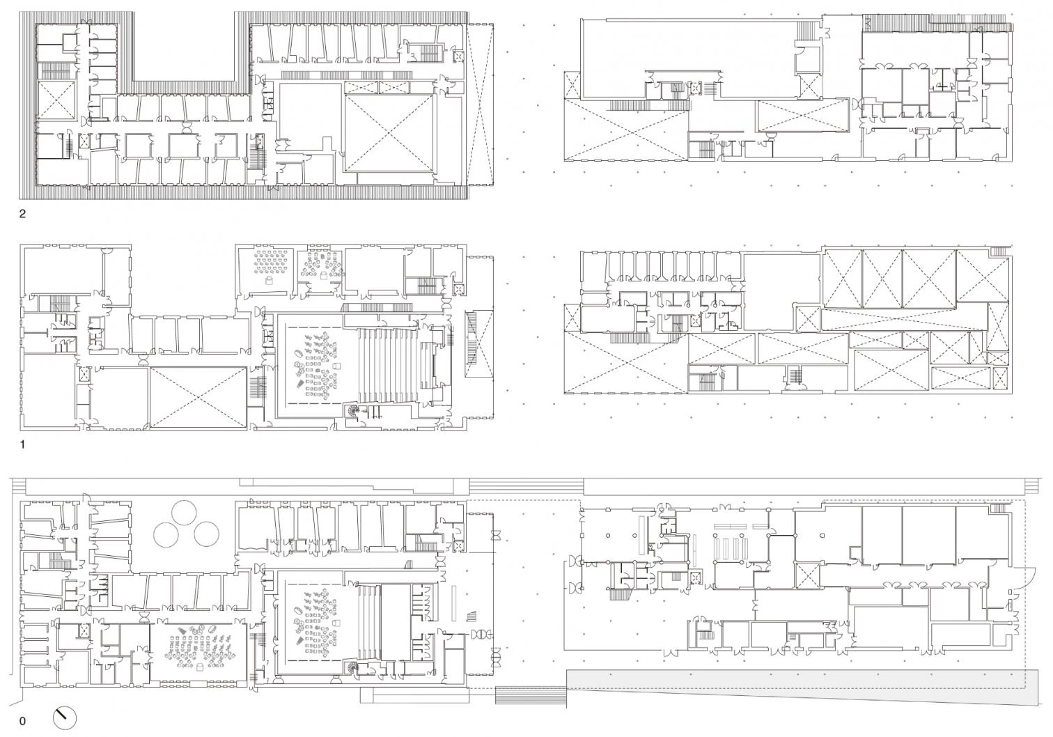
Al borde del río Doubs, a los pies de la ciudadela de Besançon, fortaleza construida en el siglo xvii por Vauban, se asienta el centro de las artes y la cultura. Un lugar percibido a lo largo de la historia como una barrera física por sus habitantes, tanto por su condición de límite con el río como por su pasado industrial. Dos volúmenes cerrados albergan los dos programas del complejo, el centro de arte de Besançon que incluye una galería de las colecciones regionales FRAC y una escuela de arte; y la ciudad de la música, un conservatorio con su propio auditorio. Una gran cubierta calada recoge e unifica estos programas creando un espacio al aire libre entre ambos que funciona como puerta monumental a la ciudad y al mismo tiempo de refugio evocando el espacio bajo los árboles, donde la luz se filtra suavemente a través de las hojas. Este efecto de luz matizada se produce también en el interior gracias a los paneles de vidrio colocados al azar en la cubierta. Sólo rompe la continuidad de la superficie un edificio industrial de ladrillo de los años treinta que se conserva y en el que se sitúa parcialmente el conservatorio. La estructura se resuelve con vigas de madera de 14 centímetros de ancho por un metro de canto que apoyan sobre esbeltas columnas metálicas de 20 centímetros de diámetro y 10 metros de altura.













Cliente Client
Communauté d’agglomération, Franche-Comté, Besançon
Arquitecto Architect
Kengo Kuma & Associates
Colaboradores Collaborators
Archidev, Cachan (arquitecto asociado architect associate); Egis, Strasbourg (estructura structural engineering); L’Anton, Arcueil (paisajismo landscape); Lamoureux (acústica acoustic engineering); Changement à Vu (escenógrafo scenographer)
Contratista Contractor
SAS Laubeuf, Sodex Obliger (exterior); HEFI/Soprema (cubierta roof); Avenir Bois Structures (estructura de madera wooden structure); Yan Jia Construction engineering Co. Ltd.
Fotos Photos
Erieta Attali; Nicolas Waltefaugle