Oficinas Komatsu Matere, Nomi
Kengo Kuma- Tipo Comercial / Oficina Sede / oficina
- Material Textil
- Fecha 2013 - 2015
- Ciudad Nomi
- País Japón
- Fotografía Takumi Ota
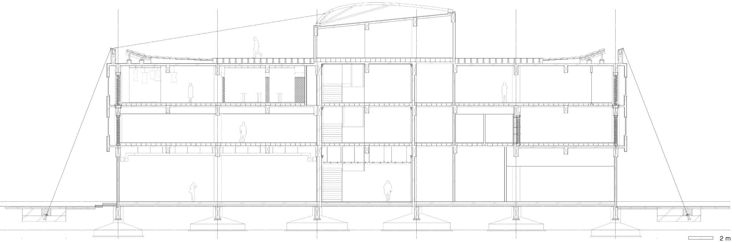
La empresa japonesa Komatsu Matere, especializada en textiles, ha desarrollado un producto innovador a base de fibra de carbono para ser utilizado como refuerzo sísmico. Este elemento se compone de varios cordones entrelazados de fibra de carbono (con una capa exterior de fibra sintética y fibra inorgánica) recubiertos con resina termoplástica. El material resultante tiene una elevada resistencia a tracción, pero al mismo tiempo continúa siendo ligero y fácilmente transportable en bobinas. En 2013, se encargó al estudio de Kengo Kuma la transformación de unas antiguas oficinas centrales de la compañía —una construcción convencional de hormigón armado— en un showroom que mostrara las posibles aplicaciones arquitectónicas de este sistema.
Para controlar la estabilidad, el perímetro del bloque se envuelve con un fino dosel de cuerdas CABKOMA. Cada una está anclada en la cubierta y en una serie de fijaciones especiales dispuestas en el suelo siguiendo un perfil curvo donde se adivinan aberturas sutiles que dan acceso al edificio. Para rigidizar la estructura, en el interior se colocan también pantallas formadas por un denso entramado de estas cuerdas. Por otro lado, la cubierta se remata con Greenbiz, paneles vegetales que usan como base la arcilla porosa producida con la fabricación de las fibras.










Obra Work
Komatsu Seiren Fabric Laboratory fa-bo
Cliente Client
Komatsu Matere Co., Ltd
Arquitectos Architects
Kengo Kuma & Associates; Matthieu Wotling, Satoshi Adachi, Makoto Shirahama (antiguo socio) —socios encargados partners in charge—; Masafumi Harigai, Tetsuo Yamaji, Kimio Suzuki (CG), Junki Wakuda (CG), Miki Sato (tejido fabric), Shun Horiki (Greenbiz), Hirotaka Mashiko (mobiliario furniture), Mizuho Ozawa, Minako Izumi (gráfica graphic)
Consultores Consultants
Ejiri Structural Engineers: Norihiro Ejiri, Tetsuya Tanaka (estructura structure); Kankyo Engineering: Takafumi Wada, Kazunari Oshima, Minako Goto (instalaciones facility); Izumi Okayasu Lighting Design: Izumi Okayasu, Atsushi Sugio (iluminación lighting); Shimizu Corporation Hokuriku Branch: Koichi Tokai, Katsuya Hayashi (construcción arquitectura architecture construction); Shiva denki kouji: Jumpei Takahashi (instalaciones eléctricas electrical facility); Mitani Sangyo: Masanobu Kobori (instalaciones mecánicas mechanical facilities); Nomura Co., Ltd (exposición exhibition)
Superficie construida Built-up area
949 m²
Fotos Photos
Takumi Ota Photography