Edificio de oficinas, Las Rozas
Jerónimo Junquera Estanislao Pérez Pita- Tipo Sede / oficina
- Material Vidrio Piedra Granito Acero Pizarra
- Fecha 1991 - 1995
- Ciudad Las Rozas (Madrid)
- País España
- Fotografía Eduardo Sánchez Ángel Baltanás
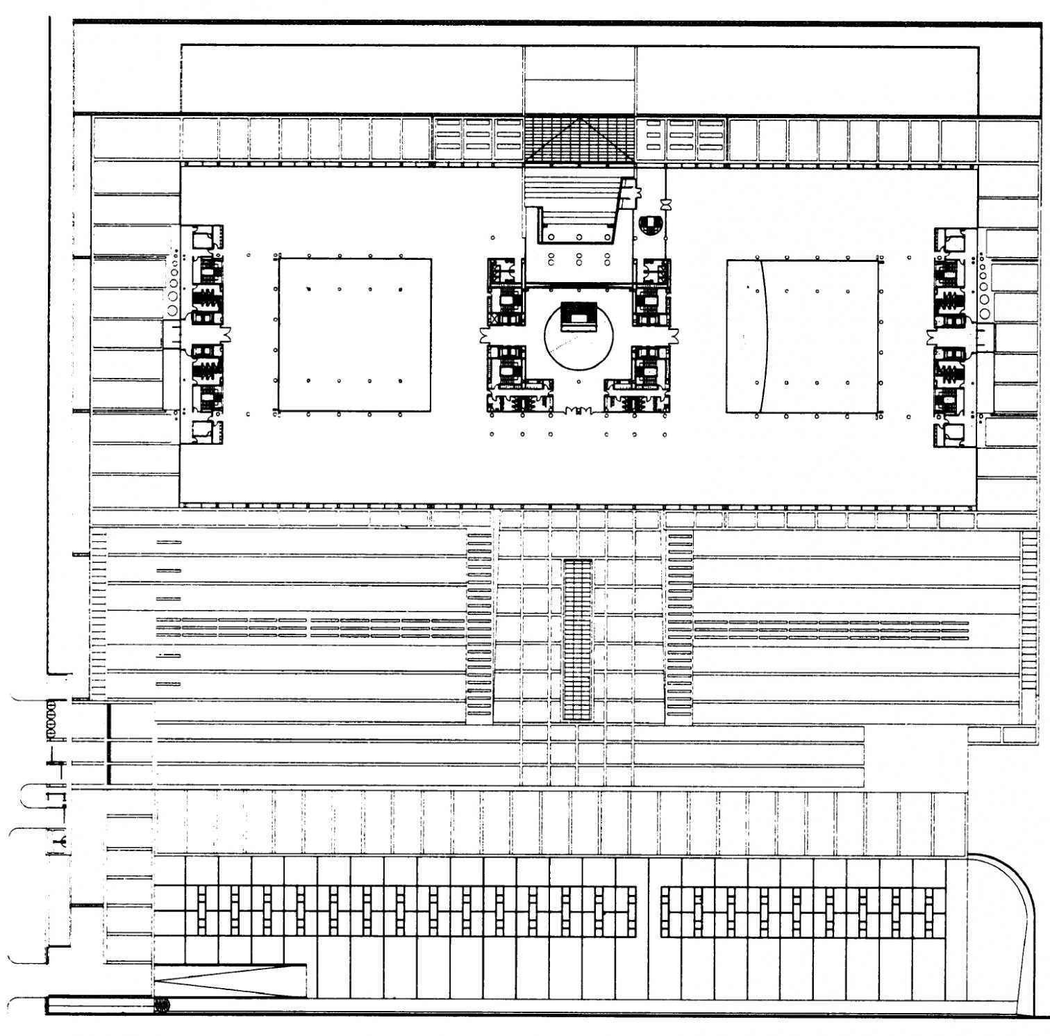
Sentado sobre un plinto escalonado de aparcamientos, este imponente paralelepípedo negro de 140 x 60 metros alberga el centro de cálculo de una entidad bancaria. La estructura reticular del edificio se traslada a la composición de la fachada, con los cantos revestidos de granito africano flameado y los entrepaños formados por módulos prefabricados de acero, vidrio y pizarra que funcionan como un muro cortina y se retranquean respecto a la malla granítica en las fachadas longitudinales. Los paramentos de los patios interiores son paños continuos de vidrio, y la cubierta es un plano horizontal cuyo pavimento flotante crea un colchón térmico. Para contrarrestar este rigor geométrico y gris se recurre puertas adentro a las variaciones de ritmo, texturas y colores, así como a las formas circulares en el hueco del vestíbulo y las luminarias.

