Edificio residencial Ibaté en São Paulo
Studio Arthur Casas- Tipo Vivienda Colectiva Torre
- Material Hormigón
- Fecha 2025
- Ciudad São Paulo
- País Brasil
- Fotografía Fran Parente
El edificio Ibaté está situado en una parcela en esquina del barrio de Vila Nova Conceição, en São Paulo, un área que actúa como zona de transición entre un eje urbano de alta densidad y un tejido residencial más bajo y tranquilo. Esta condición híbrida del entorno fue determinante para las decisiones de proyecto, especialmente en lo que respecta a la relación del edificio con la ciudad y a su forma de ocupación del terreno.
El proyecto prioriza la calidad espacial y la integración urbana, apostando por una arquitectura de lectura clara, donde la estructura, los materiales y la organización funcional se presentan de manera directa. La estructura completamente expuesta define el edificio. Las fachadas están ejecutadas en hormigón estructural visto, sin revestimientos adicionales, lo que otorga una identidad visual sólida y atemporal.
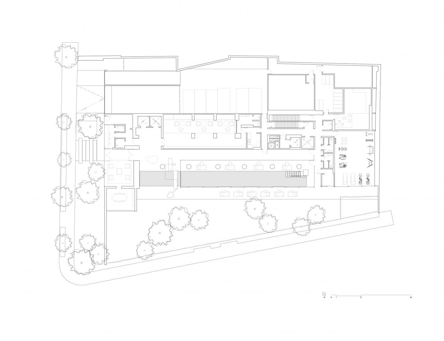
La torre emerge sobre un terreno longitudinal y alberga una única unidad residencial por planta. Esta disposición permite una clara separación entre áreas sociales, privadas y de servicio. La circulación vertical se resuelve mediante dos núcleos de ascensores, optimizando la privacidad y la eficiencia. Todas las viviendas cuentan con ventilación cruzada, amplias aberturas hacia el exterior y una orientación solar cuidadosamente estudiada. La fachada principal se abre completamente hacia una terraza continua, acompañada por pasillos perimetrales.
En planta baja, el proyecto propone una transición amable entre el espacio público y el privado. Una amplia zona libre, equipada con vegetación y mobiliario, sustituye el cerramiento convencional por un recinto acristalado que actúa como antesala urbana. De este modo, el edificio refuerza la transparencia, la permeabilidad visual y el carácter colectivo de sus espacios comunes.





















