Ibaté residential building in São Paulo
Studio Arthur Casas- Type Housing Collective Tower
- Material Concrete
- Date 2025
- City São Paulo
- Country Brazil
- Photograph Fran Parente
The Ibaté building is located on a corner lot in the Vila Nova Conceição neighborhood of São Paulo, an area that acts as a transition zone between a high-density urban hub and a lower-density, quieter residential neighborhood. This hybrid nature of the surroundings was a determining factor in decision-making, especially in terms of the building's relationship with the city and how it occupies the land.
The project prioritizes spatial quality and urban integration, opting for an architecture that is easy to read, where the structure, materials, and functional layout are clearly presented. The fully exposed structure defines the building. The facades are executed with the structural concrete left exposed, with no cladding, resulting in a solid and timeless visual identity.
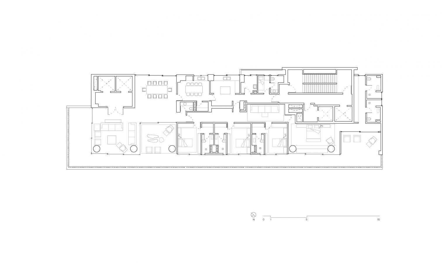
The tower rises on a longitudinal plot and contains only one residential unit per floor. This arrangement allows for a clear separation between social, private, and service areas. Vertical circulation is provided by two elevator shafts, maximizing privacy and efficiency. All the flats have cross ventilation, large openings to the exterior, and carefully oriented sun exposure. The main facade gives out completely onto a continuous terrace, accompanied by perimeter corridors.
On the ground floor, the project proposes a pleasant transition between public and private space. A large open area, featuring vegetation and furniture, replaces the conventional enclosure with a glass-enclosed space that acts as an urban antechamber. In this way, the building reinforces the transparency, visual permeability, and collective character of its communal spaces.





















