Casa Mendes da Rocha, São Paulo
Paulo Mendes da Rocha- Tipo Prefabricación Vivienda Casa
- Material Hormigón
- Fecha 1964 - 1967
- Ciudad São Paulo
- País Brasil
- Fotografía Leonardo Finotti Nelson Kon
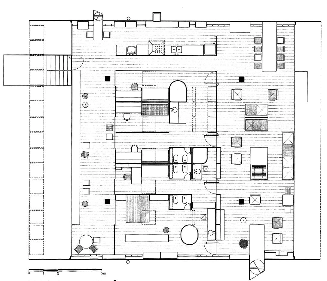
Construidas en hormigón in situ pero concebidas para ser prefabricadas, las casas gemelas para Mendes da Rocha y su hermana se sitúan, una junto a otra, sobre el declive de una pequeña colina en el barrio residencial de Butantã en São Paulo. La estructura de las viviendas, estrictamente modular, está formada por cuatro pilares retranqueados sobre los que se eleva el forjado principal compuesto por una losa nervada y dos vigas transversales, que se extienden en voladizo en ambas direcciones. Este volumen suspendido define un espacio en sombra, que actúa como lugar de recepción y que se ve sólo interrumpido por un cilindro para el servicio doméstico y la escalera de acceso al piso superior.
Una vez en el nivel principal, los dormitorios no se adhieren a las fachadas sino que se sitúan en la zona central y se iluminan cenitalmente. De esta forma, las franjas perimetrales quedan libres para albergar las salas comunes que vuelcan hacia la calle. Las paredes divisorias, construidas con placas de hormigón de cinco centímetros, no llegan al techo permitiendo la ventilación por todo el conjunto. Esta continuidad se prolonga al exterior en los frentes este y oeste, matizada por un paramento vertical que impide el soleamiento directo y a su vez sirve de zuncho para las vigas de cubierta.


















Cliente Client
Paulo Mendes da Rocha
Arquitecto Architect
Paulo Mendes da Rocha
Colaborador Collaborator
João Eduardo de Gennaro
Consultores Consultants
Siguer Mitsutani (estructura de hormigón armado y cimentaciones structure of reinforced concrete and foundations); Hélio Santiago (instalaciones eléctricas electrical facilities); Julio Cerqueira César Neto (instalaciones hidráulicas water systems)
Contratista Contractor
Cenpla-Construções, Engenharia e Planejamento Ltda.