Colegio de Arquitectos, Gijón
César Ruiz-Larrea Antonio Gómez Gonzalo Ortega- Tipo Sede administrativa Rehabilitación
- Material Vidrio
- Fecha 2005
- Ciudad Gijón
- País España
- Fotografía Marcos Morilla
Una vieja casona en la calle Recoletas fue elegida para alojar la nueva sede del colegio oficial de arquitectos de Asturias en Gijón. Entre las principales bondades del antiguo inmueble estaba su grueso muro perimetral, que resolvía con acierto las diferencias de cota entre las calles Jovellanos y Recoletos.

Se ha conservado parte de él, mientras otra parte —fundamentalmente la mitad de la fachada a la calle Jovellanos y toda la parte que da al callejón trasero— se ha sustituido por una fachada de piezas de vidrio decorado en madera, que al anochecer, dejando pasar la luz del interior, convierte el edificio en un faro urbano.

La sede del colegio se aloja en una vieja casona del casco histórico de Gijón. La intervención conserva parte de la antigua fachada, cuyo muro perimetral salvaba con acierto las diferencias topográficas del lugar.


El conjunto de las plantas se ha distribuido con la intención de alojar espacios diáfanos susceptibles de cambiar de uso a lo largo del tiempo. Así, las escaleras se han dispuesto en una esquina —sin llegar a tocar el muro de fachada—, y frente a ellas se ha situado un núcleo cerrado que aloja ascensor y servicios. Completando esta área funcional se ubica un patio delimitado por paños de vidrio que recibe iluminación puntual del exterior, tamizada por el tono tostado de las piezas de vidrio decorado. Queda así definido en el vértice más profundo del Colegio un espacio de servicio, y el resto de la planta se libera para adoptar la distribución más favorable para un uso y un tiempo determinados.

En el nivel de acceso se encuentran los servicios de recogida de vi-sados y Caja de Arquitectos; en la primera y segunda se encuentran distintas oficinas; las dos últimas reducen considerablemente la planta, para alojar la biblioteca y el archivo la tercera y la sala de juntas la cuarta. Desde esta última se disfruta de inmejorables vistas sobre la ciudad.

En el interior se multiplican los planos de madera, que forran los muros a modo de estanterías o enmarcan las viejas ventanas. Los miradores, elementos volados en madera y vidrio tan abundantes en el casco histórico de Gijón, han servido de inspiración a la hora de cualificar el espacio.

Parte del frente del viejo inmueble que abría al callejón se sustituye por una fachada ventilada con vidrio en ambas caras que actúa como faro urbano por la noche mientras que por el día inunda con luz tamizada el interior.
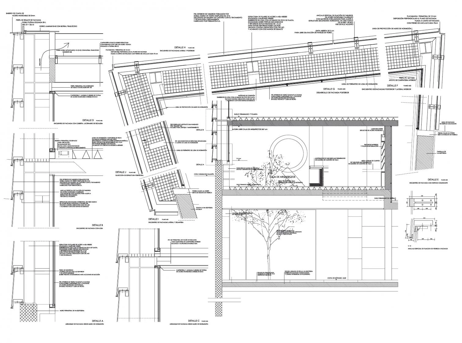
Se construye un cerramiento de mínimo grosor pero de altas prestaciones. Al interior se coloca vidrio térmico sobre una carpintería fija y pivotante de acero. Al exterior, se solapan piezas horizontales de vidrio templado decorado en madera de cas-taño. Entre ambas se encuentra la estructura principal de acero a base de perfiles HEB. A la estructura se ha soldado la subestructura de perfiles también de acero que sujetan las piezas horizontales de la cara exterior, y se ha dispuesto a nivel de cada planta un suelo de rejilla para mantenimiento. Una platabanda vertical remata el vidrio en los encuentros en esquina del edificio.



Las escaleras se disponen en una esquina sin llegar a tocar la fachada y frente a ellas se sitúa un núcleo cerrado que aloja ascensor y servicios. Completando esta área funcional se ubica un patio delimitado por paños de vidrio.

Cliente Client
Colegio Oficial de Arquitectos de Asturias
Arquitectos Architects
César Ruiz-Larrea, Antonio Gómez, Gonzalo Ortega
Colaboradores Collaborators
Fernando Nanclares, Eduardo Bárzana, Julio Redondo, Federico Tabasco, Francisco Rica Consultores Consultants
OTEP Internacional (estructuras structure)
Contratista Contractor
Procoim
Fotos Photos
Marcos Morilla