Plaza y torre Woermann, Las Palmas de Gran Canaria
Ábalos & Herreros- Tipo Colectiva Sede administrativa Plaza Vivienda Comercial / Oficina
- Material Vidrio
- Fecha 2004
- Ciudad Las Palmas de Gran Canaria
- País España
- Fotografía Roland Halbe Paolo Rosselli
El istmo de santa catalina, en el extremo nororiental de la isla de Gran Canaria, conecta la masa edificada de la ciudad de Las Palmas en el sur, con la península vacía de La Isleta en el norte. Extremadamente sensible por su ubicación entre la playa de Las Canteras y el Puerto de la Luz, este brazo de tierra constituye la fina línea de división entre el ocio asociado a la primera y comercio del segundo, a la vez que se identifica como lugar de paso y área de estancia al mismo tiempo. El solar del antiguo Woermann se encuentra a mitad de recorrido, asomando en el flanco oriental (el del puerto), y constituye un espacio de desahogo en la densa trama reticular que ocupa el istmo.




La torre se levanta en mitad del istmo sobre un plano continuo de pedrería portuguesa abierto al mar, cuyo diseño ha sido realizado en colaboración con el artista Albert Oehlen.


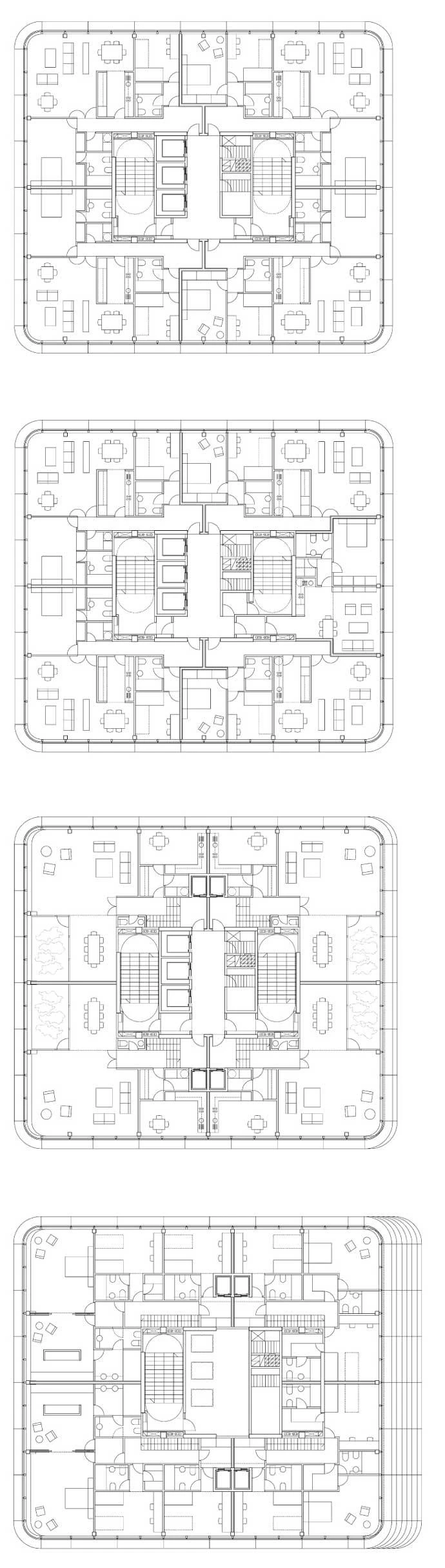
El programa demandaba, además de una plaza pública, viviendas, oficinas, aparcamientos, locales comerciales y una biblioteca. El proyecto sitúa la plaza, un gran plano continuo de pedrería portuguesa —cuyo diseño se ha hecho en colaboración con el artista Albert Oehlen— en el centro, y excava bajo ella tres niveles de sótano para alojar el comercio y el garaje. Abierto hacia el mar, el recinto se convierte en una plaza tropical protegida del sol por plantaciones de envergadura media y alta en las orientaciones occidental y oriental, y por áreas porticadas de gran profundidad al norte y mediodía. Las dotaciones y las viviendas encuentran acomodo en los dos edificios que flanquean la plaza: hacia el sur, un bloque de siete alturas aloja oficinas y locales comerciales; hacia el norte, una torre de dieciocho plantas contiene la biblioteca en las tres primeras, las instalaciones en la cuarta, y viviendas en las restantes. Distribuidas en cuatro y cinco unidades por planta, y de uno, dos, tres y cuatro dormitorios, las viviendas se disponen en la torre con una altura libre entre forjados de más de tres metros, buscando una posición de dominio sobre las vistas. Las amplias salas de estar ocupan siempre (excepto en el nivel superior de los dúplex) los vértices romos de la planta cuadrada.




Las viviendas, de techos altos y abiertas al paisaje, se protegen del sol por medio de las sombras profundas de los brise soleil y de los motivos vegetales trabajados en el espesor de los vidrios, teñidos de colores.
La fachada constituida por grandes paños de vidrio, protegidos por las sombras tanto artificiales de los brise-soleil como naturales de los motivos vegetales tallados en el espesor del cristal, proporciona a la torre la impronta de un bosque de sombras sin escala. Por otro lado y atendiendo a su forma, el edificio —que parece cabecear en la cumbre como si observara el paisaje y se repliega en la base cediendo suelo a los viandantes— evoca más bien a un ser animado. Con esta doble concepción, vegetal y antropomórfica, la torre Woermann pretende corporeizar los deseos de una sociedad que busca acomodo entre naturaleza y desarrollo.

Cliente Client
Ferrovial Inmobiliaria
Arquitectos Architects
Iñaki Ábalos, Juan Herreros, Joaquín Casariego, Elsa Guerra, Renata Sentkiewicz
Colaboradores Collaborators
David Sobrino, Eduardo Cadaval; Albert Oehlen (artista artist)
Consultores Consultants
Obiol y Moya (estructura structure); PGI (instalaciones mechanical engineering); José Manuel Sánchez-Alciturri (estudio geológico geological study); José Torras (estudio económico economic study); Prointec (gestión project management)
Contratista Contractor
Ferrovial Agromán
Fotos Photos
Roland Halbe; Paolo Rosselli