Centro de salud y promoción social, Laongo
Diébédo Francis Kéré Kéré Architecture- Tipo Salud Centro de salud
- Material Bloque de hormigón
- Fecha 2010 - 2014
- Ciudad Laongo
- País Burkina Faso
- Fotografía Erik-Jan Ouwerkerk
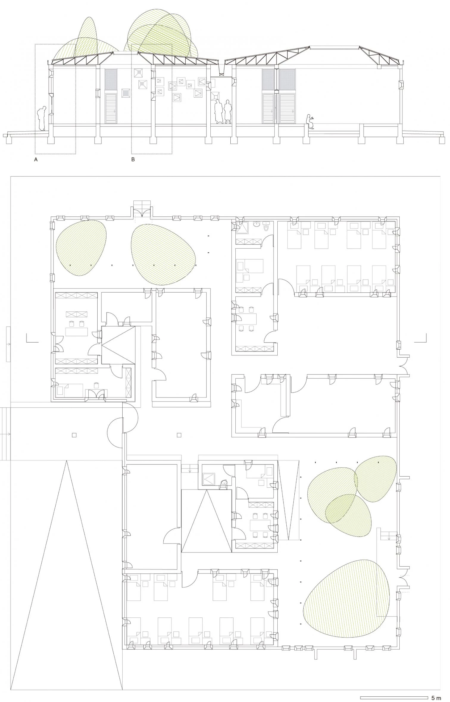
La construcción de un centro de salud dentro del ámbito del proyecto Opera Village responde a la voluntad de mejorar la atención sanitaria básica para la población local. El CSPS, acrónimo de Centre de Santè et de Promotion Sociale, cuenta con las instalaciones necesarias para ofrecer asistencia durante varios días y trasladar a los pacientes en estado más grave al hospital más cercano. El edificio se encuentra al final de un camino sinuoso que desciende desde la colina de la ópera, con vistas a la sabana. Desde el camino se aprecian las cubiertas a cuatro aguas que resuenan con el diseño abocinado de las ventanas y evocan el perfil de dos colinas en el horizonte.
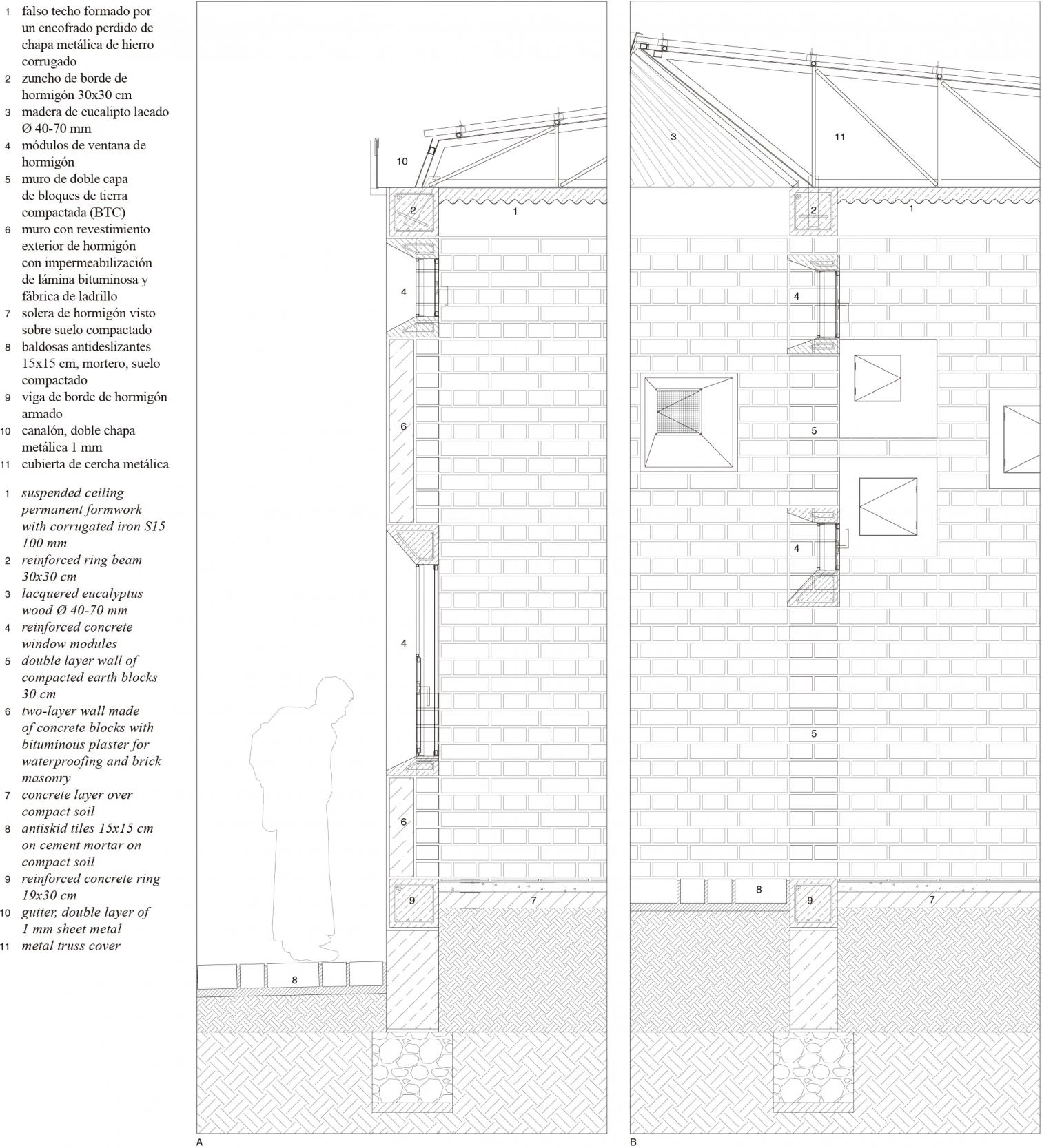
Con la intención de dotar al centro de un ambiente agradable para la comunidad, se han diseñado dos grandes patios de uso común donde los pacientes y familiares pueden descansar a la sombra. Además, cada unidad cuenta con su propio patio interior. El conjunto se cierra con un muro exterior permeable gracias a sus múltiples huecos. Diseñadas según tres módulos de diferentes tamaños, las ventanas se conciben como marcos de fotos que ofrecen al paciente diferentes enfoques del paisaje. Los muros exteriores están formados por una capa de ladrillos huecos de hormigón recubiertos de arcilla.









Cliente Client
Festspielhaus Africa
Arquitectos Architects
Kéré Architecture
Equipo de diseño Design Team
Diébédo Francis Kéré, Ines Bergdolt, Emmanuel Dorsaz, Jin Gul David Jun, Pedro Montero Gonzales, Dominique Mayer
Construcción Construction
Kéré Architecture (supervisión supervision); Gruenhelme e.V., Association Dolai
Superficie construida Built-up area
1,340 m²
Fotos Photos
Kéré Architecture, Erik-Jan Ouwerkerk