Centro de Desarrollo Infantil Cummins, Columbus
Carlos Jiménez- Tipo Educación Escuela Jardín de infancia
- Fecha 1997 - 2001
- Ciudad Columbus (Indiana)
- País Estados Unidos
- Fotografía Paul Hester
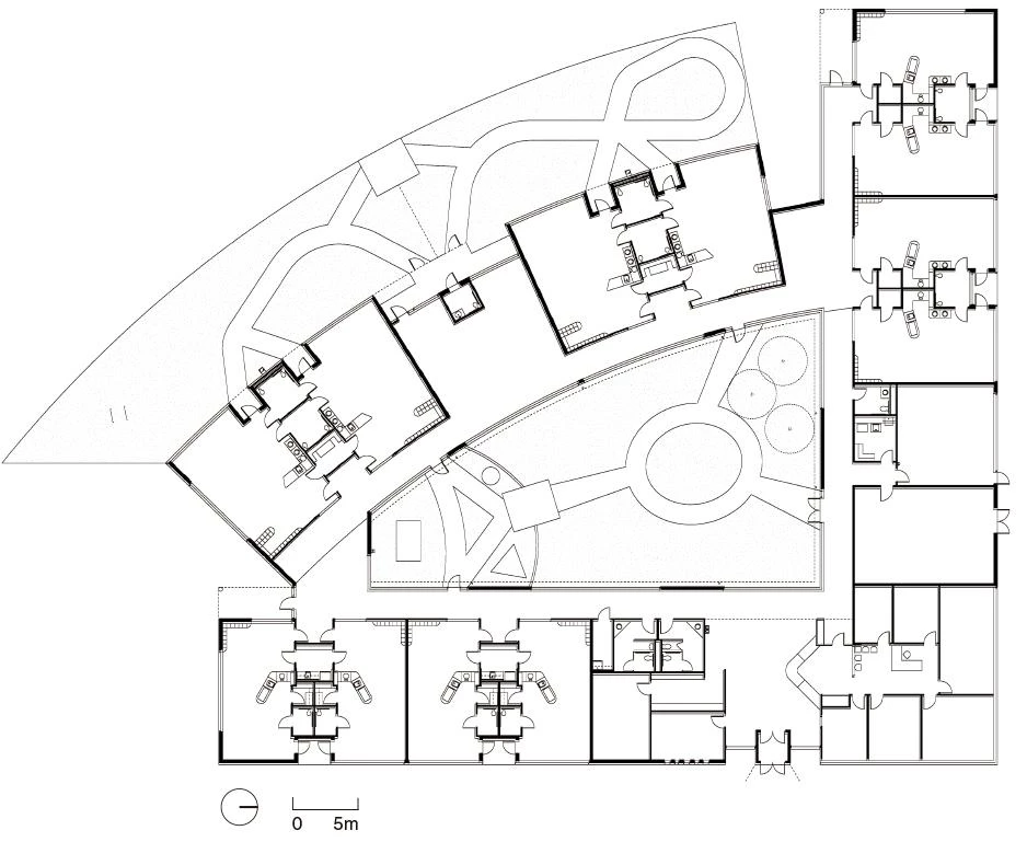
La Cummins Engine Company, una empresa que ejerce su mecenazgo en la pequeña ciudad de Columbus, decidió en 1997 crear un centro de cuidado infantil destinado tanto a sus empleados como al público general. La dotación, de una planta y algo más de 2.000 metros cuadrados, ocupa una parcela en esquina situada en medio del complejo fabril de la compañía. Bordeado por un cuidado riachuelo al oeste y por un puente recientemente ampliado por el norte, el enclave se abre, por un lado, a un modesto barrio residencial y, por el otro, a la Central Avenue, una calle cuyas generosas áreas ajardinadas se deben al legendario paisajista Dan Kiley.
Desde el punto de vista del programa, el centro consiste en un conjunto de clases moduladas e independientes que atienden las necesidades de cada uno de los diferentes grupos de edad: desde los bebés hasta los niños de dos años, y desde estos a los que alcanzan la edad preescolar. Esta multiplicidad de espacios se estructura mediante una calle interior que evoca la huella del edificio y que se dispone en torno a una zona central protegida y destinada a juegos. Adoptando la forma de una cuña, este espacio central hace las veces de patio por donde penetra la luz natural, alcanzando las aulas tras atravesar una serie de ventanas interiores.










Superficie Building size
2.040 m² 22,000 ft²
Finalización Completion
2001
Cliente Owner
Cummins Engine Company
Arquitecto Architect
Carlos Jiménez Studio, Houston, Texas
CSO Architects, Indianapolis, Indiana (arquitecto local architect of record)
Equipo Project team
Carlos Jiménez Studio: Carlos Jiménez (director, autor del proyecto principal, project designer); Brian K. Burke, Brett Zamore, Alex O’Briant, Manfred Barboza, Cris Ruebush CSO Architects: James A. Schellinger, (director principal); Alan. R. Tucker (project manager); J. Terry May (arquitecto de proyecto project architect); Robert T. Kulka, Son Pham, Vic Fritz
Consultores Project consultants
CSO Engineers (estructura, instalaciones, electricidad, civil structural, mechanical, electrical, civil)
Contratista Contractor
Taylor Brothers, Columbus, Indiana
Fotos Photos
Paul Hester, Hester+Hardaway Photographers