Casa y estudio de arquitectura, Barcelona
Tonet Sunyer Jordi Badia- Tipo Casa Vivienda
- Ciudad Barcelona
- País España
- Fotografía Ferrán Freixa

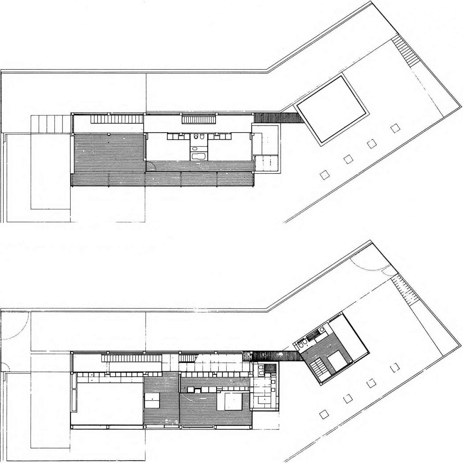
La vivienda se encuentra en el barrio alto de San Gervasio, en un solar que formaba parte anteriormente del jardín de la finca contigua. La intervención consta de dos volúmenes que siguen las alineaciones de las dos calles a las que tiene frente la parcela, siendo el mayor el correspondiente a la vivienda principal y el pequeño a un pabellón de invitados. A nivel de sótano, los dos cuerpos se convierten en un volumen único. La comunicación entre ambos se realiza a nivel de la primera planta.
Los dos cuerpos de que se compone la vivienda presentan sus fachadas abiertas al jardín y los paramentos de ladrillo al callejón de acceso.
La necesaria separación que exigen las ordenanzas respecto al límite de la parcela se ha aprovechado para crear una especie de calle interior con sendas rampas que comunican los dos frentes de calle.

Planta segunda
Planta primera

Planta baja
Planta sótano

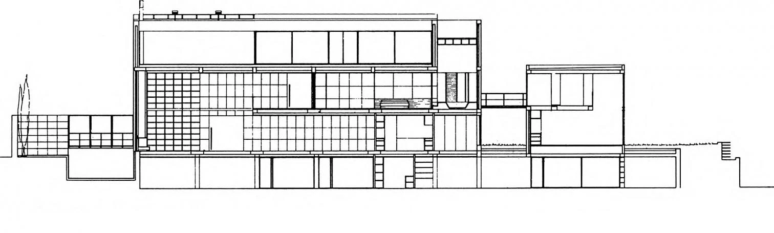
Sección longitudinal
La fachada correspondiente a las rampas se presenta como un paño casi ciego de ladrillo visto que pone de manifiesto la unidad volumétrica del proyecto y la vinculación de ambos cuerpos a nivel de sótano. La fachada al jardín, por el contrario, se configura como un plano abierto en el que predominan el cristal y la madera. Esta fachada traduce externamente la rigurosa geometría de la estructura, mostrando las cinco crujías transversales que componen el volumen y guían toda la composición.


El cuerpo cúbico del pabellón de invitados, que aloja un pequeño dúplex con entrada independiente, presenta también sus fachadas acristaladas al jardín y un paño ciego de ladrillo al espacio de acceso.
Una suerte de mueble-contenedor separa el salón de la franja longitudinal que alberga el núcleo de comunicaciones, y una pasarela de cristal lo vincula al estudio.
En el interior del cuerpo principal están netamente diferenciados los espacios de uso común y los de uso privado, y el conjunto de los espacios vivideros de los dedicados a circulación. La vivienda se organiza a partir de una franja longitudinal segregada de la planta —y en triple altura— que aloja todos los movimientos tanto horizontales como verticales de comunicación. Este volumen queda separado de la pieza principal mediante una suerte de ‘mueble contenedor’ de todos los usos domésticos (biblioteca, armario, televisión, hi-fi, buffet...) que permite obtener una planta auténticamente libre. El espacio a triple altura se utiliza como vestíbulo representativo, en donde se sitúa la escalera principal, fragmentada en dos inclinaciones para subrayar la dependencia visual y funcional entre la planta baja y la primera. El dormitorio principal y sus espacios anexos, que ocupan la primera planta, forman un espacio continuo comunicado mediante paneles correderos. El segundo tramo de la escalera conduce a los dormitorios gemelos de la segunda planta, separados por el baño.

Clientes Clients
Tonet Sunyer y Teresa Ramallal.
Arquitectos Architects
Tonet Sunyer & Jordi Badia.
Colaboradores Collaborators
Silvia Martinez (arquitecta / architect); Lluis Carreras, Susana Lloret (interioristas / interior designers).
Fotos Photos
Ferrán Freixa.