Casa para un soltero
Arquitectura-G- Tipo Casa Rehabilitación
- Fecha 2017
- Ciudad Barcelona
- País España
- Fotografía José Hevia
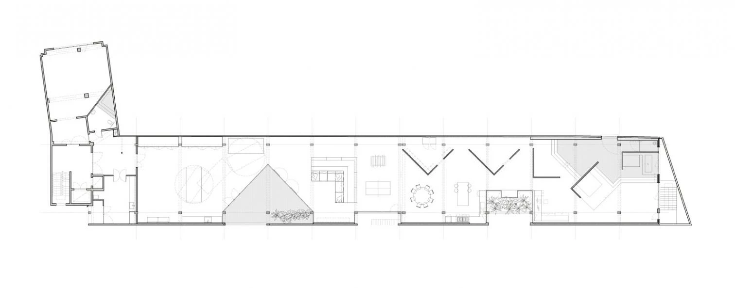
El encargo consistía en transformar un antiguo taller de corte y confección de 10x70 metros en una vivienda para una persona, al que además debía incorporarse un estudio y un taller de creación artística. Partiendo de esta premisa, la intervención tuvo dos objetivos: definir espacios de escala humana; y mantener la percepción de un único espacio. Para ello, se diseñaron una serie de elementos divisorios (tabiques en ángulos rectos y un sofá-grada) que no entran en contacto con el perímetro o el techo, para asegurar así la continuidad visual y dar pie, en paralelo, a una secuencia espacial en la que la privacidad aumenta conforme se penetra en el interior.
En cuanto a los acabados, se usó una paleta de dos tonos, en dos texturas cada uno: verde en el pavimento combinado con baldosas de 10x10 centímetros; y tableros de DM barnizado combinados con paneles de DM con surcos definidos por una retícula de 10x10 centímetros.




Obra Work:
Vivienda-estudio para un soltero House-Studio for a Single (Barcelona, Spain).
Arquitecto Architect:
Arquitectura G / Jonathan Arnabat, Jordi Ayala-Bril, Aitor Fuentes, Igor Urdampilleta.
Superficie Area:
700 m².
Presupuesto Budget:
203.000 € (290 €/m²).
Fotos Photos:
José Hevia.