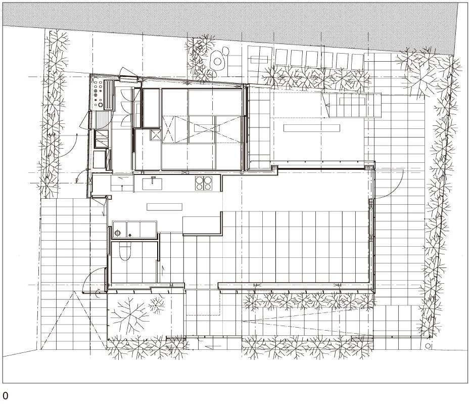
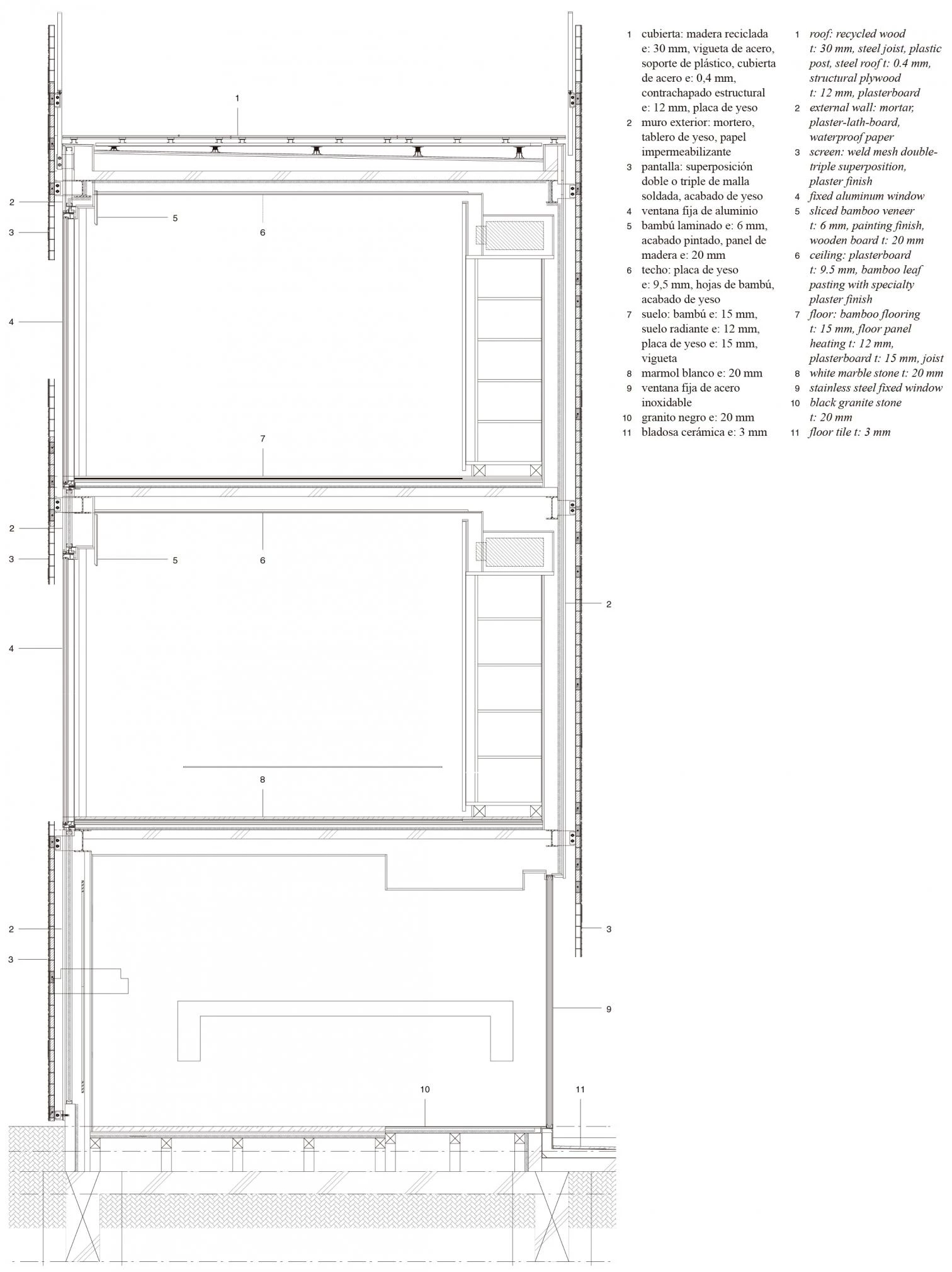
Emplazada en el interior de un parque urbano, esta casa se concibe como una caja exenta, revestida mediante una superposición de tramas metálicas que difuminan su volumetría. Después de un primer filtro de plantas de bambú, tres bandas translúcidas envuelven la fachada principal, enmarcando aberturas horizontales en los dos primeros pisos; y actuando como barandilla en la terraza sobre la cubierta. Esta retícula está compuesta por un elemento industrial estandarizado —una barra de acero de cinco centímetros de diámetro— que se suelda en diferentes direcciones y densidades conformando paneles de sesenta centímetros de ancho. Desde la distancia, la superposición de estos paneles genera una imagen delicada que remite a la transparencia del papel tradicional japonés; sin embargo, a escala cercana, la apariencia de la malla es rugosa y tosca debido a un acabado superficial de yeso y adhesivo pulverizado. La organización de la casa en planta sigue un esquema en forma de L, situando las estancias principales en el tramo más largo y los espacios complementarios en el brazo corto. En sección, las habitaciones más intimas se localizan en los dos niveles superiores y se independizan de la planta baja mediante una escalera exterior propia.















Arquitecto Architect
Kengo Kuma & Associates
Colaboradores Collaborators
Ohno Japan (estructura structural design); Kankyo Engineering (diseño de instalaciones facilities design); Izumi Okayasu Lighting Design (iluminación lighting design); Matsui Kensetsu Tokyo Branch (construcción construction); Yuwa Setsubi Kogyo (instalaciones facilities); Octo (electricidad electricity); Shuhei Hasado, Shokunin-sha (yesería especial special plasterwork)
Contratista Contractor
Matsui Kensetsu Tokyo Branch
Fotos Photos
Kengo Kuma & Associates