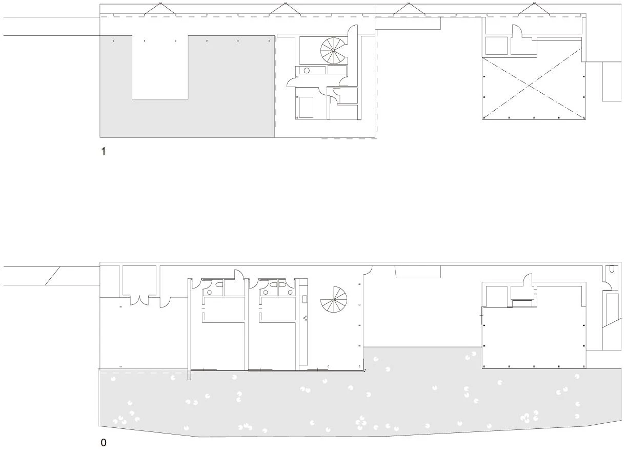
La casa lotus se sitúa junto a un pequeño río, en un paisaje arbolado al este de Japón. La idea principal del proyecto consistió en llenar de agua el espacio entre el río y la casa y sembrar flores de loto, enlazando así la vivienda y el bosque ubicado en la orilla opuesta. Las habitaciones se organizan en dos bandas alineadas en sentido longitudinal, con un patio central que relaciona la vegetación de ambos lados de la casa y separa el salón principal del resto de las estancias. Una piel permeable de piedra, concebida como un conjunto de llenos y vacíos, envuelve y unifica visualmente el conjunto. Con un material masivo como la piedra se crean muros ligeros que permiten el paso de la luz y el viento. El detalle constructivo de esta pantalla consiste en una sucesión de tirantes de acero inoxidable que sostienen placas muy finas de travertino, conformando un damero poroso. El sistema atirantado de barras planas encadenadas permite que la pantalla se adapte de forma flexible a los movimientos sísmicos y a la fuerza del viento. Como el diámetro de los tirantes es menor que el espesor de los paneles de piedra, éstos parecen flotar en el aire. Desde el interior, este muro de piedra desmaterializado filtra la luz y enmarca pequeños fragmentos del paisaje.












Arquitecto Architect
Kengo Kuma & Associates
Colaboradores Collaborators
OAK Structural Design Office (estructura structural engineers); P.T. Morimura & Associates, Ltd (instalaciones mechanical engineers)
Contratista Contractor
Matsushita Industry Co., Ltd.
Fotos Photos
Daici Ano