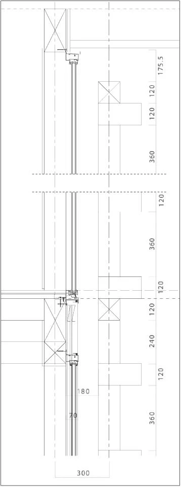
Construida a partir de listones de madera de 120x120 milímetros, esta casa destaca en el entorno suburbano de Tokio por su uniformidad. Tanto las vigas como los pilares o el cerramiento están formados por prismas del mismo tamaño en sección y diferente longitud según su función. El diseño se inspira en el sistema Chidori, un juguete japonés de siglos de antigüedad que consta de piezas de madera de 12 milímetros que se ensamblan entre sí para crear estructuras tridimensionales abstractas. En esta versión ampliada, la repetición sistemática de elementos modulares crea un ambiente sosegado y armónico acorde con la filosofía oriental.
Como si se tratara de un bosque geometrizado, la estructura deja pasar la luz entre los perfiles de madera, generando un patrón de luces y sombras que aporta una atmósfera natural al espacio doméstico. Los límites superior e inferior formados por la cubierta y el basamento se conciben como elementos mínimos que ceden el protagonismo al cuerpo principal de dos alturas. Tras la retícula ajedrezada, la fachada alterna zonas opacas y transparentes, en función del uso interior. Así, espacios como el salón, las habitaciones o la sala japonesa cuentan con paneles de vidrio de suelo a techo que permiten la iluminación natural y las vistas hacia el exterior.










Obra Work
120×120 Forest
Cliente Client
Nihon House Holdings Co.Ltd
Arquitectos Architects
Kengo Kuma & Associates; Kengo Kuma (socio encargado partner in charge); Jun Shibata, Keisuke Narisawa (equipo de proyecto project team)
Colaboradores Collaborators
Konishi Structural Engineers (ingeniería estructural, marítima y civil structural, maritime and civil engineer); Daiko Electric Co.Ltd (iluminación lighting); Nihon House Holdings Co.Ltd (executive architect)
Contratista Contractor
Nihon House Holdings Co.Ltd
Fotos Photos
Shotaro Kaide, SS Tokyo