Mixed House in Beijing
ArchStudio- Type Housing House Refurbishment
- Material Wood Brick
- Date 2022
- City Beijing
- Country China
- Photograph Jin Weiqi
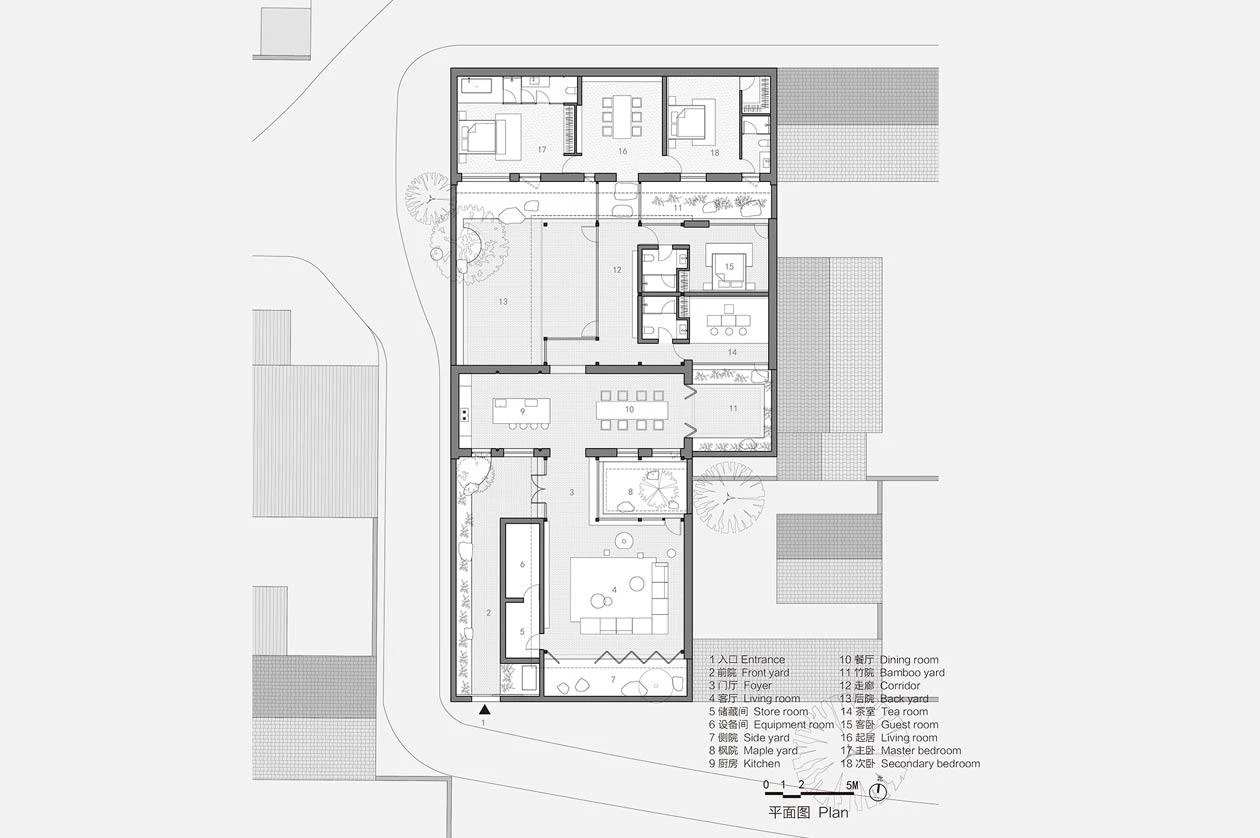
An everyday universe with echoes of Taoist cosmology and Confucian hierarchy, the Chinese courtyard-house has for thousands of years been the archetype that organizes family life. Although in the last century it had detractors who found it obsolete and incompatible with the massive growth of cities, recent years have seen many of these dwellings make a comeback, including one in the north part of Beijing which has been revitalized through a transversal volume with a curved roof that creates six courtyards of varying scale and character, where the material presence of recycled bricks contrasts with the new cedarwood frame and bamboo joineries.










































