Mixed House en Pekín
ArchStudio- Tipo Vivienda Casa Rehabilitación
- Material Madera Ladrillo
- Fecha 2022
- Ciudad Pekín
- País China
- Fotografía Jin Weiqi
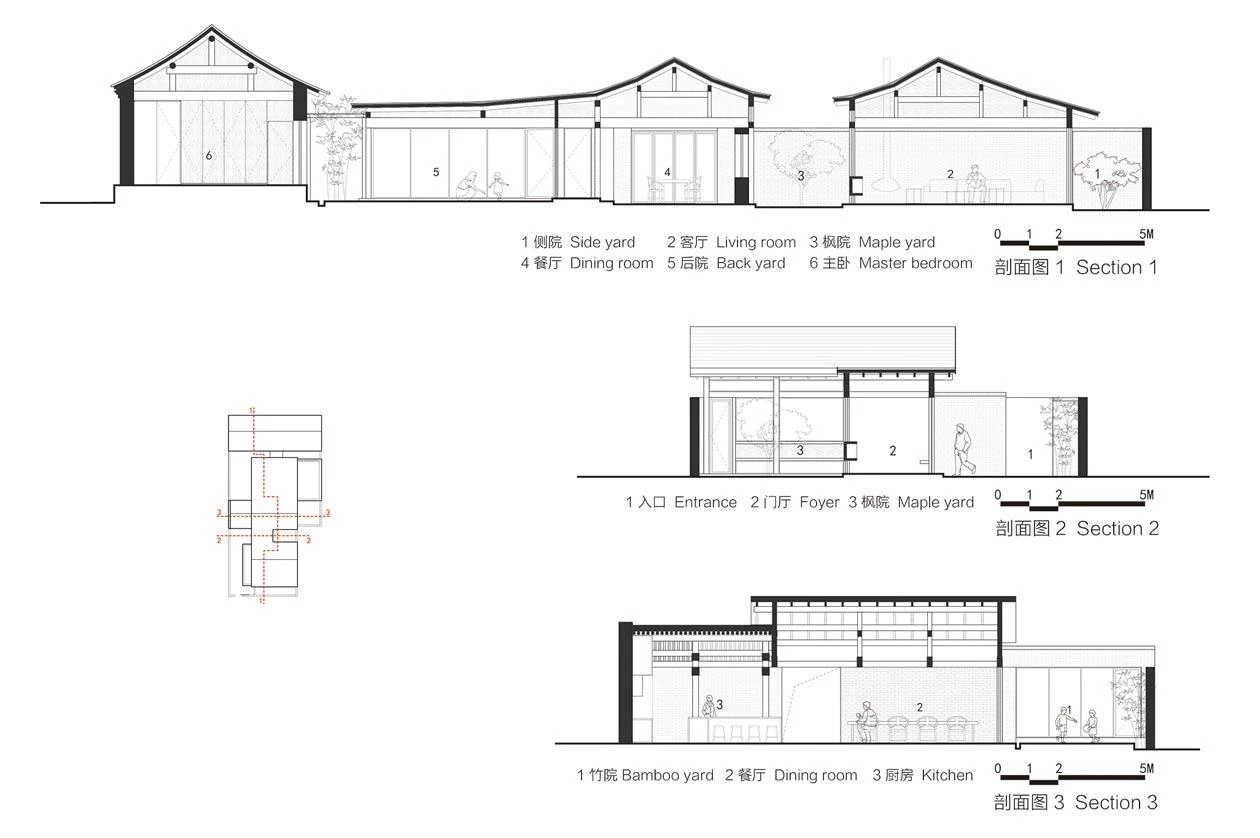
Microcosmos cotidiano en el que resuenan la cosmología taoísta y la jerarquía confuciana, la casa patio china ha sido durante milenios el arquetipo que ha organizado la vida familiar. Pese a que el pasado siglo tuvo detractores que veían en ellas un modelo obsoleto e incompatible con el crecimiento masivo de las ciudades, en los últimos años muchas de estas viviendas se han puesto en valor, como la que al norte de Pekín se ha revitalizado con un volumen transversal de cubierta curva que origina seis patios de diferente escala y carácter, donde se confronta la materialidad de los ladrillos reciclados con la nueva estructura de madera de cedro y las carpinterías de bambú.










































