Restaurante Nacrée, Sendai
Kengo Kuma- Type Culture / Leisure Restaurant
- Material Plastic
- Date 2015 - 2015
- City Sendai
- Country Japan
- Photograph Masao Nishikawa
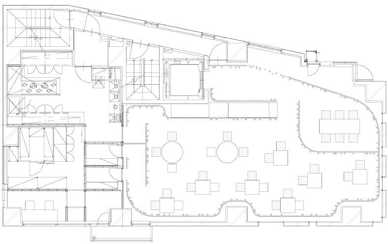
A succession of translucent acrylic cylinders resting on wooden bars surround the different spaces of the Nacrée restaurant and serve as support for bouquets of flowers that seem to float on the air.





Technical Info
ShowHide technical info
Obra Work
Restaurante Nacrée Nacrée Restaurant
Cliente Client
Minoru Ogata
Arquitectos Architects
Kengo Kuma & Associates; Kengo Kuma, Minoru Yokoo (socios encargados partners in charge); Tomonori Kusagaya —equipo de diseño design team—
Colaboradores Collaborators
Nomura Co., Ltd (arquitecto local e ingeniería local architect and engineer), Daiko Electric Co. Ltd. (iluminación lighting); Kengo Kuma & Associates (señalética signage); Tomonori Kusagaya (project manager)
Contratista Contractor
Tomonori Kusagaya
Fotos Photos
Masao Nishikawa