Community Library, Yusuhara
Kengo Kuma- Type Library Culture / Leisure
- Material Wood
- Date 2015 - 2018
- City Yusuhara
- Country Japan
- Photograph Masaki Hamada
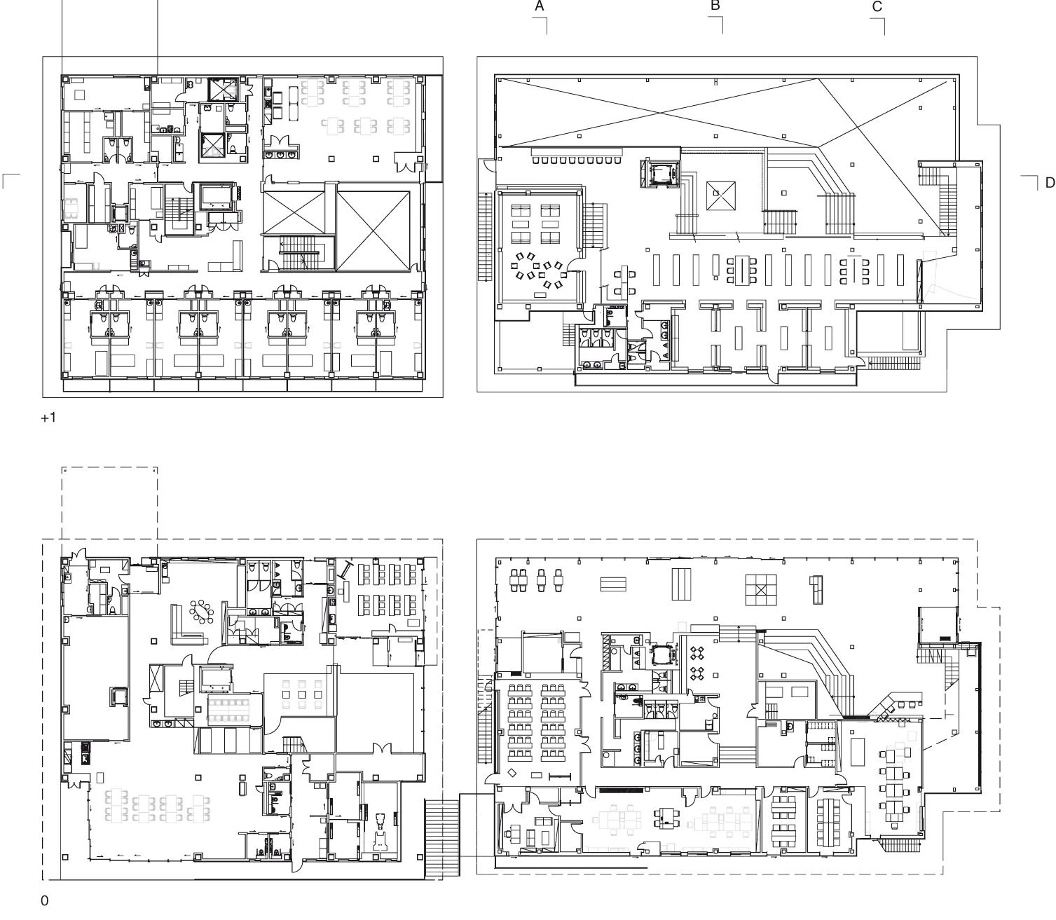
Yusuhara, a small town on the border of the mountainous province of Kochi, in the southwest of Japan, is often described as a ‘village above the clouds.’ Over the past years, the studio of Kengo Kuma has developed a compound of buildings there, such as the town hall and a community market, characterized by the creative use of sugi wood, a Japanese conifer abundant in the area, and that is considered to be the national tree. In this case, the projects include a library and a welfare center adjacent to one another, whose facades are clad with a checkered pattern of this unique type of wood.
Envisaged as a forest, where sunlight is delicately filtered through the leaves, the interior of the library is filled with a spatial pattern of sugi bars that evokes treetops. This latticework, assembled in the traditional fashion, rests on thick steel columns – also functioning as logs – and is attached above to a series of tie-beams on the roof. The floor, also wooden, is an undulating surface designed as a scenographic topography, creating a sequence of levels at different heights that turn the space into a leisure area and the ground into a raised stage for events such as lectures or concerts.













Obra Work
Yusuhara Community Library
Cliente Client
Yusuhara town
Arquitectos Architects
Kengo Kuma & Associates; Kengo Kuma (socio encargado partners in charge); Kazuhiko Miyazawa, Kuniaki Tanaka, Erika Mikami, Keisuke Narisawa, Tomoko Sasaki, Shiho Yoo, Miki Sato, Fumiki Sugawara (equipo de proyecto project team)
Colaboradores Collaborators
Jun Sato Structural Engineers (estructura structural engineer); Modulex (iluminación lighting design); Keizu Sekkei (arquitecto local local architect)
Contratista Contractor
Toda cooperation / Shimagawa sogo kensetsu JV
Superficie construida Built-up area
1,170 m²
Fotos Photos
Masaki Hamada