The Ancien Théâtre des Variétés, Brussels
First Prize- Architect Flores & Prats
- Type Culture / Leisure Theater
- Date 2020
- City Brussels
- Country Belgium
- Photograph Adrià Goula
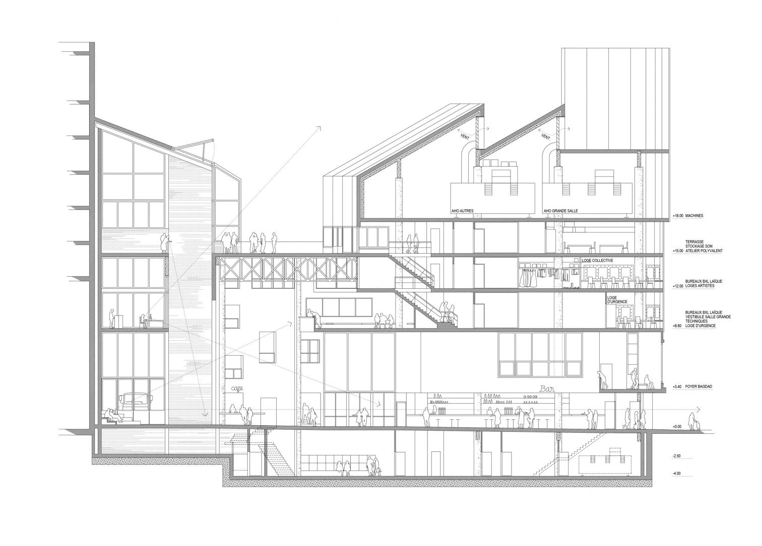
The project furthers on the research lines of the Sala Beckett project to refurbish the city’s Ancien Théâtre des Variétés and recover its role as a civic place of encounter closely linked to the history of the place, but that looks to the future.
The existing building was designed as a theater and music hall in 1937 by the rationalist architect Victor Bourgeois. It would become one of the most popular sites in the city, serving a wide range of uses until it was abandoned and left in disrepair in the 1980s.
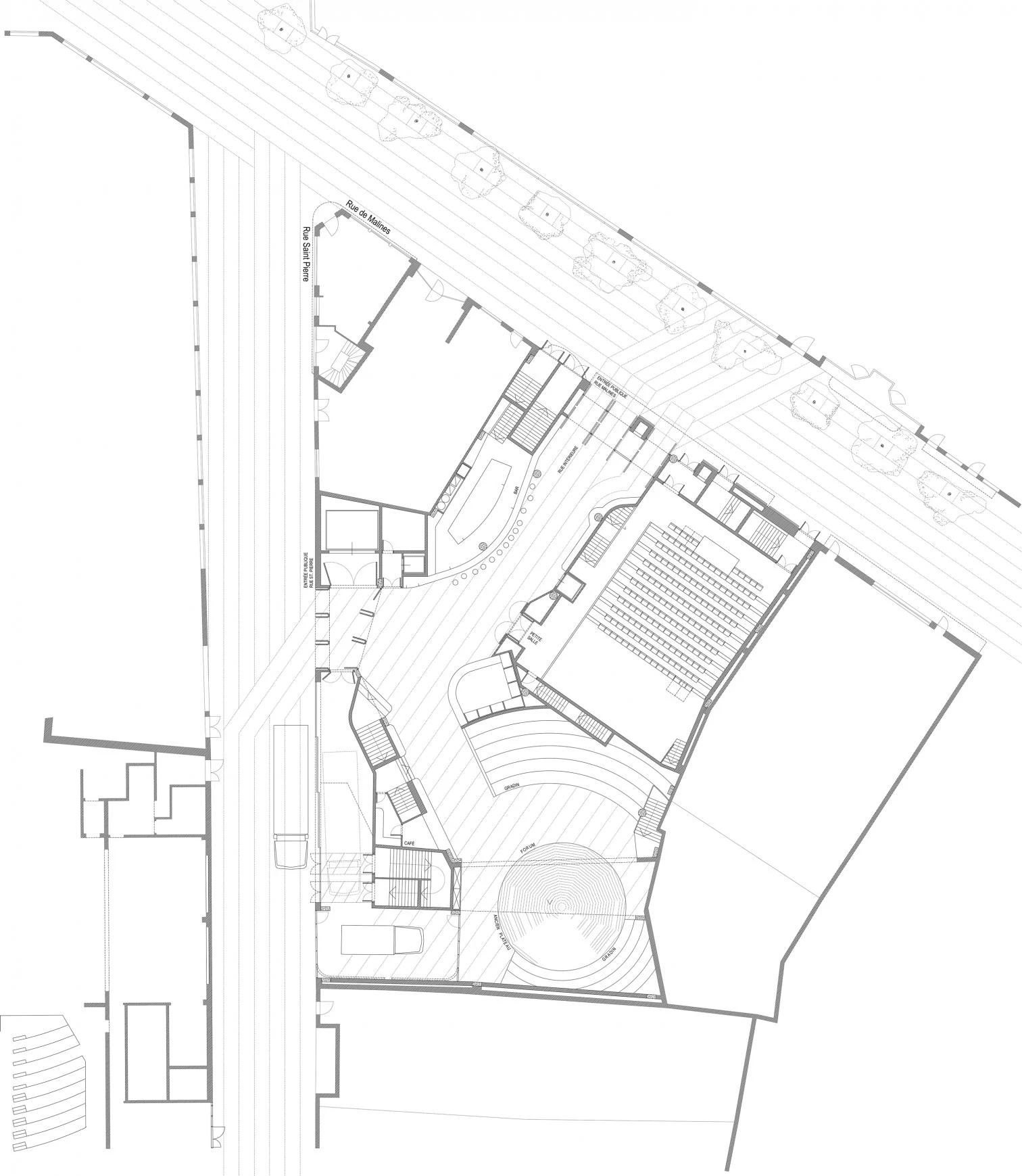
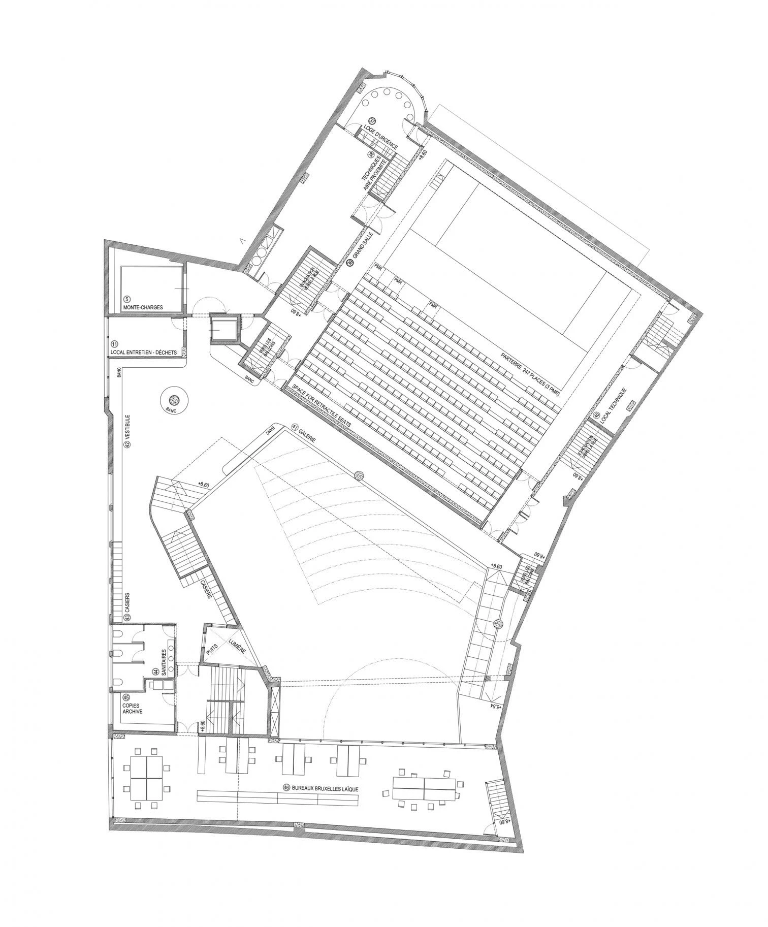
The ‘Forum,’ a large meeting place open to everyone, takes root in the old performance space, transforms the old box into a large skylight, and relocates the halls in their respective ceiling and floor, becoming the vertebrating element of the proposal.










Variétés, Brussels (Belgium)
Cliente Client
Bruxelles Laïque
Arquitectos Architects
Eva Prats y Ricardo Flores (Flores & Prats); Ouest Architecture
Equipo Team
María Rodríguez, Júlia Sorribes, Ana García, Antoine Trémège, Júlia Doz, Saray Bosch, Makoto Hayashi, Kahoru Higuchi, Jorge Galindo, Guillem Bosch, Roxane van Kregten, Raphaëlle Auguy, Joffrey About, Salomé De Vasconcelos, Samuel Laguarta, Lèa Binggeli, Floortje Van Sandick, Oscar Sangalli, Jorge Rodríguez, Iñigo Azpiazu, Kaisa Kristensen.
Colaboradores Collaborators
JZH & Partners (Estructuras Structures); Daidalos Peutz (Acústica Acoustics); Kanju (Consejero escénico Theatre Adviser); Boydens (Técnica Techniques); Bureau Bouwtechniek (Presupuesto y aparejador Budget and survey); Ekta (Señalética Signage)
Visualizaciones Renders
Play-Time
Fotografía (maqueta y estado actual) Photographs (as-found state and models)
Adrià Goula