Office Building for Shihlien Group, Huaiyin City
Álvaro Siza- Type Commercial / Office Headquarters / office
- Date 2011
- City Huaiyin City
- Country China
- Photograph Fernando Guerra FG+SG
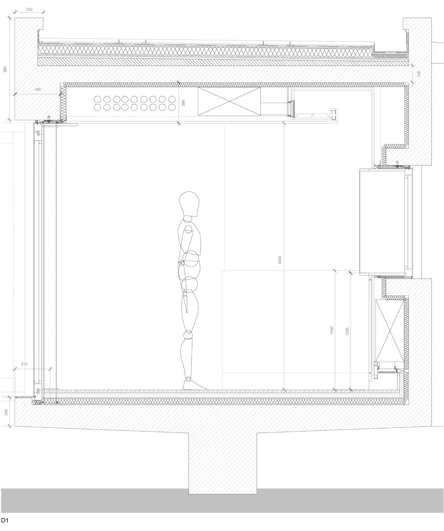
Like a coiled up, sleeping dragon, the new headquarters of the chemical industrial group Shihlien rise in the center of an artificial lake in the city of Huaiyin, in the Chinese province of Jiangsu. The idea of placing the building over the lake was present in the master plan for the complex, because the factory needs a significant water reserve to guarantee constant production. The building, with offices organized in two levels, consists of an elongated strip that curls like a horseshoe and is connected to the rest of the areas by two perpendicular footbridges that extend the urban pattern of the industrial complex. With a marked sculptural character, the curved lines delimiting the main volume look towards opposite directions, generating circulation spaces that flow throughout the perimeter and perspectives open to the industrial landscape.
Conceptually speaking, the building floats over the water, but constructively the structure rests at the bottom of the pond, eight meters deep. The apparent lightness conveyed by the lake’s reflection is intensified by the lower, cantilevered platform, revealing a space between the water and the building.


















Obra Work
The building on the water - Shihlien Chemical
Cliente Client
Por-Shih Lin, Chairman, Shihlien Chemical Industrial Jiangsu Co.
Arquitectos Architects
Álvaro Siza, Carlos Castanheira
Colaboradores Collaborators
Pedro Carvalho (proyecto básico preliminary project), Luís Reis (proyecto básico y proyecto de ejecución preliminary project and execution project); Diana Vasconcelos, Susana Oliveira, Elisabete Queirós, Orlando Sousa, Rita Ferreira, João Figueiredo, Caitriona, Anand Sonecha; Francesco Sechi, João Figueiredo, Pedro Afonso, José Soares (infografías renderings)
Consultores Consultants
Xue Xue Institute, Xue Xue Foundation (consultoría de integración creativa creative integration consultant); Stephen Wang & Richard Wang, Chiou-Hui Lin (director de proyecto y jefe de obra project management and construction supervision); United Architects & Engineers Co. (permiso local local permit); Shanghai Qingya Mechanical and Electrical Engineering Co. (climatización, electricidad, fontanería, instalaciones de telecomunicación y seguridad HVAC, electricity, plumbing, telecommunications and security installation); RFR Shanghai (supervisión de estructura structural review); Geberit China (drenaje de agua water drainage); HDP: Paulo Fidalgo (estructura structure); GET: Raul Bessa (ingeniería mecánica mechanical engineering); GPIC: Alexandre Martins (iluminación lighting)
Contratista Contractor
Zhejiang Urban Construction Group
Fotos Photos
Fernando Guerra / FG+SG