Oficinas de Shihlien Group, Huaiyin City
Álvaro Siza- Tipo Comercial / Oficina Sede / oficina
- Fecha 2011
- Ciudad Huaiyin City
- País China
- Fotografía Fernando Guerra FG+SG
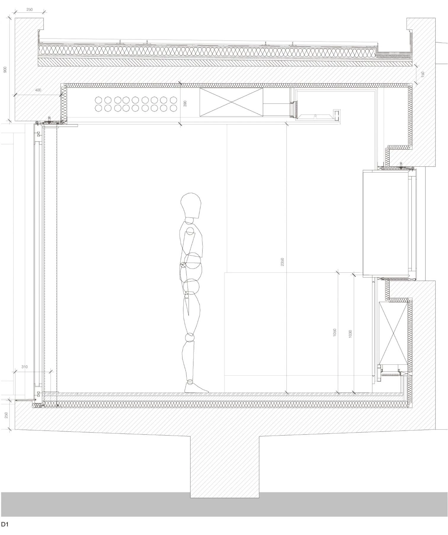
Como un dragón enroscado y dormido, el edificio de oficinas de la compañía de industrias químicas Shihlien Group emerge en el centro de un lago artificial en la ciudad de Huaiyin, en la provincia china de Jiangsu. La idea de situar la construcción sobre el agua estaba implícita en el plan director del complejo, ya que la fábrica necesita una gran reserva para asegurar su producción constante. El edificio, que alberga las oficinas distribuidas en dos plantas, está formado por una pastilla longitudinal que se dobla en forma de herradura y se conecta con el resto de los equipamientos a través de dos pasarelas perpendiculares que continúan la trama urbana del complejo fabril. Con un fuerte carácter escultórico, las líneas curvas que delimitan el volumen principal fugan en direcciones opuestas, generando espacios de circulación que fluyen a lo largo del perímetro y perspectivas abiertas hacia el paisaje industrial.
Conceptualmente el proyecto flota sobre el agua, pero constructivamente la estructura se apoya en el fondo del estanque a ocho metros de profundidad. La sensación de levedad que transmite el reflejo en el lago se intensifica gracias a que los soportes se ocultan en una posición retranqueada y la plataforma inferior avanza en voladizo, de manera que se percibe un vacío entre el agua y el edificio.


















Obra Work
The building on the water - Shihlien Chemical
Cliente Client
Por-Shih Lin, Chairman, Shihlien Chemical Industrial Jiangsu Co.
Arquitectos Architects
Álvaro Siza, Carlos Castanheira
Colaboradores Collaborators
Pedro Carvalho (proyecto básico preliminary project), Luís Reis (proyecto básico y proyecto de ejecución preliminary project and execution project); Diana Vasconcelos, Susana Oliveira, Elisabete Queirós, Orlando Sousa, Rita Ferreira, João Figueiredo, Caitriona, Anand Sonecha; Francesco Sechi, João Figueiredo, Pedro Afonso, José Soares (infografías renderings)
Consultores Consultants
Xue Xue Institute, Xue Xue Foundation (consultoría de integración creativa creative integration consultant); Stephen Wang & Richard Wang, Chiou-Hui Lin (director de proyecto y jefe de obra project management and construction supervision); United Architects & Engineers Co. (permiso local local permit); Shanghai Qingya Mechanical and Electrical Engineering Co. (climatización, electricidad, fontanería, instalaciones de telecomunicación y seguridad HVAC, electricity, plumbing, telecommunications and security installation); RFR Shanghai (supervisión de estructura structural review); Geberit China (drenaje de agua water drainage); HDP: Paulo Fidalgo (estructura structure); GET: Raul Bessa (ingeniería mecánica mechanical engineering); GPIC: Alexandre Martins (iluminación lighting)
Contratista Contractor
Zhejiang Urban Construction Group
Fotos Photos
Fernando Guerra / FG+SG