New Museum of Contemporary Art, New York
SANAA- Type Culture / Leisure Museum
- Date 2002 - 2007
- City New York
- Country United States
- Photograph Wade Zimmerman Iwan Baan Christian Richters Dean Kaufman
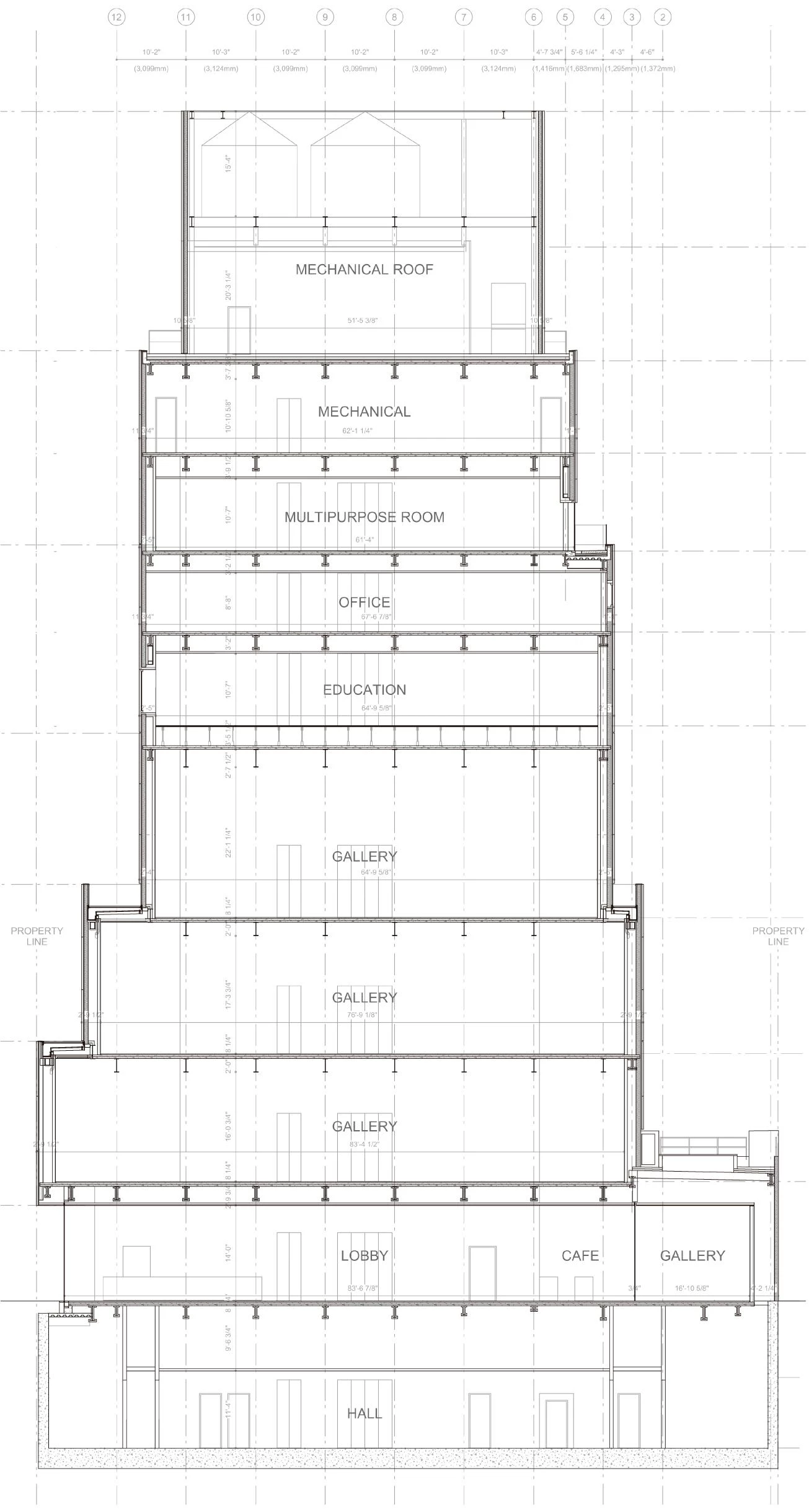
Drawn up as a series of boxes of different sizes stacked and placed off-axis with respect to one another, the building for the New Museum grows vertically to fit the museum program required into a small site. Each volume has a different function and all of them are connected by a vertical communication core of elevators and stairs. The off-setting of the boxes generates terraces and skylights, bringing natural light into the exhibition halls.
The steel perimeter structure is surrounded by a white aluminum enclosure, protected by a second skin of perforated panels of the same material, which are connected by subtle lap joints, appearing as a continuous surface with a milky sheen. At street level, the facade is transformed into a totally transparent glass enclosure, showing the activities that take place inside the museum. The ground floor includes a loading and unloading area for artworks, the lobby, a small café and a shop. The three subsequent levels house exhibition rooms, while the offices and educational areas are on the fourth and fifth floors. From the cafeteria placed on the top floor one can enjoy views of the great New York skyline.





















Cliente Client
New Museum, Zubatkin
Arquitectos Architects
SANAA. Kazuyo Sejima, Ryue Nishizawa
Colaboradores Collaborators
F. Idenburg, T. Oki, J. Elding, K. Yoshida, H. Katagiri, J. Haddad, E. Hidaka, T. Kondo, F. Haakma-Wagenaar, T. Nakatsubo; Gensler (arquitectos asociados associate architects): M. Burke-Vigeland, W. Rice, K. Pedrazzi, K. Gregerson, J. Chow, W. Rohde, S. Moon, C. Duisberg, E. Papazian
Consultores Consultants
Sciame (dirección de obra construction management); Plaza Construction Corporation (gestión de proyecto project management); Guy Nordenson (estructura structural engineers); Arup (instalaciones mechanical/HVAC engineers); Simpson Gumperts & Heger (fachada facade); Jenkins & Huntington (transporte vertical vertical transportation)
Fotos Photos
Wade Zimmerman, Dean Kaufman, Iwan Baan, Christian Richters