Nuevo Museo de Arte Contemporáneo, Nueva York
SANAA- Tipo Cultura / Ocio Museo
- Fecha 2002 - 2007
- Ciudad Nueva York
- País Estados Unidos
- Fotografía Wade Zimmerman Iwan Baan Christian Richters Dean Kaufman
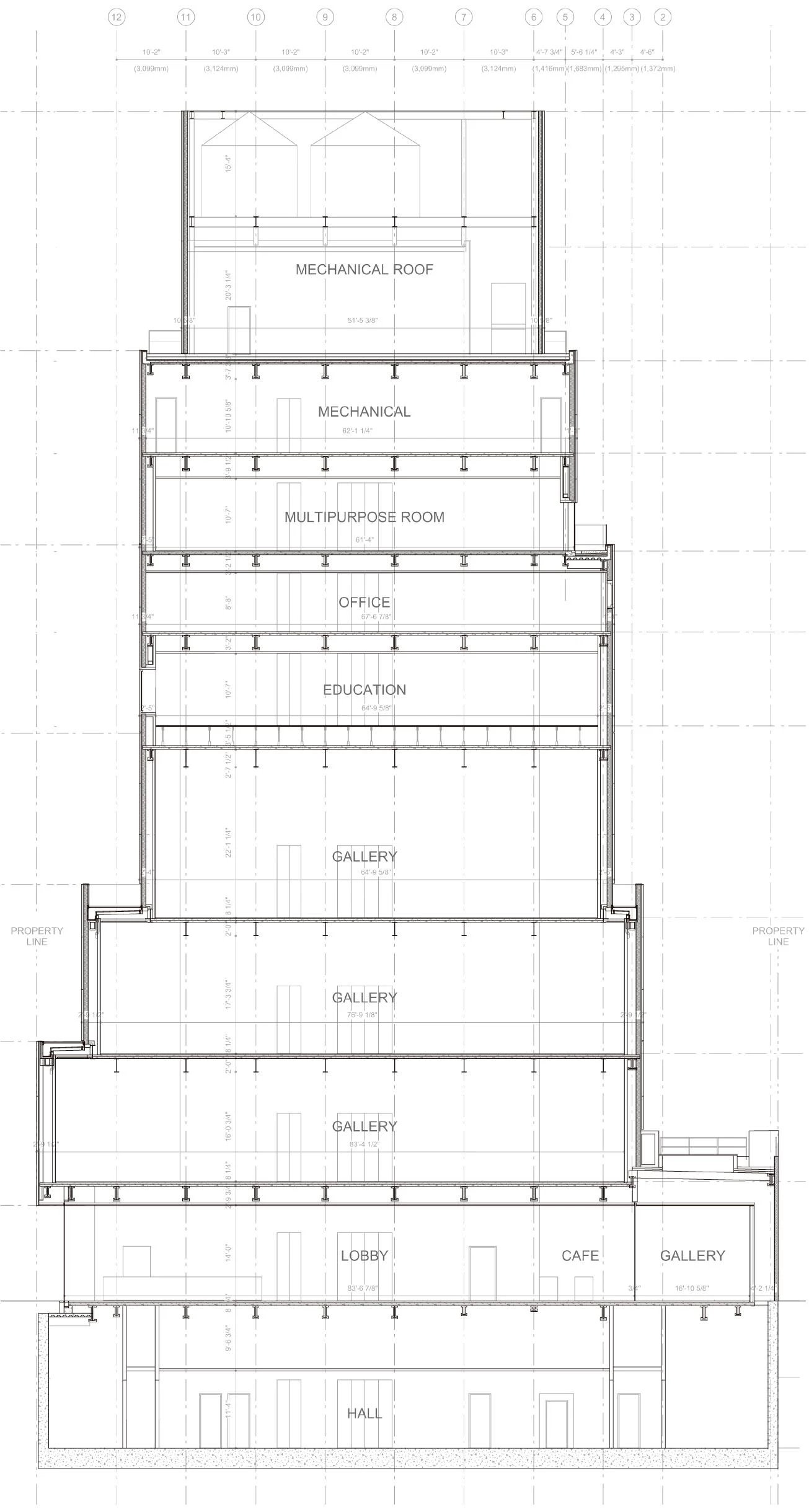
Concebido como un conjunto de cajas de distinta dimensión apiladas y desplazadas entre sí, el edificio del New Museum se desarrolla en altura para albergar todo el programa sobre una parcela de ajustadas dimensiones. Cada volumen aloja una función diferente y todos ellos se encuentran enlazados a través de un núcleo de comunicación vertical que contiene los ascensores y las escaleras. Los desplazamientos de las cajas sobre el eje permiten dotar a los espacios de terrazas y lucernarios que introducen iluminación cenital en las salas de exposición.
La estructura perimetral de acero se rodea de una envolvente de aluminio de color blanco, protegida por una segunda piel de paneles perforados del mismo material, que se unen mediante sutiles juntas de solape, presentándose como una superficie continua de brillo lechoso. A nivel de calle, la fachada se transforma en un cerramiento de vidrio totalmente transparente para mostrar la actividad interior. La planta baja alberga una zona visible de carga y descarga para obras de arte, el vestíbulo de acceso, un pequeño café y una tienda. Los tres niveles sucesivos alojan las salas de exposición, mientras que las oficinas y los equipamientos educativos se distribuyen entre la cuarta y la quinta planta. En el último nivel se sitúa una cafetería abierta al skyline neoyorquino.





















Cliente Client
New Museum, Zubatkin
Arquitectos Architects
SANAA. Kazuyo Sejima, Ryue Nishizawa
Colaboradores Collaborators
F. Idenburg, T. Oki, J. Elding, K. Yoshida, H. Katagiri, J. Haddad, E. Hidaka, T. Kondo, F. Haakma-Wagenaar, T. Nakatsubo; Gensler (arquitectos asociados associate architects): M. Burke-Vigeland, W. Rice, K. Pedrazzi, K. Gregerson, J. Chow, W. Rohde, S. Moon, C. Duisberg, E. Papazian
Consultores Consultants
Sciame (dirección de obra construction management); Plaza Construction Corporation (gestión de proyecto project management); Guy Nordenson (estructura structural engineers); Arup (instalaciones mechanical/HVAC engineers); Simpson Gumperts & Heger (fachada facade); Jenkins & Huntington (transporte vertical vertical transportation)
Fotos Photos
Wade Zimmerman, Dean Kaufman, Iwan Baan, Christian Richters