Nieto Sobejano to enlarge the Sorolla Museum in Madrid
Nieto Sobejano Arquitectos- Type Museum Culture / Leisure Refurbishment
- City Madrid
- Country Spain
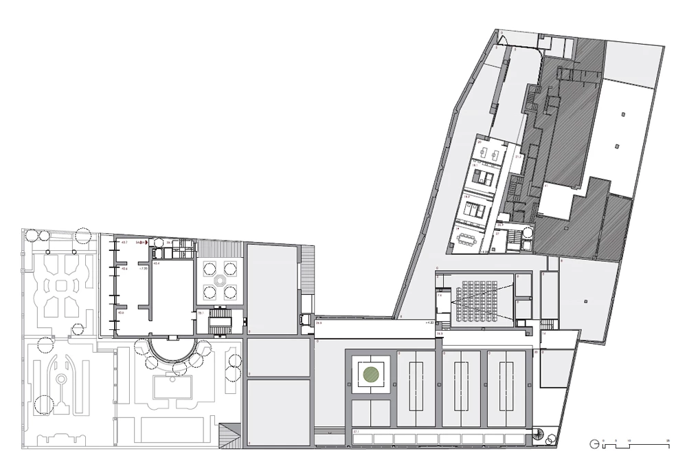
The Madrid architectural office of Fuensanta Nieto and Enrique Sobejano will be renovating and expanding the house-museum of Joaquín Sorolla (Valencia, 1863 – Cercedilla, 1923), known as “the painter of light.” The intervention on the old residence on Calle Martínez Campos seeks to address the building’s functional deficiencies while creating the necessary new spaces, such as a hall for temporary exhibitions, an auditorium, and a restoration workshop, besides a loading dock and storage for paintings. With this in mind, the museum has acquired properties adjacent to it, making for an additional 1,500 square meters.
It was in 1911 that Sorolla began to use the house – planned with the architect Enrique Repullés y Vargas, author of notable buildings including the Madrid Stock Exchange –, with its large toplit studios, Andalusian courtyard, and garden. Nieto Sobejano’s project evokes these three elements: the studio (multiplied in a sequence of spaces parallel to the existing ones and intended for temporary shows), the courtyard (which connects the entry to the extension), and the garden (on the roof).
The restoration respects the house as it is while providing a new staircase, an elevator, a rearrangement of the reception zone, a café, a shop, and mechanical installations and a ramp for disabled visitors. With a new entrance on Calle Zurbano, the Sorolla house-museum will be connected to the annex by stairs and an elevator rising from the semi-basement level.







