Museum of Modern Literature, Marbach
David Chipperfield Architects- Type Culture / Leisure Museum
- Date 2002 - 2006
- City Marbach am Neckar
- Country Germany
- Photograph Christian Richters Duccio Malagamba
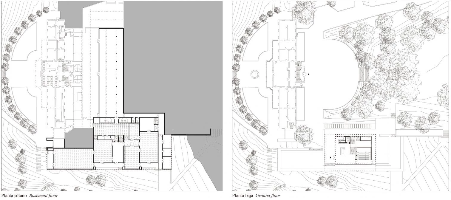
The Museum of Modern Literature (LiMo) is located in Marbach’s scenic park, on top of a rock plateau overlooking the valley of the Neckar River. Located 25 km north of Stuttgart, Marbach, as the birthplace of Friedrich Schiller, already held the National Schiller Museum, built in 1903, and the Archive for German Literature, built in the 1970s. Displaying artefacts from the extensive 20th century collection of the Archive for German Literature, notably the original manuscripts of Franz Kafka’s The Trial and Alfred Döblin’s Berlin Alexanderplatz, the museum also provides panoramic views across and over the distant landscape.
Embedded in the topography, the museum reveals different elevations depending on the viewpoint. By utilising the steep slope of the site, terraces allow for the creation of very different characters, an intimate, shaded entrance on the brow of the hill facing the National Schiller Museum with its forecourt and park, and a grander, more open series of tiered spaces facing the valley below. A pavilion-like volume is located on the highest terrace, providing the entrance to the museum. The interiors of the museum reveal themselves as one descends down through the loggia, foyer, and staircase spaces, preparing the visitor for the dark timber-panelled exhibition galleries. Designed to house the 1,300 objects of the permanent collection, these spaces are illuminated only by artificial light due to the fragility and sensitivity of the works on display. At the same time, each of these environmentally controlled spaces borders onto a naturally lit gallery, balancing views inward to the composed, internalized world of texts and manuscripts with the green and scenic valley on the other side of the glass.
A clearly defined material concept using solid materials (fair-faced concrete, sandblasted reconstituted stone with limestone aggregate, limestone, wood, felt, and glass) gives the calm, rational architectural language a sensuous physical presence. Floors are made of limestone slabs and the walls and columns are of fair-faced concrete – enriched with shiny limestone aggregate –; and the exhibition rooms and doors are panelled with dark Brazilian ipe timber. Documents and objects from the collection are displayed in glass showcases, placed in the centre of the space, like boxes of light.
The Museum of Modern Literature was awarded the RIBA Stirling Prize 2007.













Cliente Client
Deutsches Literaturarchiv Marbach: Dr. Heike Gfrereis, Dr. Roland Kamzelak, Prof. Dr. Ulrich Raulff
Arquitectos Architects
David Chipperfield Architects
Colaboradores Collaborators
Martina Betzold, David Chipperfield, Laura Fogarasi, Andrea Hartmann, Christian Helfrich, Hannah Jonas, Barbara Koller, Harald Müller, Franziska Rusch, Tobias Stiller, Vincent Taupitz, Alexander Schwarz, Mirjam von Busch
Consultores Consultants
Wenzel + Wenzel (seguimiento de obra site supervision); Drees & Sommer Projektmanagement und Bautechnische Beratung (gestión de proyecto project management); Ingenieurgruppe Bauen (estructura structural engineer); Jaeger, Mornhinweg + Partner Ingenieurgesellschaft; Ibb Burrer + Deuring Ingenieurbüro GmbH (instalaciones services engineer)
Fotos Photos
Christian Richters, Duccio Malagamba