Anchorage Museum, Anchorage
David Chipperfield Architects- Type Culture / Leisure Museum
- City Alaska
- Country United States
- Photograph Christian Richters
Located in the heart of Alaska’s largest city, the Anchorage Museum at Rasmuson Center began as a public-private partnership to celebrate the 100th anniversary of the purchase of Alaska from Russia. The Museum opened its doors in 1968 with an exhibition of 60 borrowed Alaska paintings, and a collection of 2,500 historic and ethnographic objects loaned from the local Historical Society. In the 1980s, with the flood of revenues from oil development, the state funded community-wide building projects. ‘Project 80s’ led to a major 13,000 square meters expansion of the Museum in 1986. Funds were raised to complete the Alaska Gallery, a showcase of the Museum’s permanent historic and ethnographic collection. The permanent collection now numbers 17,500 objects plus an education collection of roughly 2,000 artifacts and 350,000 photographs.
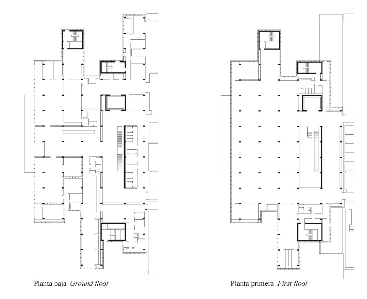
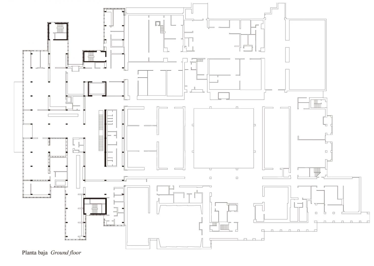
This new 8,000-square-meter expansion also creates a new entrance to the building. The organization of the new volume is based on five linear volumes of varying length and height arranged along the western face of the existing building. This arrangement forms a new facade and entrance facing downtown Anchorage. Furthermore, the Common created at the front of the museum provides a new public space for downtown Anchorage.
The glass facade of the four-storey building is fritted with a striped mirror pattern, providing views out of and into the museum and reflecting the sky and the spectacular mountainous landscape all around the city extension. These reflecting bands do not block out the views from the exterior, re-orienting the visitor to the city and its extraordinary natural setting beyond. Sun protection systems, such as roll-up curtains, are placed between the two glass sheets. The interior design concept exposes the concrete structure as part of the character of the internal spaces. Dividing walls between columns establish a series of rooms for the exhibitions within the new building. The main public spaces – the entrance lobby, circulation atrium, and exhibition spaces – use different colors and materials to give each area its own identity.
The Anchorage Museum Expansion will also accommodate the Arctic Studies Center, exhibiting 600 Alaska Native ethnographic artefacts from the Smithsonian Institution’s National Museum of Natural History and the National Museum of the American Indian.












Cliente Client
Anchorage Museum at Rasmuson Center
Arquitectos Architects
David Chipperfield Architects; Kumin Associates Incorporated (arquitecto local contact architect)
Colaboradores Collaborators
Franz Borho, Pedro Castelo, Martin Ebert, Isabelle Heide, Victoria Jessen-Pike, Melissa Johnston, Christian Junge, Peter Kleine, Mattias Kunz, Marina Mitchell-Heggs, Andrew Philips, Billy Prendergast, Julian Sattler, Dominik Schwarzer, Rene Wolter; Kumin Associates Incorporated: Chip Banister, Daphne Brown, Mike Griffith, Marina Komkov, Jon Kumin, Dana Nunn, Erica White, Ross Timm, Petra Wilm
Consultores Consultants
Magnusson Klemencic Associates: Greg Briggs, Jay Taylor; BBFM Engineers Incorporated: Anne Anderson, Dennis Berry, Colin Maynard, Samantha Spindler (estructuras structure); Affiliated Engineers NW Incorporated: Dean Eriksen, Geoffrey McMahon; RSA Engineering Incorporated: David Oliver, Warren Williams, Channing Lillo, Mack Bergstedt (instalaciones services engineering); Davis Langdon: Martin Gordon, Jenny Young (aparejador quantity surveyor); W. J. Higgins and Associates Incorporated: Wes Higgins, Michael Cleere, John Griesmer (fachada facade consultant); George Sexton Associates: Joe Geitner, Brian McIntyre, George Sexton (iluminación lighting); Ralph Appelbaum Associates: Ralph Appelbaum, Anne Bernard, Miranda Smith, Tim Ventimiglia, Jennifer Whitburn (diseño de la exposición exhibition designers); Charles Anderson Landscape Architects: Charles Anderson, Michelle Arab, Karen Janosky; Earthscape: Elise Huggins (paisajismo landscaping)
Contratista Contractor
Alcan General Incorporated: Terry Fike, Steve Jelinek
Fotos Photos
Christian Richters