One River North building in Denver
MAD Architects- Type Housing
- Date 2024
- City Denver (Colorado)
- Country United States
- Photograph Iwan Baan Parrish Ruiz De Velasco
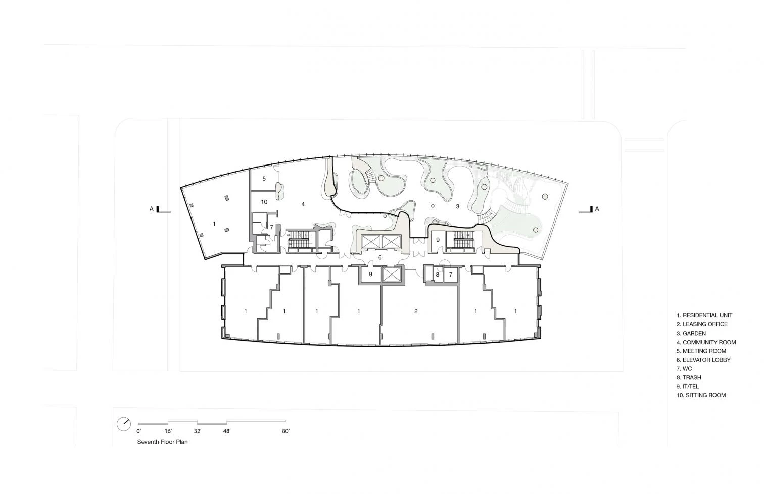
A crack carves through the glass facade of One River North, a new mixed-use development near the center of the River North Art District of Denver, Colorado. The building contains 187 rental apartments on fifteen stories, plus retail spaces at the bottom.
From the sixth to the ninth floor it features amenities for leisure and respite, with sports facilities. This zone draws inspiration from natural erosion, striking a contrast with the clean geometrical lines of the building’s massing. Merging the boundaries between indoors and outdoors, the landscaped terraces go all the way up to the roof, with vegetation that changes color through the four seasons. At the top are a swimming pool and a spa, with breathtaking views of the Rocky Mountains and the city of Denver.



















