Edificio One River North en Denver
MAD Architects- Tipo Vivienda
- Fecha 2024
- Ciudad Denver (Colorado)
- País Estados Unidos
- Fotografía Iwan Baan Parrish Ruiz De Velasco
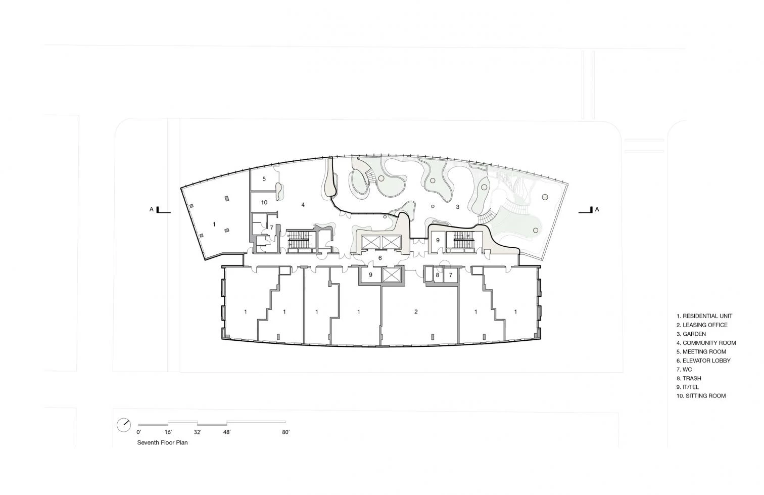
Una grieta atraviesa la fachada vidriada de One River North, un nuevo complejo de uso mixto situado cerca del centro del distrito artístico River North de Denver, en el estado de Colorado. El edificio cuenta con 187 viviendas de alquiler, repartidas en quince plantas, junto con un espacio comercial en el nivel inferior.
Desde la sexta a la novena planta, una zona de ocio y descanso, con instalaciones deportivas, evoca un paisaje erosionado, que contrasta con el resto de las líneas geométricas del edificio. Fusionando los límites entre interiores y exteriores, las terrazas ajardinadas ascienden hasta la azotea, con vegetación que cambia de color con las cuatro estaciones. El conjunto está coronado por una piscina y un spa, ofreciendo vistas de las montañas Rocosas y la ciudad de Denver.



















