Collège Amadou Hampaté Bâ in Niamey
Article 25- Type Education School and High-School
- Date 2022
- City Niamey
- Country Niger
- Photograph Toby Pear Souleymane Ag Anara
Niger’s education system faces huge challenges. The African country currently has the highest birth rate in the world (seven children born to every woman on average), and simultaneously struggles to keep young people in the classroom, particularly beyond primary schooling.
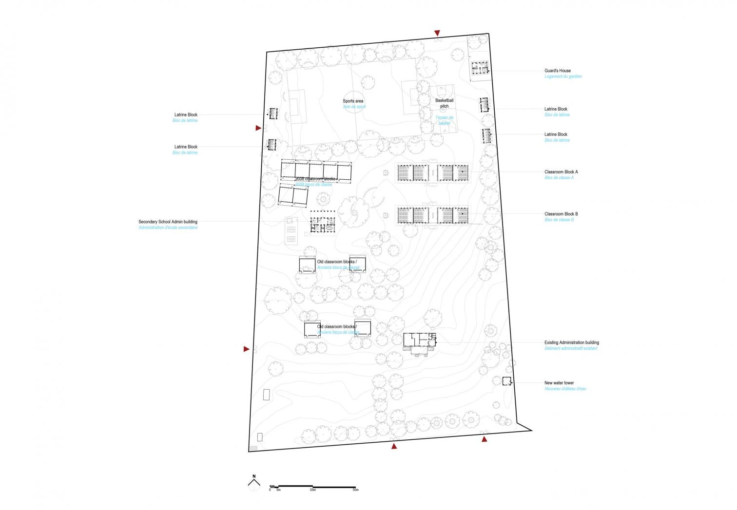
This project of the humanitarian architectural NGO that calls itself Article 25 has undertaken the mission of renovating and enlarging Collège Hampaté Bâ in Niamey, the country’s capital. The project includes five new classroom blocks, new administrative facilities, an assembly hall, and a library, not to mention upgrades to water and electrical services to improve the school’s resilience to intermittent municipal supply.
The main construction material is laterite. Cheap, locally available, and with low embodied carbon, it is an underutilized resource in Niger. Laterite provides thermal mass to slow down the release of heat during the day, and is a more breathable material than the cement blocks that are ubiquitous in modern construction in Niamey. This materials is dug by hand from the ground in a quarry 10 kilometers away, and hardens on contact with air. During construction, the local masons were trained in how to use laterite, with the intention that the skills acquired be disseminated in further projects across the region. Article 25 has also initiated an on-site training program for young girls interested in construction.
The buildings harness passive design principles to mitigate high temperaturas and create comfortable spaces for teaching and learning. The classrooms present a double roof system. The existing roof cavity between the vaults of rammed-earth brick and the flying metal roof above lets air circulate and prevents the sun’s heat from radiating into the classrooms.
Collège Amadou Hampaté Bâ has won a 2024 RIBA International Award for Excellence.























Obra Work
Escuela Amadou Hampaté Bâ, Niamey (Níger)
Collège Amadou Hampaté Bâ, Niamey (Niger)
Arquitectos Architects
Article 25
Consultores Consultants
Michael Hadi and Associates (estructura structure); Max Fordham (instalaciones MEP services)
Contratista Contractor
Afrique Univers
Fotos Photos
Toby Pear