Escuela Amadou Hampaté Bâ en Niamey
Article 25- Tipo Educación Colegio e instituto
- Fecha 2022
- Ciudad Niamey
- País Níger
- Fotografía Toby Pear Souleymane Ag Anara
El sistema educativo de Níger se enfrenta a enormes retos. El país africano tiene en la actualidad la tasa de natalidad más alta del mundo (una media de siete niños por mujer) y, al mismo tiempo, lucha por mantener a los jóvenes en el sistema educativo, sobre todo después de la enseñanza primaria.
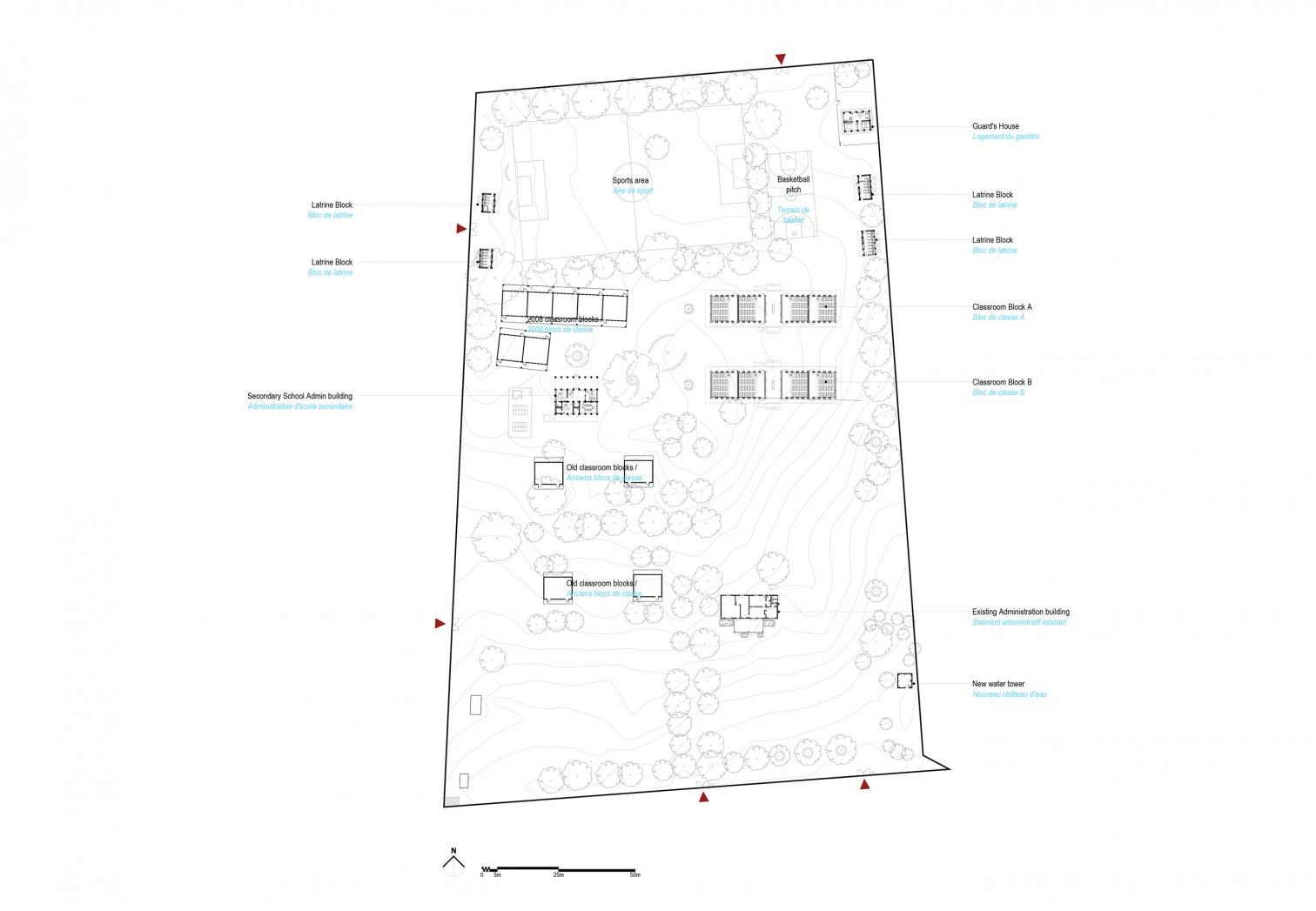
La intervención de la ONG de arquitectura Article 25 abarca la renovación y la ampliación de la escuela Hampaté Bâ situada en Niamey, la capital nigerina. El proyecto incluye cinco nuevos bloques con aulas, oficinas, un salón de actos y una biblioteca, así como la mejora de las instalaciones de agua y electricidad, para afrontar la intermitencia del suministro municipal.
El principal material de construcción es la laterita. Barato, disponible localmente y con bajo contenido en carbono, representa un recurso infrautilizado en Níger. La laterita proporciona masa térmica para ralentizar la liberación de calor durante el día y es un material más transpirable que los bloques de cemento, omnipresentes en la construcción moderna de Niamey. Este material se extrae a mano en una cantera situada a 10 km de la capital y se endurece en contacto con el aire. Durante la construcción, los albañiles locales han recibido formación sobre la utilización de la laterita, con la intención de que los conocimientos adquiridos se difundan en otros proyectos de la región. Artículo 25 también inició un programa de capacitación in situ de mujeres en técnicas de construcción.
Los edificios utilizan principios de diseño pasivo para mitigar las altas temperaturas y crear espacios confortables. Las aulas presentan un sistema de doble cubierta. La cavidad existente entre las bóvedas de tierra compactada y los tejados metálicos inclinados permiten la circulación del aire e impiden que el calor del sol irradie a las aulas.
El Collège Amadou Hampaté Bâ ha sido galardonado con el Premio Internacional RIBA a la Excelencia 2024.























Obra Work
Escuela Amadou Hampaté Bâ, Niamey (Níger)
Collège Amadou Hampaté Bâ, Niamey (Niger)
Arquitectos Architects
Article 25
Consultores Consultants
Michael Hadi and Associates (estructura structure); Max Fordham (instalaciones MEP services)
Contratista Contractor
Afrique Univers
Fotos Photos
Toby Pear