Casa Santos in Baja California Sur
Héctor Coss Arquitectos María Alicia Gómez Giovanni Ocampo- Type Housing House
- Material Concrete
- Date 2022
- City Todos Santos (Baja California Sur)
- Country Mexico
- Photograph Jaime Navarro
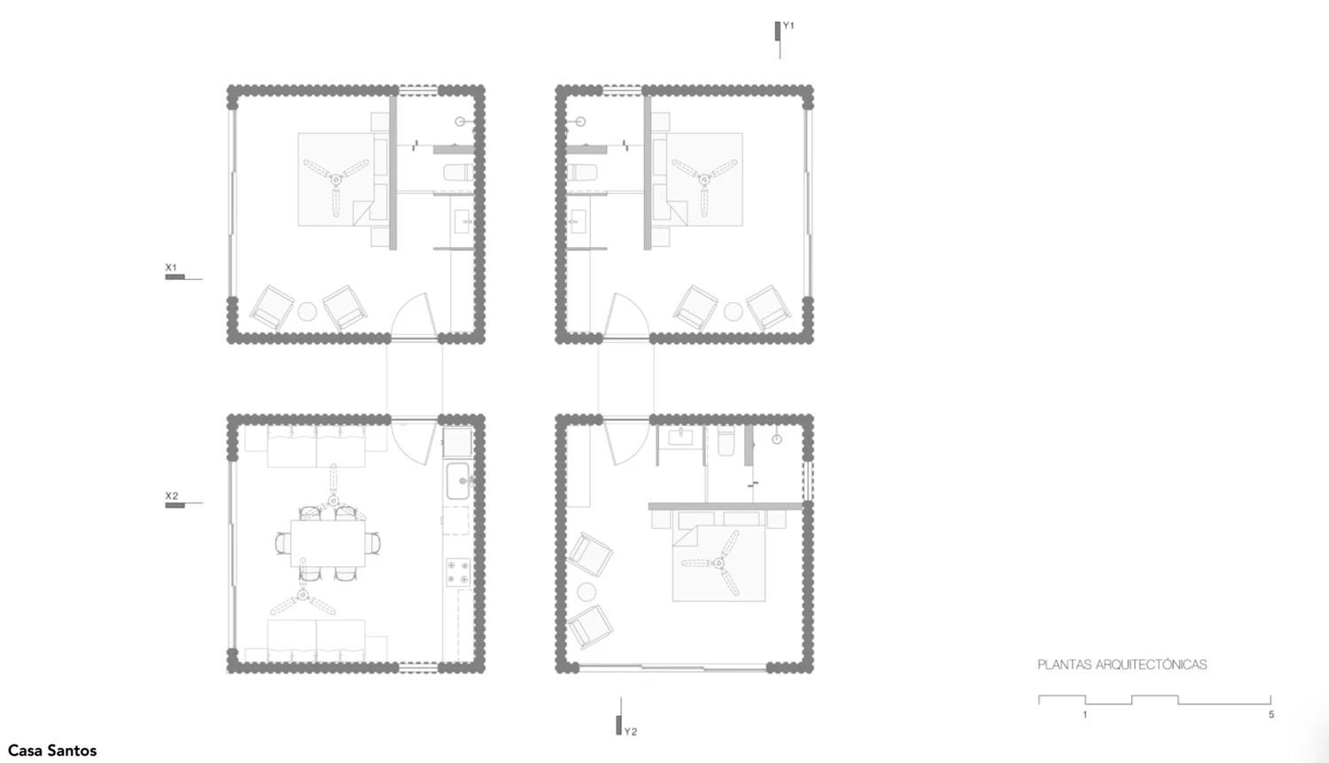
In Todos Santos, in the Mexican state of Baja California Sur, three houses are distributed in 11 standard modules, each measuring 25 square meters. Functioning as a compound, the residential program is fragmented into one-level cubes of identical dimensions, containing a kitchen, a dining room, a living room, and bedrooms with baths. The modular constructions are scattered around, held together along an axis with three patios.
The unifying element is dyed concrete, the grooved surfaces of which work as both structure and finish. The rhythmic striations form shadows, giving thermal protection by reducing daytime heat. The walls indoors have the same texture.























