Casa Santos en Baja California Sur
Héctor Coss Arquitectos María Alicia Gómez Giovanni Ocampo- Tipo Vivienda Casa
- Material Hormigón
- Fecha 2022
- Ciudad Todos Santos (Baja California Sur)
- País México
- Fotografía Jaime Navarro
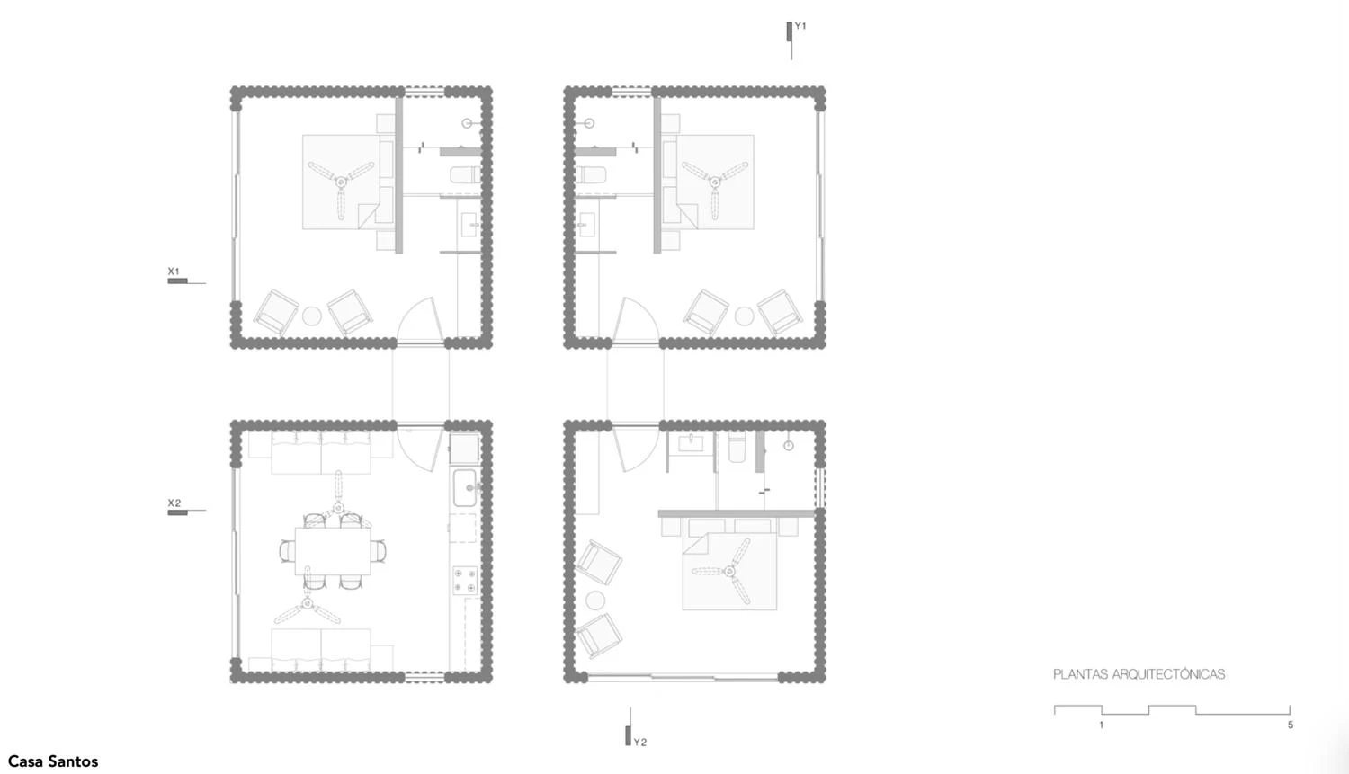
Situado en la localidad de Todos Santos, en el estado mexicano de Baja California Sur, el proyecto está compuesto por tres viviendas distribuidas en once módulos tipo, cada uno de 25 metros cuadrados. Funcionando en conjunto, el programa residencial se fragmenta en cubos de una planta e iguales dimensiones, que contienen una cocina, un comedor una sala de estar y habitaciones con baños. Las construcciones modulares se esparcen por el terreno, integradas en un eje con tres patios.
El elemento unificador es el hormigón teñido. Las superficies acanaladas de este material son a la vez estructura y acabado. Las estrías rítmicas generan sombras, actuando como protecciones térmicas para reducir el calor durante el día. La misma textura se repite en las paredes interiores.























