AC House in Málaga
Marina Uno Arquitectos- Type House Housing
- Date 2023
- City Malaga
- Country Spain
- Photograph Fernando Alda
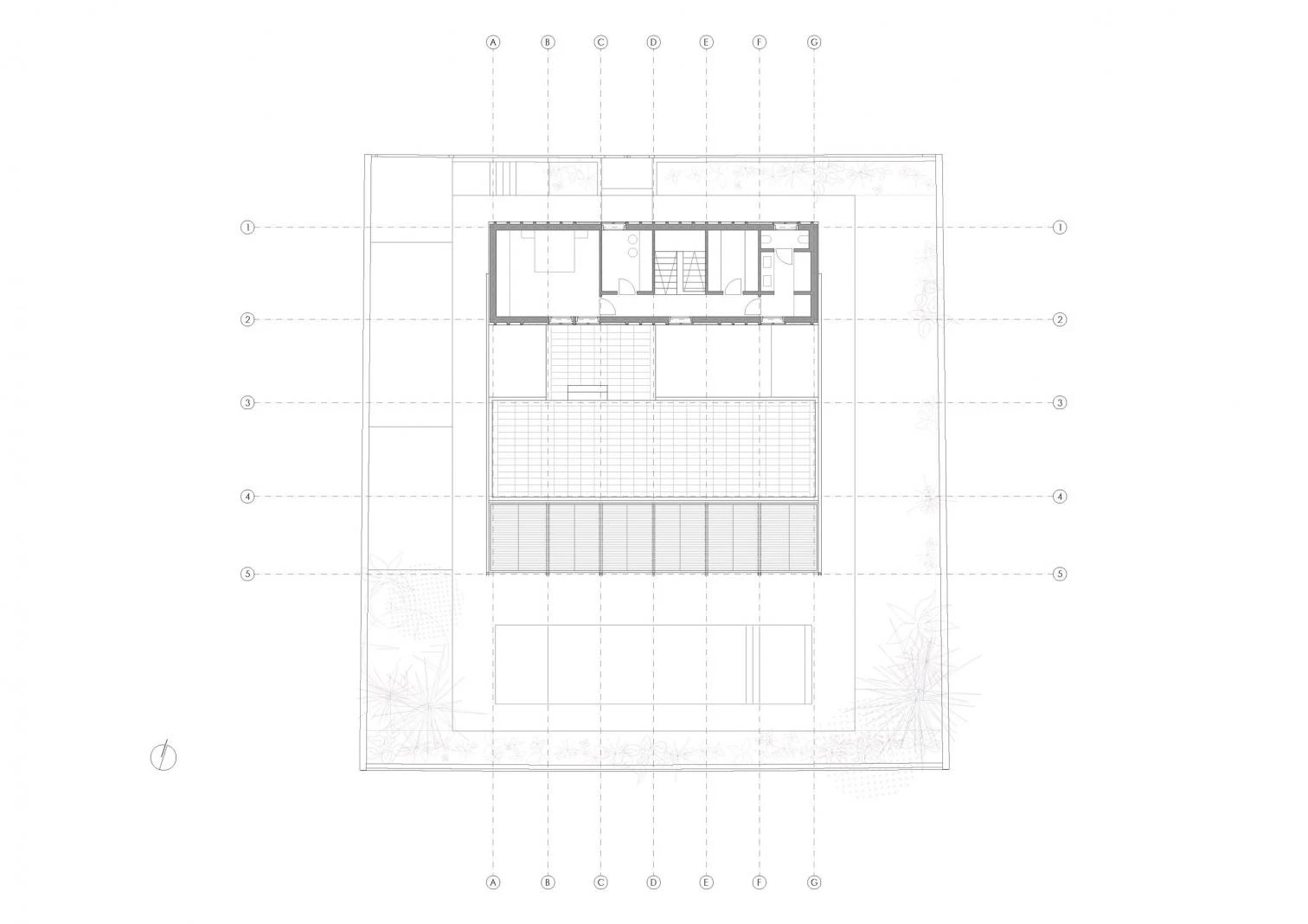
This three-floor residence rises on a flat, square-shaped plot in the Limonar neighborhood of Málaga. A work of Marina Uno Arquitectos (Juan Manuel Sánchez La Chica and Adolfo de la Torre Prieto), it is organized by a system of parallel bands running north to south and crossed by a circulation axis connecting the different parts of the program. Access is via a deep opening drilled through the bedrooms part. The walls present a brick bond with pilasters shading the facades. Everything is painted white to minimize absorption of solar rays. Thin slabs of reinforced concrete rest on walls of manual brick, and a thin metal structure exposes itself on the garden side.















